MizMedi DEAR'ONE Postpartum Care Center: Redefining Postpartum Care Through Thoughtful Architecture
MizMedi DEAR'ONE Postpartum Care Center redefines healthcare design, creating a nurturing, innovative space for mothers and newborns.
The MizMedi DEAR'ONE Postpartum Care Center, designed by yeonhan architects, is a pioneering architectural project located in Gangseo-gu, South Korea. This center stands as a beacon of care, offering mothers and newborns a tranquil and supportive environment through innovative and thoughtful architectural design. Combining the warmth of a nurturing atmosphere with modern medical functionality, the center’s design creates a unique experience for patients and visitors alike.





Vision Behind MizMedi DEAR'ONE
The MizMedi DEAR'ONE Postpartum Care Center was envisioned as a specialized facility aimed at attracting international patients while contributing to the development of a medical special zone. The project, initiated by MizMedi Hospital, began in 2020 and overcame significant challenges during its four-year journey to completion in 2024. These challenges included the global COVID-19 pandemic, fluctuations in material costs due to the Russia-Ukraine war, and a nationwide decline in birth rates. Despite these hurdles, the project emerged as a testament to perseverance and innovation in architectural design.




Site Constraints and Design Solutions
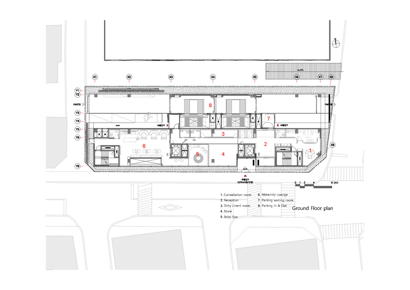
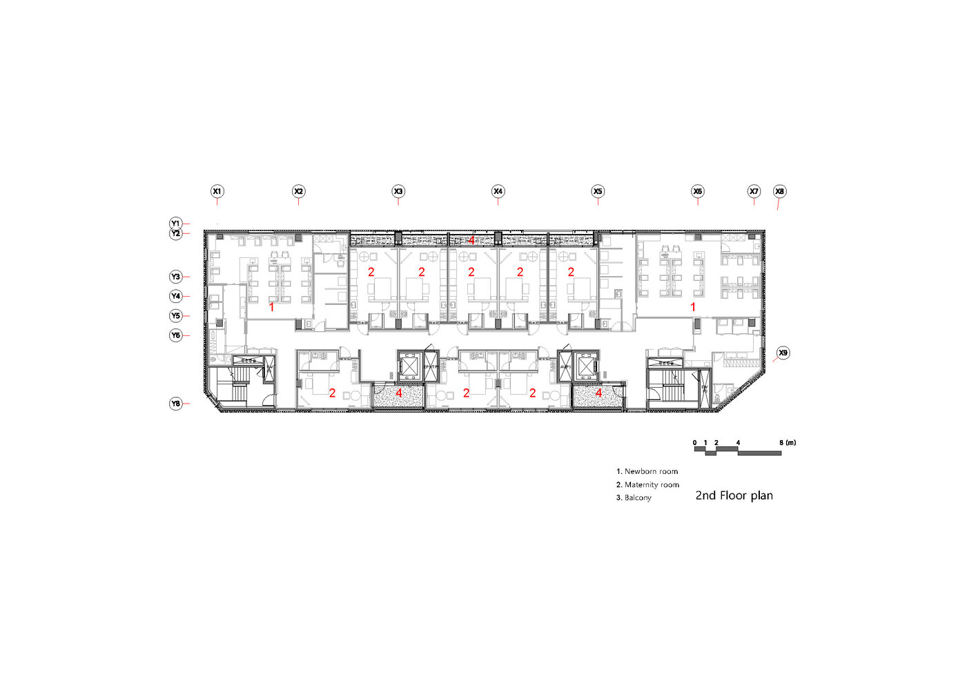
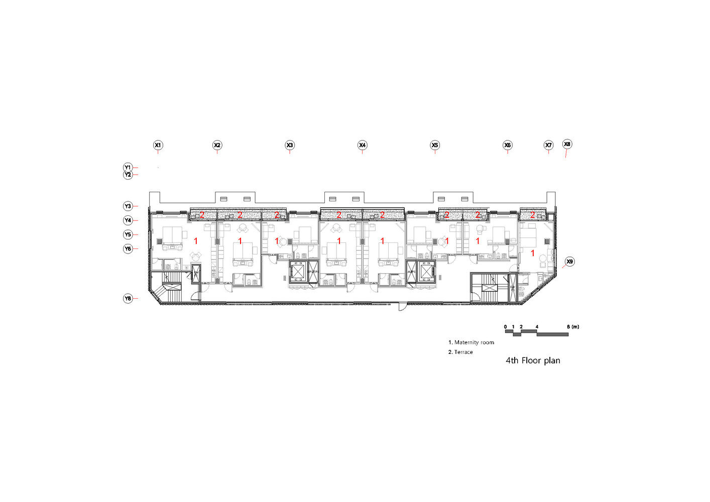
The site of MizMedi DEAR'ONE, a former parking lot, posed unique challenges due to its location. It is bordered by a bustling road to the south and residential apartments to the north. To ensure the comfort and privacy of the postpartum patients, the rooms were thoughtfully positioned on the north side of the building. This arrangement shields the rooms from road noise and offers serene views of a green courtyard. The southern corridor, bathed in filtered sunlight, enhances the tranquil environment, providing a space filled with warmth and light.





Concept of a Vertical Village
The design concept of MizMedi DEAR'ONE is rooted in the philosophy of creating a “vertical village”—a space where mothers can find community and connection. Inspired by the saying, "It takes a village to raise a child," the architects designed a facility that fosters natural interactions among mothers. The vertical layout encourages movement through the building, creating opportunities for casual socialization, relaxation, and moments of rejuvenation.



The idea of a vertical village extends to the center’s facade design. By using brick, a material often associated with home and warmth, the architects crafted a patterned screen with alternating protruding and recessed bricks. This unique facade not only adds visual interest but also evokes the feeling of strolling through a tree-lined alleyway, where shadows of trees play on the ground.

Integration of Technology in Design
Advanced tools like Revit and Building Information Modeling (BIM) were employed to simulate design intent and improve the precision of both the design and construction processes. This technological integration ensured that the final structure was not only aesthetically pleasing but also efficient and structurally sound.



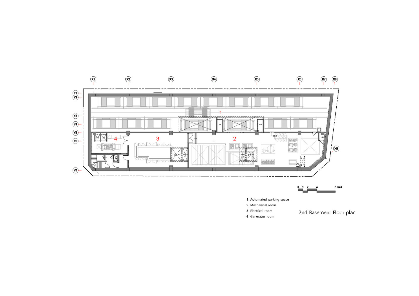
The imposing 52-meter-long facade was softened with thoughtful design elements to ensure a welcoming pedestrian experience at the ground level. Mechanized parking was incorporated to address spatial constraints, providing efficient parking solutions while allowing ample waiting space for visitors. Evacuation routes were strategically planned, with fire escapes placed at both ends of the building for quick and intuitive access.



Architecture as a Haven for Postpartum Care
At its core, the MizMedi DEAR'ONE Postpartum Care Center aspires to be more than just a medical facility. It is a sanctuary for mothers, designed to provide a positive and memorable postpartum experience. The thoughtful arrangement of spaces, the use of natural materials, and the emphasis on light and privacy reflect the architects’ commitment to creating a haven for recovery and connection.


This project also addresses broader societal challenges, such as South Korea’s declining birth rates, by creating a space that encourages and supports motherhood. By combining architectural innovation with emotional warmth, the MizMedi DEAR'ONE Postpartum Care Center sets a new standard for healthcare facility design.


The MizMedi DEAR'ONE Postpartum Care Center is a powerful example of how architecture can address both functional and emotional needs. Designed by yeonhan architects, this facility harmonizes modern medical requirements with the warmth of a nurturing environment. It represents a beacon of hope and care, offering mothers a place to heal, connect, and find comfort during one of the most significant moments in their lives.


All Photographs are work of Yongsoon Kim, Woojin Park
Popular Articles
Popular articles from the community
A Contemporary Take on Iranian Residential Architecture
A modern interior design in Mashhad that reinterprets brick, light, and spatial flow to create a warm, contemporary residential architecture.
Treehouse Apartment: A Warm Timber Interior Blending Craft, Play, and Contemporary Living
Warm timber apartment with integrated treehouse, combining natural materials, craftsmanship, and playful design to create a flexible, family-oriented living environment.
An Miên Lumière Cafe by xưởng xép, Ho Chi Minh City, Vietnam
An industrial-inspired café where layered steel and warm light create a dynamic, immersive environment shaped by reflection, depth, and perception.
Flamboyant House by Juliana Camargo + Prumo Projetos
Modern Brazilian house integrating existing tree, pool, and volumes with glass, wood, and transitional spaces blending interior, exterior, and landscape seamlessly.
Similar Reads
You might also enjoy these articles
The Ken Roberts Memorial Delineation Competition (Krob)
As the most senior architectural drawing competition currently in operation anywhere in the world, it draws hundreds of entries each year, awarding the very best submissions in a series of medium-based categories.
Waterfront Redevelopment and Urban Revitalization in Mumbai: Forging a New Dawn for Darukhana
A transformative waterfront redevelopment project reimagining Darukhana’s shipbreaking heritage into an inclusive urban future.
OUT-OF-MAP: A Call for Postcards on Feminist Narratives of Public Space
Rhizoma Design and Research Lab invites artists, designers, architects, researchers, and students to reflect on how feminist perspectives can reshape public space. Selected works will be exhibited in Barcelona, October 2026. Submissions open until 15 April 2026.
Documentation Work on Buddhist Wooden Temple
Architectural syncretism and cultural hybridity: A comparative study of the Buddhist temples in Chattogram Hill tracks
Explore Architecture Competitions
Discover active competitions in this discipline
The International Standard for Design Portfolios
The Global Benchmark for Architecture Dissertation Awards
The Global Benchmark for Graduation Excellence
Challenge to reimagine the Iron Throne
Comments (0)
Please login or sign up to add comments
No comments yet. Be the first to comment!