Modern Architecture in Urban Homes
Explore the innovative design of Warmblack House in Bangkok by Greenbox Design, focusing on modern architecture, privacy, and functionality.
The Concept of Modern Architecture in Urban Homes
Redefining Urban Space Through Innovative Design
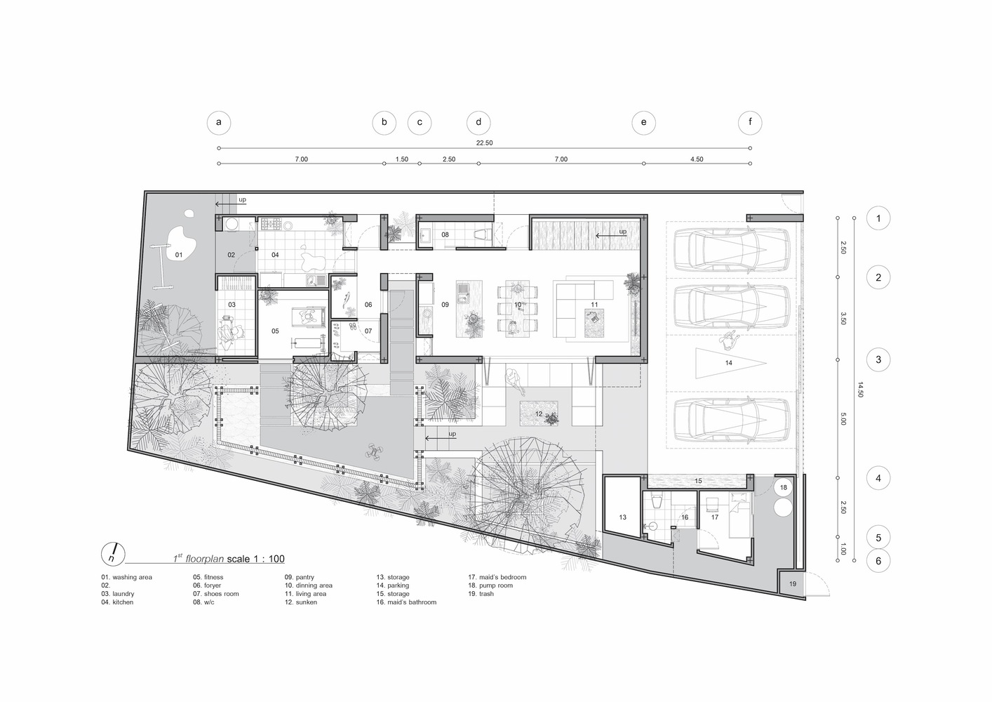
The Warmblack House is a testament to the adaptability and creativity necessary in today's urban landscapes. Surat Pongsupan & Panapong Seetao, the lead architects, have masterfully crafted an L-shaped layout to enhance privacy while allowing ample natural sunlight. The division of the structure into three parts optimizes air ventilation and creates communal and private spaces that coexist harmoniously.


Integrating Nature with Modern Architecture
One of the standout features of the Warmblack House is its strategic orientation. The backyard, facing southwest, leverages natural elements to improve living conditions. The design takes into account the local wind patterns and the shading provided by neighboring buildings, which is especially beneficial for children's outdoor activities and reducing heat inside the home during the sunnier months.


Interior Design and Functionality
Creating a Cohesive Aesthetic with Personal Touches
The interior of Warmblack House reflects a blend of contemporary and comforting elements, mirroring the personalities of its inhabitants—a trendy, modern man and a gentle, sweet woman. The use of dark grey materials such as wood and stone for the exterior is balanced with warm interior tones, establishing an elegant yet welcoming atmosphere.



Practical and Stylish Living Spaces
Every area within the Warmblack House is designed with functionality and style in mind. From the kitchen’s white-cream-colored tiles that amplify light and space to the dining area’s detailed marble, each choice is both aesthetic and practical. The furniture is versatile, catering to both family gatherings and social events without sacrificing comfort or style.



Sustainable Features and Outdoor Integration
Emphasizing Sustainability and Outdoor Living
The landscape design of Warmblack House does not adhere strictly to Western or Eastern styles but instead creates a hybrid that enhances the approach to the main living areas. The use of bushes and willows adds depth and a sense of continuity from the indoor spaces to the outdoors, reinforcing the home’s connection to its natural surroundings.



Architectural Innovation at Warmblack House
The Warmblack House by Greenbox Design is a pioneering project in modern architecture, showcasing how homes can be both private sanctuaries and fully integrated into their urban environments. Its design is a forward-thinking response to the challenges of contemporary urban living, making it a landmark project in Bangkok's architectural landscape.



All photographs are work of Panoramic Studio