Museum Architectural Renovation: A New Vision for Kunstpalast Düsseldorf Museum by Sieber Architekten
Explore the transformative renovation of Kunstpalast Düsseldorf Museum by Sieber Architekten, blending historical preservation with modern architectural innovation.
In the heart of Düsseldorf, the Kunstpalast Museum has undergone a significant architectural transformation. Led by Sieber Architekten, this project exemplifies the impact of museum architectural renovation, blending historical preservation with modern enhancements to create a dynamic cultural hub.



The Need for Architectural Renovation in Museums
Preserving Historical Integrity
Museum renovations often involve a delicate balance between preserving the historical essence of the building and integrating modern facilities that meet current standards and visitor expectations. This is crucial in maintaining the cultural and architectural heritage while ensuring the building's functionality and safety.



Enhancing Visitor Experience
Modern renovations aim to improve the overall visitor experience by creating more engaging and accessible spaces. This includes updating exhibition areas, improving circulation within the building, and ensuring that the museum can host a variety of events and displays.


Renovation Strategy at Kunstpalast Düsseldorf Museum
Reconnecting the Museum's Wings
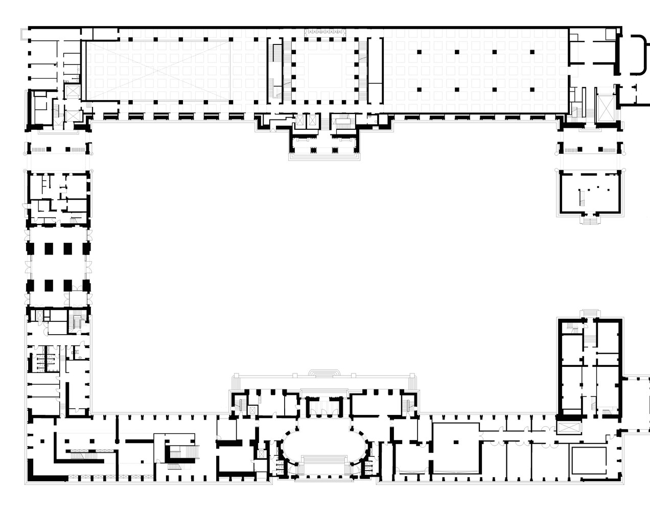
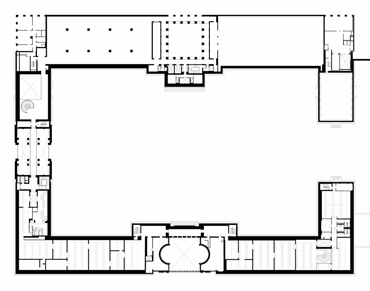
The primary challenge addressed by Sieber Architekten was the disconnection between the museum's two wings, exacerbated by structural issues and water damage. The renovation aimed to unify these spaces, enhancing the museum's coherence and navigability.




Design Approaches
Interior Redesign
The project embraced a contemporary approach while respecting the museum's historical context. The renovation introduced a meandering sequence of rooms, offering varied sizes and configurations that encourage exploration and interaction with the art.


Integration of New Structures
Significant structural additions included two spiral staircases that not only serve as functional elements but also as sculptural highlights within the museum. These staircases facilitate vertical movement and link the museum's thematic zones gracefully.


Material Use and Sustainability
Sustainable Material Choices
In line with contemporary architectural practices, the renovation incorporated sustainable materials that complement the museum's existing structure. This approach supports long-term maintenance and environmental responsibility.

Technological Integration
The renovation also included the integration of modern technologies, such as new lighting systems and climate controls, which are essential for preserving artworks and enhancing the spatial quality of the museum.



Community and Cultural Impact
Creating a Cultural Landmark
The renovated Kunstpalast Museum now stands as a beacon of cultural activity in Düsseldorf. It serves not just as a space for exhibiting art but as a versatile venue that can accommodate a wide range of cultural events.



Boosting Local Engagement
By transforming the museum into a more inviting and functional space, the renovation has increased community engagement and cultural tourism, contributing to the local economy and Düsseldorf’s cultural landscape.


The architectural renovation of the Kunstpalast Düsseldorf Museum by Sieber Architekten is a testament to how thoughtful design can breathe new life into historic institutions. This project highlights the transformative power of museum architectural renovation, ensuring that the museum continues to serve as a vital cultural hub for future generations. Through meticulous planning and respectful integration of new and old elements, the museum has been reinvigorated, offering enriched experiences to visitors and a renewed connection to the community.

All photographs are work of Stefan Müller
Popular Articles
Popular articles from the community
Atelier Macri Concept Store Interior Design by CASE-REAL
Atelier Macri store features a "ko" counter, walnut wood details, cork displays, blending retail, gallery, and seamless customer experiences.
Gads Hill Early Learning Center by JGMA: Adaptive Reuse Shaping Community-Focused Educational Architecture
Adaptive reuse transforms fragmented structure into vibrant early learning center with playful façade, natural light, and community-focused sustainable design.
Free Architecture Competitions You Can Enter Right Now
No entry fees, real prizes. Here are the best free architecture competitions open for submissions in 2026.
Similar Reads
You might also enjoy these articles
Bamboo Housing Challenge 2026: Design Affordable, Sustainable Homes Using Bamboo
An international design competition by Bamboo U and IBUKU inviting architects and designers to reimagine affordable housing using bamboo — with the winning design built full-scale in Bali.
Computational Design & Education: Beegraphy Design Awards Introduces 7th Category (Featuring Jiyun's Innovative Approach)
Dive into Beegraphy’s 7th Design Awards category, where computational design meets education to create immersive, interactive learning tools, inspired by Jiyun’s work.
From Parametric Lighting to Urban Furniture: Join the 2nd Workshop in Beegraphy’s Computational Design Series
Dive into Cutting-Edge Design Techniques and Practical Applications with Industry Experts
Explore Architecture Competitions
Discover active competitions in this discipline
The International Standard for Design Portfolios
The Global Benchmark for Architecture Dissertation Awards
The Global Benchmark for Graduation Excellence
Challenge to reimagine the Iron Throne
Comments (0)
Please login or sign up to add comments
No comments yet. Be the first to comment!