Nîmes Sports Hall: A Modern and Sustainable Icon of Public Architecture
Nîmes Sports Hall combines organic design with sustainability, creating a community-focused, energy-efficient venue for sports and events.
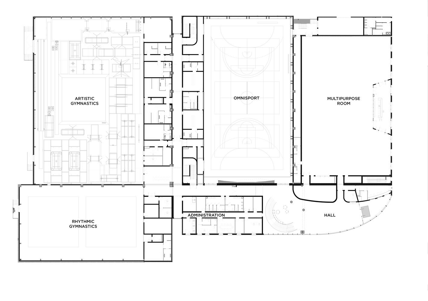
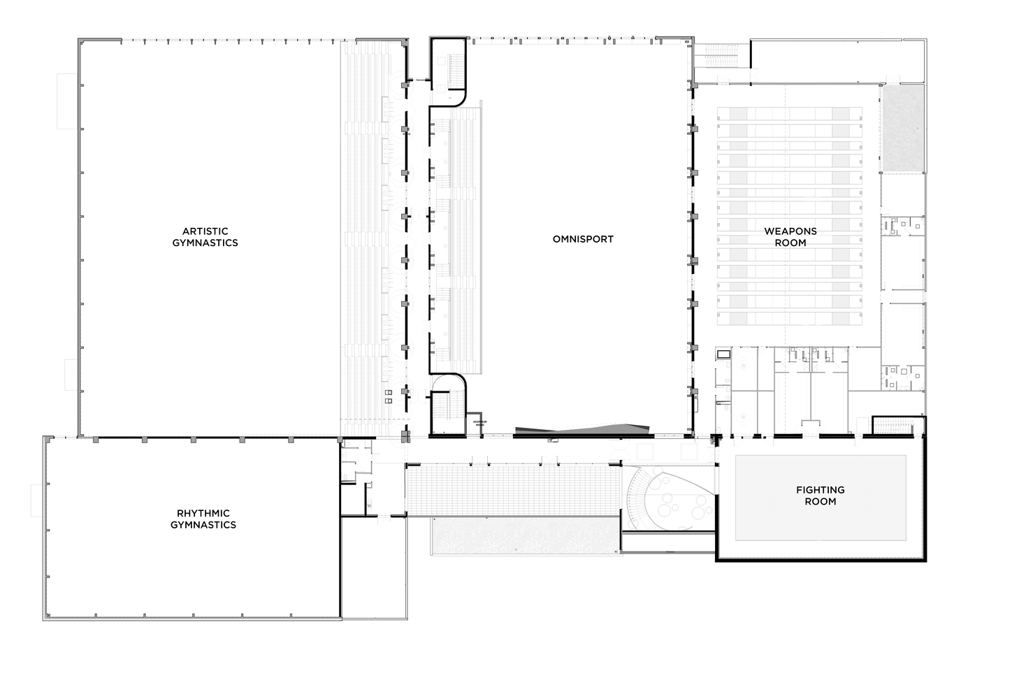
The Nîmes Sports Hall, designed by Ateliers A+, is a state-of-the-art public facility located in Nîmes, France. Completed in 2024, the sports hall is emblematic not only of contemporary architectural style but also of sustainable design practices. It brings together various sports facilities under one roof, with a focus on creating an inviting, community-oriented space. The building’s design is rooted in simplicity and accessibility, aiming to offer a welcoming environment for both athletes and the public.



Design Concept and Architectural Aesthetic
The design of the Nîmes Sports Hall draws inspiration from the city’s rich textile history, reflected in the organic and gentle curves of the building's façade. The curves mimic the softness of fabric, providing both visual appeal and a functional, welcoming entry to the building. These fabric-like folds also serve a practical purpose by incorporating vegetation, which adds a sense of lightness to the structure while providing natural protection from the elements. The building’s form transcends the conventional functional expression of sports facilities, instead offering a symbolic architectural statement that celebrates both sport and the city.


The harmonious integration of volumes and the dynamic use of curves on the façade create a striking visual presence. The design invites users to engage with the building in a way that is both fluid and intuitive. The architecture of the sports hall is distinctly contemporary, combining modern materials and a thoughtful layout that elevates the community's sporting experience.


Bioclimatic Design and Sustainability
At the core of the Nîmes Sports Hall’s design is a strong commitment to sustainability. The building’s environmental considerations are integral to its planning and execution, ensuring that the structure not only serves the community but also respects its surroundings and minimizes its carbon footprint. The sports hall’s bioclimatic design optimizes energy efficiency through a combination of underground geothermal systems, rooftop photovoltaic panels, and a carefully designed building envelope that allows for natural ventilation.



The use of wood throughout the interior spaces creates a warm and inviting atmosphere while serving as a visual symbol of the building’s low-carbon commitment. From the mesh structure and solid beam construction to the acoustic treatments and interior joinery, the wood contributes both to the aesthetic appeal and the sustainability goals of the project. Additionally, the building incorporates materials with strong thermal inertia at ground level, enhancing the overall energy efficiency.


A Community-Centric Space
The Nîmes Sports Hall is designed not just as a space for sporting events but as a community hub. The building’s configuration takes into account the surrounding urban environment, seamlessly integrating with the landscape while offering accessible entry points for the public. The careful organization of the spaces reflects a thoughtful urban strategy, ensuring that the facility becomes a central meeting point for residents and visitors alike.


Inside, the building is marked by its spaciousness and the abundance of natural light, creating an uplifting and energizing atmosphere. Whether used for local sporting events, community gatherings, or casual visits, the hall fosters a sense of connection and inclusion.


Celebration of Sport: A Nighttime Spectacle
The Nîmes Sports Hall takes on an entirely different persona at night. When darkness falls, the building comes to life in a magical way. The fabric façade, which resembles a large sail, is illuminated, transforming into a glowing constellation. The interplay of light on the structure creates a dazzling spectacle, akin to a sky lantern or a festive sail. This nighttime transformation celebrates the spirit of sport and victory, turning the building into a beacon of hope and excitement.



A Symbol of Modernity and Sustainability
The Nîmes Sports Hall stands as a true testament to the potential of architecture to create functional, beautiful, and sustainable public spaces. Ateliers A+ has succeeded in blending innovative design with environmental sensitivity, ensuring that the building serves as both a high-performance sports venue and a cherished community landmark. With its elegant form, thoughtful use of materials, and energy-efficient systems, the Nîmes Sports Hall is poised to become an iconic symbol of modern public architecture.




All Photographs are work of Camille Gharbi
Popular Articles
Popular articles from the community
An Miên Lumière Cafe by xưởng xép, Ho Chi Minh City, Vietnam
An industrial-inspired café where layered steel and warm light create a dynamic, immersive environment shaped by reflection, depth, and perception.
Louis Malle Cinema: A Limestone Cultural Landmark Revitalizing Community Life in Prayssac
Limestone cinema extension with public forecourt, blending heritage and modern design to create flexible cultural spaces and strengthen community interaction.
Solar Steam: A Climate-Responsive Architecture That Redefines the Monument
A climate-responsive memorial architecture that transforms heat, decay, and time into a living system reflecting humanity’s ecological impact.
On the Brooks House by Monsoon Collective – A Contemporary Kerala Home Rooted in Tradition
Kerala home blending tradition and modernity with water-inspired design, brick architecture, courtyard planning, and sustainable rainwater harvesting strategies.
Similar Reads
You might also enjoy these articles
The Ken Roberts Memorial Delineation Competition (Krob)
As the most senior architectural drawing competition currently in operation anywhere in the world, it draws hundreds of entries each year, awarding the very best submissions in a series of medium-based categories.
Waterfront Redevelopment and Urban Revitalization in Mumbai: Forging a New Dawn for Darukhana
A transformative waterfront redevelopment project reimagining Darukhana’s shipbreaking heritage into an inclusive urban future.
OUT-OF-MAP: A Call for Postcards on Feminist Narratives of Public Space
Rhizoma Design and Research Lab invites artists, designers, architects, researchers, and students to reflect on how feminist perspectives can reshape public space. Selected works will be exhibited in Barcelona, October 2026. Submissions open until 15 April 2026.
Documentation Work on Buddhist Wooden Temple
Architectural syncretism and cultural hybridity: A comparative study of the Buddhist temples in Chattogram Hill tracks
Explore Architecture Competitions
Discover active competitions in this discipline
The International Standard for Design Portfolios
The Global Benchmark for Architecture Dissertation Awards
The Global Benchmark for Graduation Excellence
Challenge to reimagine the Iron Throne
Comments (0)
Please login or sign up to add comments
No comments yet. Be the first to comment!