Nurturing Young Minds: Innovative Design by Atelier Régis Roudil for a Child Development Haven
How did Atelier Régis Roudil Architects create a child care centre that fosters growth and creativity?

In a bid to create a serene environment for a childcare centre in the heart of Paris, the Presidency of the Republic has commissioned the construction of a new facility. The child care centre was previously housed in an older building that was deemed ill-suited for its purpose, located on the rue de l’Elysée. The new location, within the Palais de l’Alma, provides a peaceful haven away from the hustle and bustle of the city.
One of the challenges faced during the construction of the child care centre was to ensure that it blended seamlessly with the surrounding urban fabric, which includes famous landmarks such as the Eiffel Tower and the Musée du Quai Branly. The project had to be integrated in a way that respected the existing built heritage while also providing a peaceful environment where greenery dominates.
The child care centre is located within Napoleon’s former stables, which form part of the Palais de l’Alma. The south garden of the palace, which is adjacent to the Musée du Quai Branly and designed by Gilles Clément, was extended to incorporate the child care centre's exterior space. The result is a coherent green whole, which provides a peaceful environment for the children.
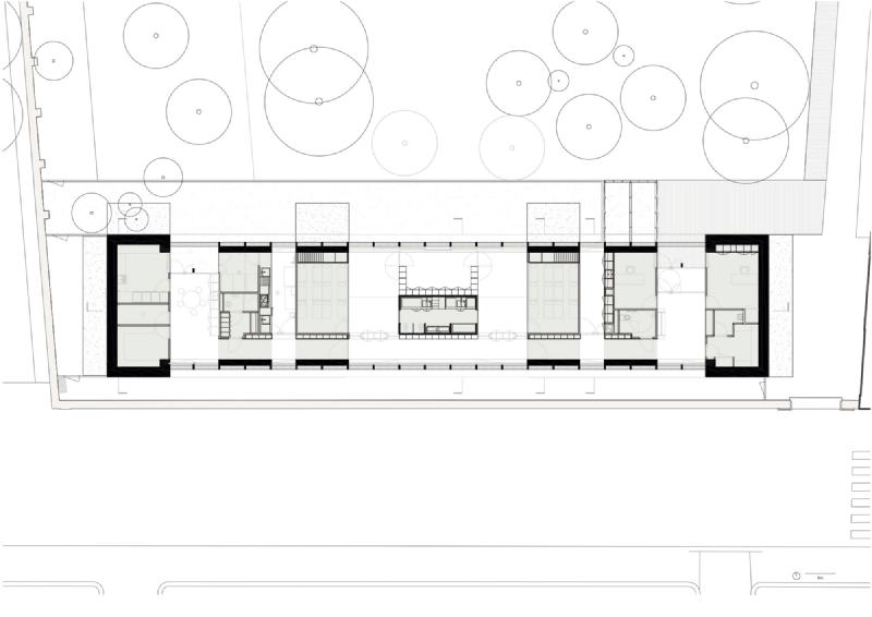
To anchor the building to the site, a space was left on the south side between the wall and the garden to allow access for security personnel to make the rounds of the entire site. As the child care centre is a sensitive place, owing to its purpose and function, it has no direct views onto or from the public space. This creates an introverted space that is evocative of a courtyard.
On the north side, the children’s garden is placed in direct contact with one of the Palais, offering the children the enjoyment of a visual escape towards nature. The entire project was designed to create a nurturing environment for the children, with a focus on promoting growth and creativity.
Overall, the child care centre within the Palais de l’Alma is a testament to the innovative design by Atelier Régis Roudil Architectes, which integrates seamlessly with the existing built heritage of Paris. Its serene and peaceful location provides a haven for children in the heart of the city, and its greenery and bucolic design add to its overall appeal.
Atelier Régis Roudil Architects has recently completed a remarkable Child Care Centre project, which aims to foster a sustainable relationship with the environment. The project is located in a garden, and the architects have drawn inspiration from nature to create a design that reflects the surrounding landscape.
The design of the nursery incorporates bio-sourced materials, such as raw earth and wood, which have been chosen to respect the client's ambitious goals for the environment. The architects have imbued these elements with a telluric meaning, which gives the project a sense of connection to the natural world.
The use of raw earth as a construction material is a particularly noteworthy feature of the project. The architects have demonstrated that earth is not just a simple excavation material, but also a sustainable resource that can be used to create buildings that are in harmony with their surroundings.
Wood has also been used extensively in the project, and its qualities as a renewable resource are well-known. The architects have used wood to contribute to the reduction of the greenhouse effect and to create a warm and inviting atmosphere for the children.
In conclusion, Atelier Régis Roudil Architects has created a remarkable Child Care Centre that is not only functional but also sustainable and in harmony with the environment. The use of bio-sourced materials and the connection to the surrounding landscape make this project a standout example of sustainable architecture.





















Popular Articles
Popular articles from the community
A Contemporary Take on Iranian Residential Architecture
A modern interior design in Mashhad that reinterprets brick, light, and spatial flow to create a warm, contemporary residential architecture.
An Miên Lumière Cafe by xưởng xép, Ho Chi Minh City, Vietnam
An industrial-inspired café where layered steel and warm light create a dynamic, immersive environment shaped by reflection, depth, and perception.
Treehouse Apartment: A Warm Timber Interior Blending Craft, Play, and Contemporary Living
Warm timber apartment with integrated treehouse, combining natural materials, craftsmanship, and playful design to create a flexible, family-oriented living environment.
Inverted Architecture Installation by Studio Link-Arc: Exploring the Intersection of Architecture and Living Organisms
Inverted Architecture Installation by Studio Link-Arc blends mycelium, sustainability, inverted design, ecological cycles, and urban adaptive architecture in Shenzhen.
Similar Reads
You might also enjoy these articles
Zhuxi Wonderland: Reimagining Traditional Chinese Gardens by Doarchi Architects
Zhuxi Wonderland by Doarchi Architects reinterprets traditional Yangzhou gardens, integrating courtyards, pavilions, and tea houses in modern cultural design.
Doble Soga House: A Contemporary Brick Residence Rooted in Landscape in Quito, Ecuador
Brick house in Quito integrating nature, flexible living spaces, exposed materials, and rooftop terrace, creating warm contemporary architecture for modern family life.
Al Gharra Mosque in Medina Redefining Contemporary Islamic Architecture
Minimalist Medina mosque using concrete, light, and landscape to reinterpret Islamic worship spaces through symbolic spiritual transitions and contemporary architecture.
Viczonecode Villa by DDconcept – Tropical Family Living in Ho Chi Minh City
Tropical family villa in Ho Chi Minh City featuring courtyards, skylights, natural ventilation, elevated flooring, and seamless indoor–outdoor living surrounded by greenery.
Explore Architecture Competitions
Discover active competitions in this discipline
The International Standard for Design Portfolios
The Global Benchmark for Architecture Dissertation Awards
The Global Benchmark for Graduation Excellence
Challenge to reimagine the Iron Throne
Comments (0)
Please login or sign up to add comments
No comments yet. Be the first to comment!