Phu Luong House: A Harmonious Blend of Tradition and Modernity
Phu Luong House blends traditional Vietnamese architecture with modern design, offering a serene, functional, and culturally rooted living space.
Phu Luong House, designed by AICC Architecture, is a masterful representation of traditional Vietnamese values merged with modern architectural innovation. Situated in Phú Lương, Vietnam, and completed in 2021, this 212-square-meter residence reflects the principle of cherishing cultural roots while addressing contemporary living needs.

A Vision Rooted in Tradition
The Ancestral Worship Space: The Heart of the Design
Central to the design of Phu Luong House is the ancestral worship space, a hallmark of traditional Vietnamese homes. This sacred area is crafted with traditional wooden architecture, embodying the principles of virtue, goodness, and beauty. It serves as a spiritual and cultural hub where family members gather to honor their origins and strengthen their connection to ancestral values.
Preserving Cultural Heritage
Incorporating traditional materials and techniques, the architects created a space that honors Vietnam’s rich heritage while catering to the needs of a modern household. The worship space is thoughtfully integrated with the overall design to promote family unity and mindfulness.


Modernity Meets Tradition: Architectural Innovation
Combining Traditional and Contemporary Elements
Phu Luong House skillfully merges two architectural languages—the warmth and craftsmanship of traditional wooden structures with the clean, functional design of modern reinforced concrete. This seamless fusion is enhanced by the use of large-scale aluminum-glass systems, which allow for abundant natural light and an open, airy ambiance.
Adapting to Urban Challenges
Located in a bustling neighborhood, the design prioritizes peace and relaxation. The architects tackled the challenge of creating a serene environment by incorporating inner courtyards, open spaces, and ventilated brick facades to ensure natural airflow and noise reduction.



Thoughtful Spatial Organization
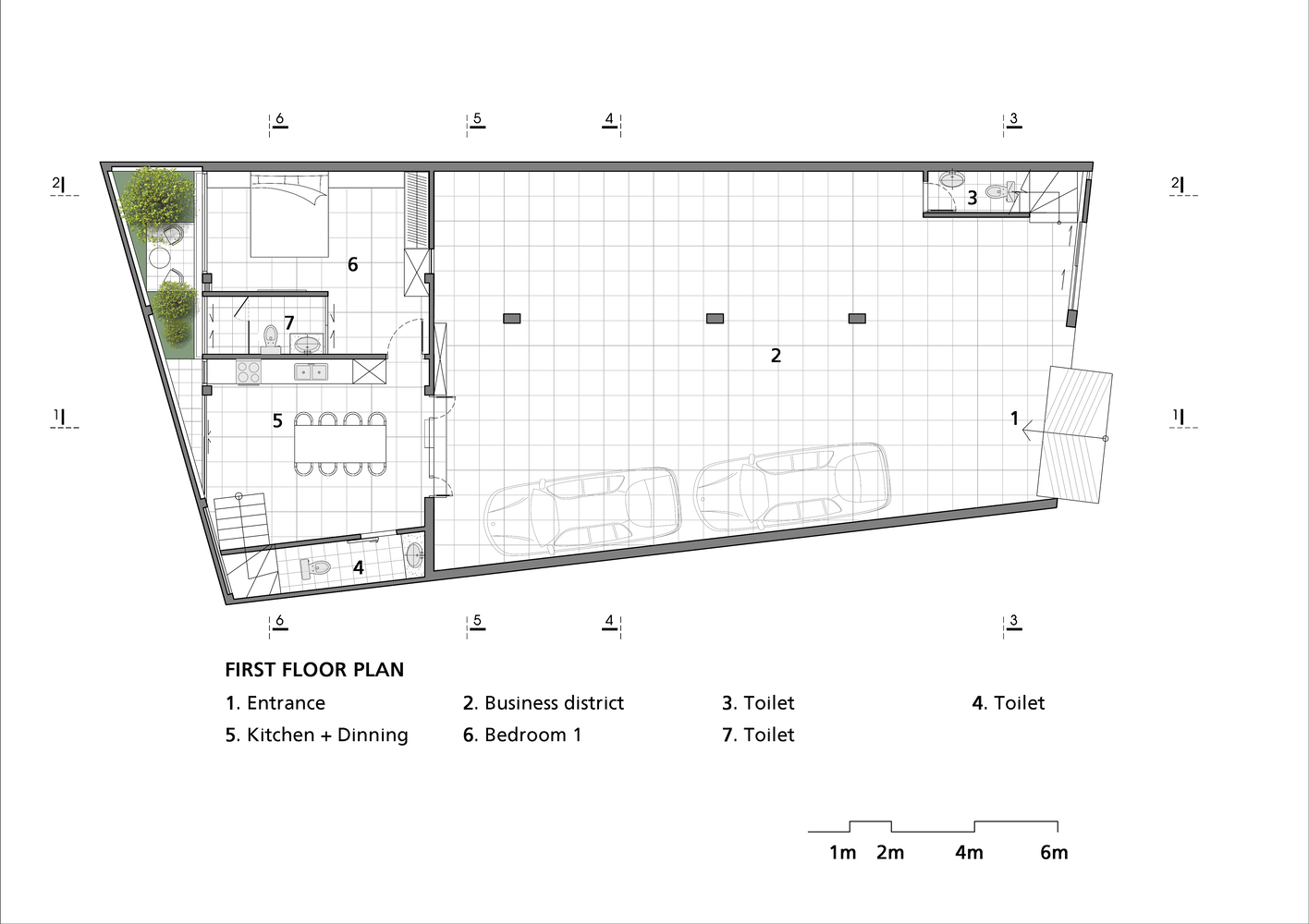
Ground Floor: Dual Functionality
The ground floor is divided into two distinct sections:
- Commercial Area: Positioned at the front of the house to cater to business needs.
- Private Living Area: Includes a dining room, kitchen, a separate bedroom, and two bathrooms (one for commercial use and another for the family).
Two vertical access points connect the ground floor to the upper levels, distinguishing the modern block from the traditional wooden structure.

Second Floor: Centralized Living
The second floor’s layout is designed for both functionality and connection:
- Living Spaces: Living room, kitchen, and dining area arranged in a sequential flow.
- Inner Courtyard: A tranquil space that bridges the modern living areas with the traditional wooden temple.
- Traditional Temple: A carefully designed area for ancestral worship.

Third Floor: Family-Centric Design
The third floor houses three individual bedrooms and a shared bathroom, offering privacy and comfort for family members.
Fourth Floor: Recreation and Technology
The fourth floor serves as a playground and technical room, providing spaces for entertainment and addressing the technological needs of the family.


Sustainable Design Solutions
Optimizing the West-Facing Orientation
The house’s west-facing façade posed a challenge due to heat and glare. To counter this, the architects implemented:
- Ventilated Bricks: An outer layer for natural airflow and heat reduction.
- Large-Scale Glass Panels: Ensuring natural light while minimizing noise and heat.
Green Courtyards
Inner courtyards and open spaces enhance natural ventilation, creating a cool and refreshing environment even in a bustling urban setting.

Materials and Construction Techniques
The project showcases a thoughtful selection of materials:
- Traditional Materials: Wooden elements in the ancestral worship space preserve cultural authenticity.
- Modern Structures: Reinforced concrete and cast concrete provide durability and stability.
- Aluminum-Glass Systems: Ensure transparency, openness, and a contemporary aesthetic.

Overcoming Challenges with Innovation
Blending Two Architectural Languages
One of the primary challenges was integrating traditional and modern architectural styles without creating disconnection. The result is a harmonious living space that celebrates tradition while meeting modern needs.
Creating Tranquility in an Urban Setting
Phu Luong House offers a peaceful retreat in a noisy neighborhood by prioritizing functional design, natural elements, and thoughtful spatial arrangement.

Phu Luong House by AICC Architecture is a testament to the seamless integration of tradition and modernity. It is a space that cherishes Vietnam’s cultural heritage while embracing contemporary living solutions. With its innovative design, sustainable features, and family-focused layout, this house exemplifies how architectural design can balance cultural values with modern functionality.

Popular Articles
Popular articles from the community
A Contemporary Take on Iranian Residential Architecture
A modern interior design in Mashhad that reinterprets brick, light, and spatial flow to create a warm, contemporary residential architecture.
Treehouse Apartment: A Warm Timber Interior Blending Craft, Play, and Contemporary Living
Warm timber apartment with integrated treehouse, combining natural materials, craftsmanship, and playful design to create a flexible, family-oriented living environment.
On the Brooks House by Monsoon Collective – A Contemporary Kerala Home Rooted in Tradition
Kerala home blending tradition and modernity with water-inspired design, brick architecture, courtyard planning, and sustainable rainwater harvesting strategies.
The Ken Roberts Memorial Delineation Competition (Krob)
As the most senior architectural drawing competition currently in operation anywhere in the world, it draws hundreds of entries each year, awarding the very best submissions in a series of medium-based categories.
Similar Reads
You might also enjoy these articles
The Ken Roberts Memorial Delineation Competition (Krob)
As the most senior architectural drawing competition currently in operation anywhere in the world, it draws hundreds of entries each year, awarding the very best submissions in a series of medium-based categories.
Waterfront Redevelopment and Urban Revitalization in Mumbai: Forging a New Dawn for Darukhana
A transformative waterfront redevelopment project reimagining Darukhana’s shipbreaking heritage into an inclusive urban future.
OUT-OF-MAP: A Call for Postcards on Feminist Narratives of Public Space
Rhizoma Design and Research Lab invites artists, designers, architects, researchers, and students to reflect on how feminist perspectives can reshape public space. Selected works will be exhibited in Barcelona, October 2026. Submissions open until 15 April 2026.
Documentation Work on Buddhist Wooden Temple
Architectural syncretism and cultural hybridity: A comparative study of the Buddhist temples in Chattogram Hill tracks
Explore Architecture Competitions
Discover active competitions in this discipline
The International Standard for Design Portfolios
The Global Benchmark for Architecture Dissertation Awards
The Global Benchmark for Graduation Excellence
Challenge to reimagine the Iron Throne
Comments (0)
Please login or sign up to add comments
No comments yet. Be the first to comment!