Quzhou Student Community Center: A Pioneering Living Zone on Campus
How Does the Quzhou Student Community Center Redefine Campus Living?

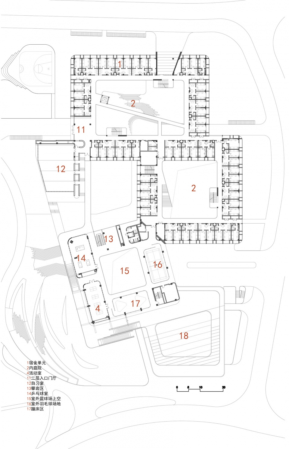
The Quzhou Student Community Center is a revolutionary project in China that redefines the concept of a living zone on campus. This innovative development aims to break through functional limitations by fully integrating public life and residential functions, creating a new 3.0 living zone model. Located in Quzhou High-speed Railway New City, the community center will provide multiple functions for the self-sufficient research institute, including accommodation, social interaction, activities, catering, learning, and entertainment.

Challenges in Design and Planning
Due to the limited space and lack of outdoor sports facilities in the surrounding area, the 20,000-square-meter community center is designed as a complex with a focus on maximizing space and utility. Moreover, the campus site's micro-topography features a height difference of over ten meters between the northern and southern parts, which necessitates a unique design approach that takes advantage of the terrain.


Innovative Architectural Approach
Five different life scenes, including accommodation, study rooms, activity centers, and student dining rooms, are integrated into a complex formed by repeating the same motif. The functional volumes are split and reassembled at regular scales to form settlements. The height and volume of the five boxes and even the size of the courtyard reflect individual differences and increase the overall richness.

Vertical Functionality and Harmony with the Environment
The community center adopts a common mix-use design in which multiple functions overlay in the vertical direction of the building. This two-way functional overlay creates a huge volume for the community center. The roof that falls step by step following the micro topography provides students with a natural observation point of view. Standing in a high place, different life scenes appear directly.


Connect Life Scenes in Series
The introverted courtyard reflects a strong homeland affection, and the horizontal extension of the volume makes the courtyards closely connected. All inner courtyards are interlocked and in different forms, creating a dynamic living environment for students and faculty. Courtyards featuring nature, sports, and study rooms offer a variety of spaces to see and be seen, promoting social interaction and a sense of community.



Architectural Promenade
The architect divides the path into the internal and the external, which weaves a three-dimensional network. The internal path provides a convenient and efficient traffic flow, while the external path combines specific functions. It starts from the entrance hall and is connected with the internal path of the dormitory on the falling roof to complete the cycle.



Dynamic Roof and External Path
The red circular plastic runway is the core of the external path, extending from the activity center to the dormitories. It combines with the rough yellow acrylic, which stands out from the fair-faced concrete. With greenery on both sides, it forms the most dynamic roof and adds to the overall aesthetics of the community center.

Designing for the Future
During the design process, the architect focused on meeting the expectations of the site, the life, and the future. The community center's thoughtful design aims to provide an enriching and comfortable living experience for students and faculty, fostering a sense of community and collaboration.


Epilogue
Standing on the roof and viewing the surrounding mountains and beautiful sunset, the experience of living on campus is constantly evolving. The Quzhou Student Community Center project marks a significant step towards the future of campus living zones







Project Name: University of Electronic Science and Technology Yangtze River Delta Research Institute (Quzhou)·Living Center
Designer: Tongji University Architectural Design and Research Institute (Group) Co., Ltd. | Sishifangyuan
Company Website: http://www.tjad.cn/
Contact Email: 406667704@qq.com
Project Design & Completion Year: 2020 & 2022
Chief Project Manager: Jiang Limin, Lianjin
Architecture and Interior Design Team: Zhang Jia, Gui Yaoguo, Li Zemin, Wang Yan
Structural Team: Hu Guangliang, Shen Kui, Zhang Shuo, Yang Fuquan
Water supply and drainage team: Li Liping, Ren Jun,Zhang Baodi, Tang Yuyan, Yuan Fang
Electric team: Song Haijun, Zhang Ying, Gu Yuhui, Luo Yan, CaiMenglong
HVAC team: Qin Zhuohuan, Qian Bihua, Wu Hubiao , Yu Xiaoming
Landscape Design: He Qiang, Xiao Hong, Lian Letong, Zhang Jie, Huang Zhengtao, Zhou Yaohui, Zhan Liwen
Floodlighting: Yang Xiu, Xu Xia
Green Construction Team: Xu Xiaoyan, Xue Fanghui, Zhu Cuiwen, Ju Chen, Wu Guo, Tang Chengyu, Zhang Now, Li Pengfei
Curtain Wall Design: Lan Lijun, He Qian
Project Address: Quzhou City, Zhejiang Province
Construction Area: 19,488 square meters
Photography Copyright: Octopus Jianzhu, Ma Yuan, Yin Ming, Sishi Square Court
Client: Qutong Development Group, Quzhou City limited company
Popular Articles
Popular articles from the community
Treehouse Apartment: A Warm Timber Interior Blending Craft, Play, and Contemporary Living
Warm timber apartment with integrated treehouse, combining natural materials, craftsmanship, and playful design to create a flexible, family-oriented living environment.
A Contemporary Take on Iranian Residential Architecture
A modern interior design in Mashhad that reinterprets brick, light, and spatial flow to create a warm, contemporary residential architecture.
Louis Malle Cinema: A Limestone Cultural Landmark Revitalizing Community Life in Prayssac
Limestone cinema extension with public forecourt, blending heritage and modern design to create flexible cultural spaces and strengthen community interaction.
Atelier Macri Concept Store Interior Design by CASE-REAL
Atelier Macri store features a "ko" counter, walnut wood details, cork displays, blending retail, gallery, and seamless customer experiences.
Similar Reads
You might also enjoy these articles
Scientific and Educational Monitoring Center of the Yenisei, Krasnoyarsk
Architecture as an instrument for ecological research, education, and environmental awareness along Russia’s largest river.
Development of Andretta Artist’s Village, Palampur, Himachal Pradesh, India
Reimagining Andretta as a living cultural landscape where art, architecture, and community converge to shape a global creative village.
The NEON Culture: Experiential Architecture Shaping Contemporary Urban Life
Exploring how experiential architecture responds to accelerated lifestyles through immersive spaces, adaptive programs, and sensory-driven urban design.
Narwall: Autonomous Offshore Architecture for Extreme Environments
A visionary model of sustainable offshore architecture, Narwall redefines public life, energy autonomy, and resilience in extreme Arctic waters.
Explore Educational Building Competitions
Discover active competitions in this discipline
The Global Benchmark for Architecture Dissertation Awards
The Global Benchmark for Graduation Excellence
Challenge to design an urban locus of culture and heritage
Challenge to design public laboratory
Comments (0)
Please login or sign up to add comments
No comments yet. Be the first to comment!