Reimagining the Country House: The Capivari House Extension by VAGA
Exploring VAGA's Capivari House Extension, blending contemporary design with traditional elements in Campos do Jordão, Brazil.
Nestled in the verdant landscapes of Campos do Jordão, Brazil, the Capivari House Extension emerges as a paragon of "Country House Extension" design. This architectural feat, envisioned and brought to life by VAGA architects, seamlessly marries the charm of traditional country living with the elegance of contemporary design. Through a meticulously planned annex to an existing residence, VAGA has redefined the essence of modern country living, offering a new perspective on space, light, and the integration of indoor and outdoor environments.



A Harmonious Blend of Old and New
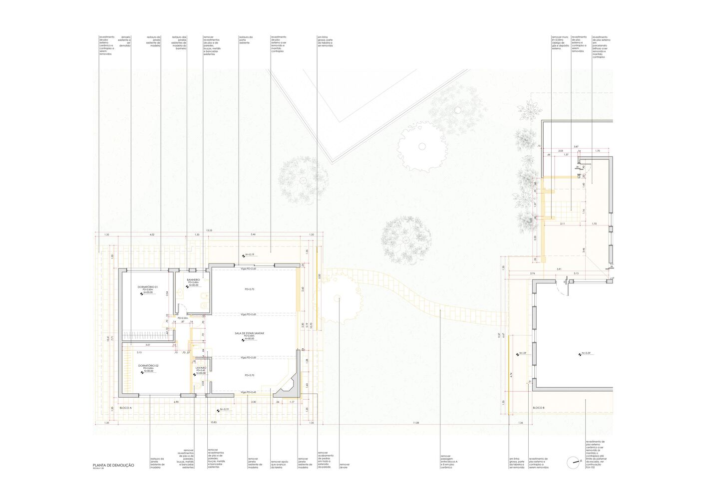
At the heart of the Capivari House Extension project is a deep respect for the original structure's architectural lineage, coupled with a daring vision for its future. The architects at VAGA have crafted an addition that speaks both to the past and the present, creating a living space that feels timeless. The new annex, which includes a modern kitchen, a living room, a swimming pool, a sauna, and additional guest rooms, is a testament to the power of thoughtful architectural intervention.








Overcoming Architectural Challenges
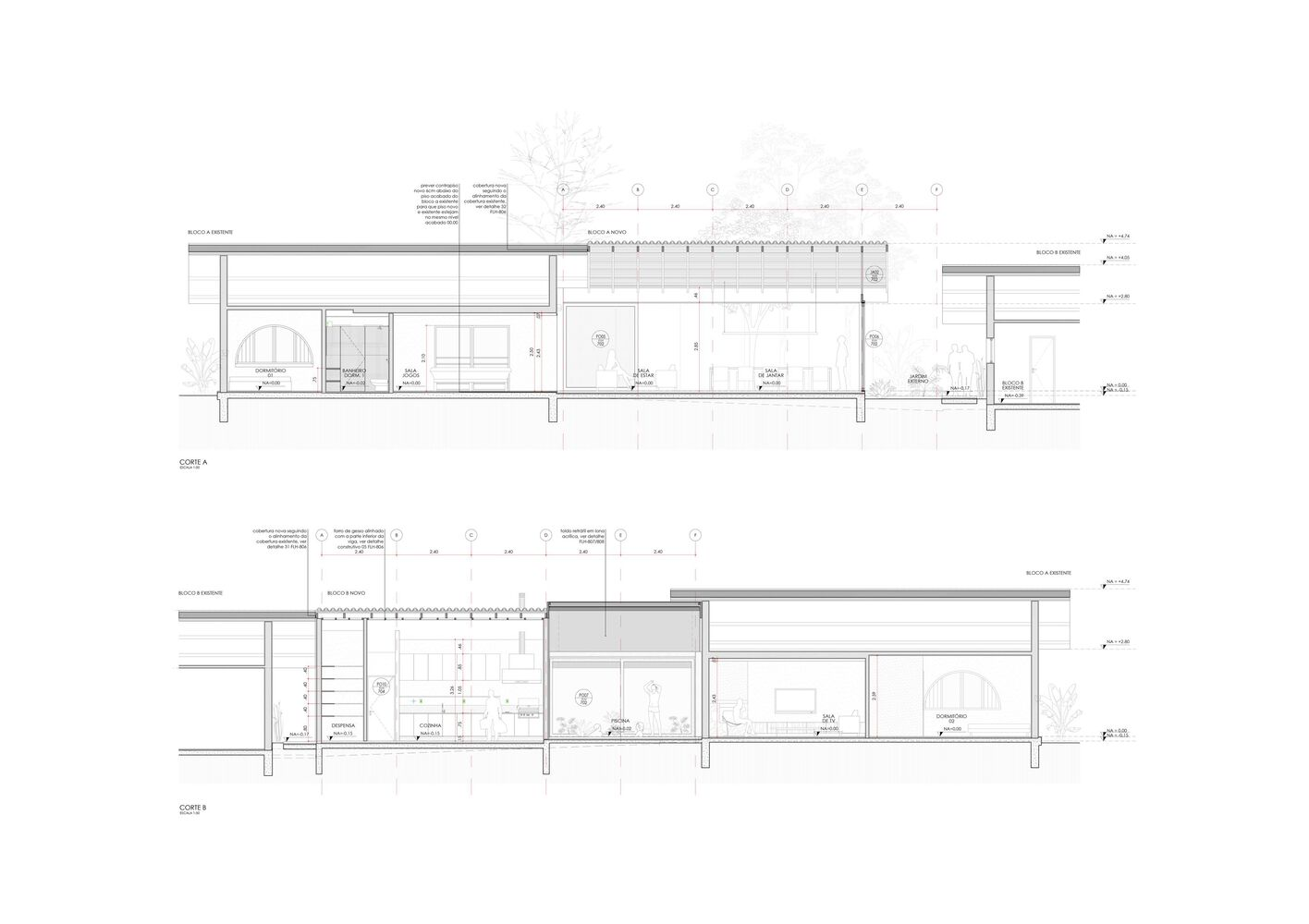
One of the project's main hurdles was the unevenness between the two blocks of the original house. VAGA's solution was both ingenious and aesthetically pleasing: a split roof that aligns with the pre-existing structures, introducing a band of natural light that ties the new with the old. This not only solved a structural issue but also became a defining feature of the extension, emphasizing the interplay between light and shadow, openness and enclosure.




A Material Dialogue with Nature
The material choices for the Capivari House Extension are a nod to the natural beauty that surrounds it. The wooden structure of the annex, with its slatted wooden ceiling and glass tiles, ensures that the interior is bathed in natural light while maintaining thermal comfort throughout the year. This choice of materials not only enhances the aesthetic appeal of the extension but also underscores VAGA's commitment to creating spaces that are in dialogue with their environment.




The Ultimate Indoor-Outdoor Living Experience
Perhaps the most striking aspect of the Capivari House Extension is its seamless integration of indoor and outdoor spaces. The design encourages a lifestyle that moves effortlessly between the comfort of the indoors and the natural beauty of the outdoor environment. The large, openable glass facades, the adjacent terrace, and the covered pool area with panoramic views exemplify this blend, offering a living experience that is both expansive and intimate.
The Capivari House Extension by VAGA is more than just an architectural project; it's a blueprint for the future of country living. It demonstrates how modern design principles can be applied to traditional structures, creating spaces that are both innovative and inviting. As we look to the future of architecture, projects like the Capivari House Extension serve as a reminder that the best designs are those that honor the past while boldly embracing the possibilities of the future.











All photographs are work of Carolina Lacaz