Reviving Masia BGS: A Fusion of History and Modern Design
Exploring Masia BGS's transformation by Enrica Mosciaro: blending historical architecture with modern design in Barcelona.
The Architectural Rebirth of Masia BGS in Barcelona
Nestled in the heart of Barcelona, Spain, Masia BGS stands as a symbol of architectural evolution, blending centuries-old structures with contemporary design. Spearheaded by architect Enrica Mosciaro, this 464 m² project, completed in 2020, represents a meticulous transformation of a building that has served various purposes over three centuries. This article, enriched with the SEO keyword "Historic Renovation", delves into the architectural intricacies of Masia BGS, showcasing its journey from a humble abode for field workers to a modern-day marvel.




A Tapestry of Time
Historical Essence
Masia BGS, with its rich history dating back over three centuries, initially served as a residence for field workers. Its architectural composition is a patchwork of various structures, each added in different periods to meet the evolving needs of its inhabitants. This non-uniform, humble ensemble of buildings reflects the passage of time, with each layer adding depth and character to the overall structure.




Architectural Transformation
In the late 19th century, the building underwent a significant transformation, becoming a glass furnace. This period marked the construction of a magnificent brick arch, a feature that now stands as a testament to the building's industrial past. Architect Enrica Mosciaro's vision was to preserve this historical essence while updating the structure for modern living standards.




Modern Integration
Unifying Spaces
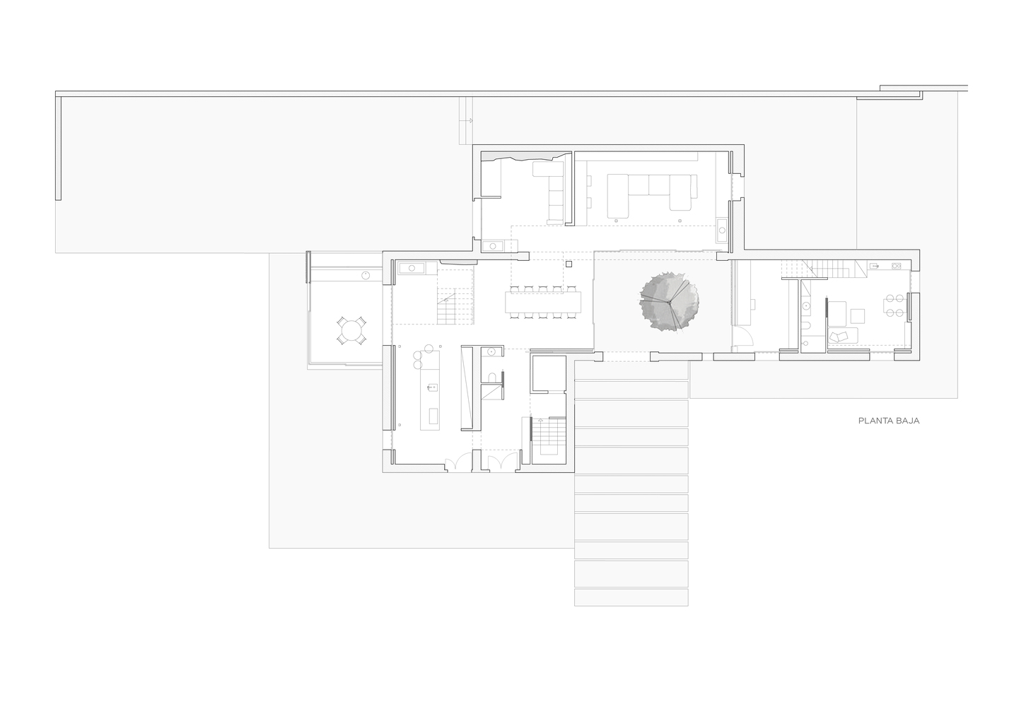
The renovation project faced the challenge of unifying the ground level across the compound, necessitating excavation in certain areas. This endeavor aimed to create a seamless flow between the buildings, enhancing the usability and accessibility of the space.


The Courtyard: A Breath of Fresh Air
A central innovation in the renovation was the introduction of a courtyard. This uncovered space, carved out from the existing structure, serves multiple functions: it brings in natural light, facilitates ventilation, and offers privacy. This courtyard is a pivotal element that harmonizes the historical and contemporary aspects of Masia BGS.



Preserving the Past, Embracing the Future
Minimal Exterior Alterations
In keeping with the goal of preserving the building's agricultural heritage, the exterior modifications were kept to a minimum. The focus was on maintaining the simplicity and authenticity of the farmhouse while highlighting historical elements like the brick arch.




Interior Modernization
Inside, the spaces have been meticulously updated to meet contemporary standards of habitability and comfort. The design respects the original structure, integrating modern amenities without overshadowing the building's historical character.
Masia BGS by Enrica Mosciaro is a masterclass in historic renovation, demonstrating how architecture can bridge the gap between the past and the present. This project not only revitalizes a piece of Barcelona's architectural heritage but also provides a blueprint for future renovations that seek to preserve history while accommodating modern life. As we continue to explore the possibilities of architectural restoration, Masia BGS stands as a beacon of inspiration, showing that history and modernity can coexist beautifully.




All photographs are work of Antonio Navarro Wijmark, Diana Monaco