Revolutionizing Urban Living: Modern Co-Living Spaces at Mangrove Dongdaemun by COM
Explore Mangrove Dongdaemun Co-living by COM, a transformational project redefining urban living through modern co-living spaces in Seoul.
In the heart of Seoul, the Mangrove Dongdaemun Co-living project, designed by COM, stands as a testament to the evolving nature of urban living. This transformation of a traditional business hotel into a vibrant co-living community exemplifies the shift towards modern co-living spaces that cater to the needs of today’s urban dwellers.




Design Philosophy and Vision
Creating a Community-Centric Environment
Mangrove Dongdaemun Co-living is designed with the vision of transforming hospitality into a homely, community-driven environment. This project extends beyond the mere provision of living spaces, aiming to foster a sense of community and shared experiences among its residents. The design facilitates interactions and communal activities, turning shared areas into hubs of social engagement.




Architectural Redesign for Transparency and Openness
The transformation involved significant architectural changes, including the replacement of the former hotel’s facade with transparent glass to promote an inviting atmosphere. This redesign aligns with the ethos of co-living by making the building more approachable and integrated with the urban fabric of Dongdaemun.




Key Features of the Co-Living Space
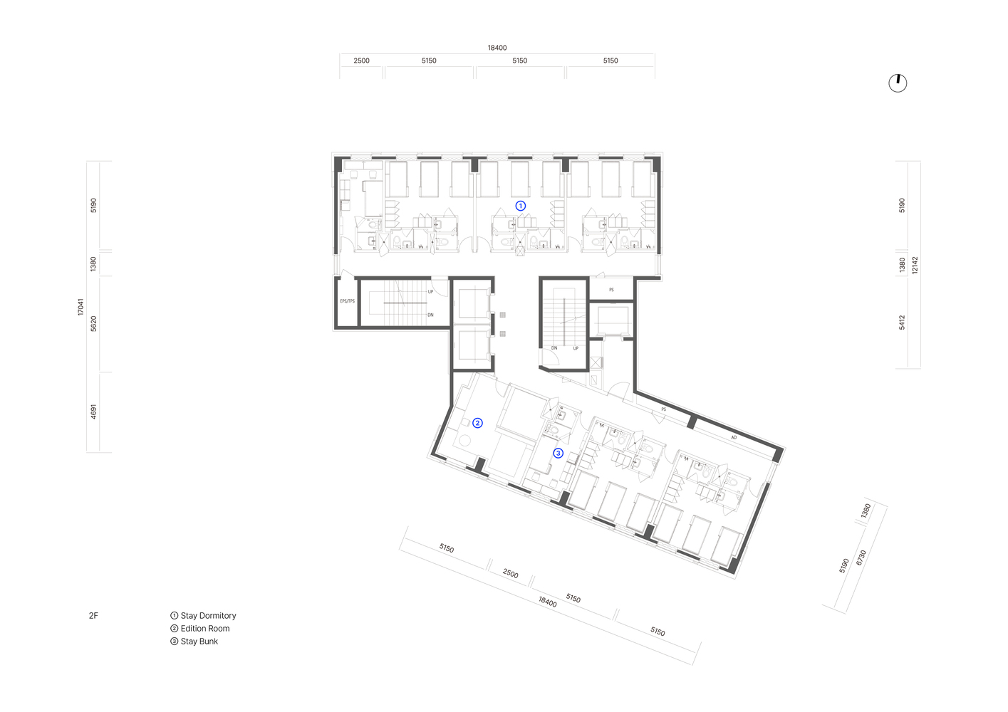
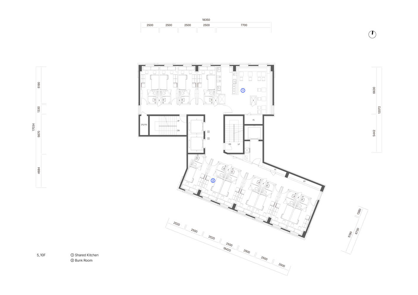
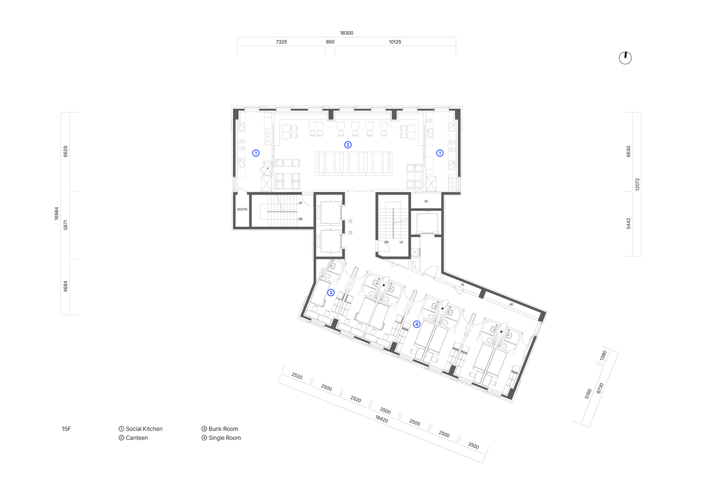
Efficient and Customized Living Units
Each living unit within Mangrove Dongdaemun is meticulously designed to maximize space efficiency and functionality. The rooms feature custom-designed furniture that caters to modern living needs, such as integrated storage solutions and multipurpose fixtures, ensuring comfort without sacrificing style.




Communal Areas Designed for Interaction
The project boasts diverse communal spaces, including a large rooftop area, shared kitchens, and a subterranean lounge. These areas are strategically placed to enhance interaction and provide residents with opportunities to engage in a variety of social activities, from cooking together in the fully equipped kitchen stations to relaxing in the lounge areas.




Sustainable Features and Material Use
Focus on Sustainability and Comfort
In keeping with modern architectural trends, Mangrove Dongdaemun incorporates sustainable building practices and materials. The use of eco-friendly, durable materials in construction and interior design reflects a commitment to sustainability. Additionally, natural lighting and ventilation are maximized to enhance environmental efficiency and resident comfort.


Harmonious Material Palette
The interior design features a balanced mix of warm wood finishes and cooler materials like metal and glass, creating an environment that feels both modern and welcoming. This material selection not only enhances the aesthetic appeal of the spaces but also contributes to the overall comfort and quality of life for the residents.


Community Impact and Future Outlook
Redefining Urban Living in Seoul
Mangrove Dongdaemun Co-living is not just a residence; it's a model for future urban living solutions in bustling city environments. By offering a blend of private and shared spaces, it caters to the modern urbanite's desire for flexibility, community, and sustainability.



Potential for Expansion and Replication
The success of this project highlights the potential for expanding the co-living model to other urban centers globally. As cities continue to grow and evolve, modern co-living spaces like Mangrove Dongdaemun will play a crucial role in shaping sustainable and inclusive urban communities.



The Mangrove Dongdaemun Co-living project by COM is a pioneering example of modern co-living spaces that beautifully combine functionality, community, and design innovation. It stands as a beacon of modern urban living, offering a blueprint for future developments in the co-living sector worldwide.


All photographs are work of Mihyun Son
Popular Articles
Popular articles from the community
Flamboyant House by Juliana Camargo + Prumo Projetos
Modern Brazilian house integrating existing tree, pool, and volumes with glass, wood, and transitional spaces blending interior, exterior, and landscape seamlessly.
Louis Malle Cinema: A Limestone Cultural Landmark Revitalizing Community Life in Prayssac
Limestone cinema extension with public forecourt, blending heritage and modern design to create flexible cultural spaces and strengthen community interaction.
Solar Steam: A Climate-Responsive Architecture That Redefines the Monument
A climate-responsive memorial architecture that transforms heat, decay, and time into a living system reflecting humanity’s ecological impact.
Treehouse Apartment: A Warm Timber Interior Blending Craft, Play, and Contemporary Living
Warm timber apartment with integrated treehouse, combining natural materials, craftsmanship, and playful design to create a flexible, family-oriented living environment.
Similar Reads
You might also enjoy these articles
The Ken Roberts Memorial Delineation Competition (Krob)
As the most senior architectural drawing competition currently in operation anywhere in the world, it draws hundreds of entries each year, awarding the very best submissions in a series of medium-based categories.
Waterfront Redevelopment and Urban Revitalization in Mumbai: Forging a New Dawn for Darukhana
A transformative waterfront redevelopment project reimagining Darukhana’s shipbreaking heritage into an inclusive urban future.
OUT-OF-MAP: A Call for Postcards on Feminist Narratives of Public Space
Rhizoma Design and Research Lab invites artists, designers, architects, researchers, and students to reflect on how feminist perspectives can reshape public space. Selected works will be exhibited in Barcelona, October 2026. Submissions open until 15 April 2026.
Documentation Work on Buddhist Wooden Temple
Architectural syncretism and cultural hybridity: A comparative study of the Buddhist temples in Chattogram Hill tracks
Explore Architecture Competitions
Discover active competitions in this discipline
The International Standard for Design Portfolios
The Global Benchmark for Architecture Dissertation Awards
The Global Benchmark for Graduation Excellence
Challenge to reimagine the Iron Throne
Comments (0)
Please login or sign up to add comments
No comments yet. Be the first to comment!