Revolutionizing Workspaces: Office MI-JI AB Unveils the Future of Productivity
Is this the next bigIs this the next big leap in office design and collaboration? leap in office design and collaboration?

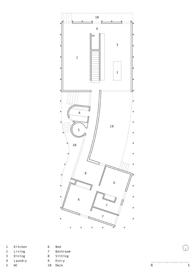
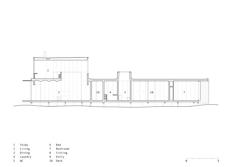
This house in Barwon Heads is bounded and raised off the ground due to a flooding overlay. It is divided into primary elements, each with its own spatial organization, and surrounded by a perimeter of columns. This separation of interaction across the site allows the family to expand and contract as their occupation of the house changes throughout the year.
The steel frame that elevates the house creates the boundaries for the arrangement of its components. Divided into zones of permanent and temporary use (long-term, short-term, and transition space), each element is organized by the rotation of the corridor, providing complementary opportunities for light and privacy. The front of the house contains a dining room, living room, kitchen, study, and a bedroom for the couple. The middle section houses a laundry room and a powder room. The back of the house contains two bedrooms with ensuites and a sitting room for guests. Skylights along the west and east walls, and obscured northern views, allow the occupants to capture morning and evening sun while still maintaining privacy from neighbouring properties.
The rotational layout of the corridor, in conjunction with screening and window placement, provides each area of the house with a distinct private outlook and a different part of the garden to interact with. Despite this separation, continuity of space is maintained through the individual spatial arrangements of each element - the rear of the kitchen is the living room, and the upper part of the living room is the study. The western deck, which is situated in the centre of the site for optimal midday and afternoon sun, serves as an extension of the kitchen. However, when the front doors are opened, the space expands all the way through the house and into the street. AB House is a residence that can be private but does not have to be.


























Architects: Office MI-JI
Area: 285 m²
Year: 2022
Photographs: Ben Hosking
Lead Architects: Jimmy Carter, Millie Anderson
Contractor / Builders: David Webb Building Solutions
Structural Engineer: Keith Long & Associates
Landscape Architect: Bush Projects
Landscaper: Growing Design
Popular Articles
Popular articles from the community
Inverted Architecture Installation by Studio Link-Arc: Exploring the Intersection of Architecture and Living Organisms
Inverted Architecture Installation by Studio Link-Arc blends mycelium, sustainability, inverted design, ecological cycles, and urban adaptive architecture in Shenzhen.
Solar Steam: A Climate-Responsive Architecture That Redefines the Monument
A climate-responsive memorial architecture that transforms heat, decay, and time into a living system reflecting humanity’s ecological impact.
An Miên Lumière Cafe by xưởng xép, Ho Chi Minh City, Vietnam
An industrial-inspired café where layered steel and warm light create a dynamic, immersive environment shaped by reflection, depth, and perception.
Atelier Macri Concept Store Interior Design by CASE-REAL
Atelier Macri store features a "ko" counter, walnut wood details, cork displays, blending retail, gallery, and seamless customer experiences.
Similar Reads
You might also enjoy these articles
Zhuxi Wonderland: Reimagining Traditional Chinese Gardens by Doarchi Architects
Zhuxi Wonderland by Doarchi Architects reinterprets traditional Yangzhou gardens, integrating courtyards, pavilions, and tea houses in modern cultural design.
Doble Soga House: A Contemporary Brick Residence Rooted in Landscape in Quito, Ecuador
Brick house in Quito integrating nature, flexible living spaces, exposed materials, and rooftop terrace, creating warm contemporary architecture for modern family life.
Al Gharra Mosque in Medina Redefining Contemporary Islamic Architecture
Minimalist Medina mosque using concrete, light, and landscape to reinterpret Islamic worship spaces through symbolic spiritual transitions and contemporary architecture.
Viczonecode Villa by DDconcept – Tropical Family Living in Ho Chi Minh City
Tropical family villa in Ho Chi Minh City featuring courtyards, skylights, natural ventilation, elevated flooring, and seamless indoor–outdoor living surrounded by greenery.
Explore Architecture Competitions
Discover active competitions in this discipline
The International Standard for Design Portfolios
The Global Benchmark for Architecture Dissertation Awards
The Global Benchmark for Graduation Excellence
Challenge to reimagine the Iron Throne
Comments (0)
Please login or sign up to add comments
No comments yet. Be the first to comment!