Sustainable Pavilion Architecture: Anatomy of a Dhow – Bahrain Pavilion at Expo 2025 Osaka by Lina Ghotmeh
A sustainable pavilion blending Bahraini seafaring heritage with eco-conscious design at Expo 2025 Osaka, by Lina Ghotmeh.
A Tribute to Seafaring Heritage Through Architecture
The Bahrain Pavilion at Expo 2025 Osaka, designed by Lina Ghotmeh Architecture, is a compelling example of sustainable pavilion architecture rooted in cultural legacy and environmental consciousness. Titled “Anatomy of a Dhow,” the pavilion reflects Bahrain’s deep maritime heritage and the symbolic dhow, an ancient Arabian sailing vessel. This architectural narrative aligns with Expo 2025’s central theme, “Designing Future Society for Our Lives,” while expressing Bahrain’s enduring role as a historical port of global exchange.




Inspired by Tradition, Constructed with Innovation
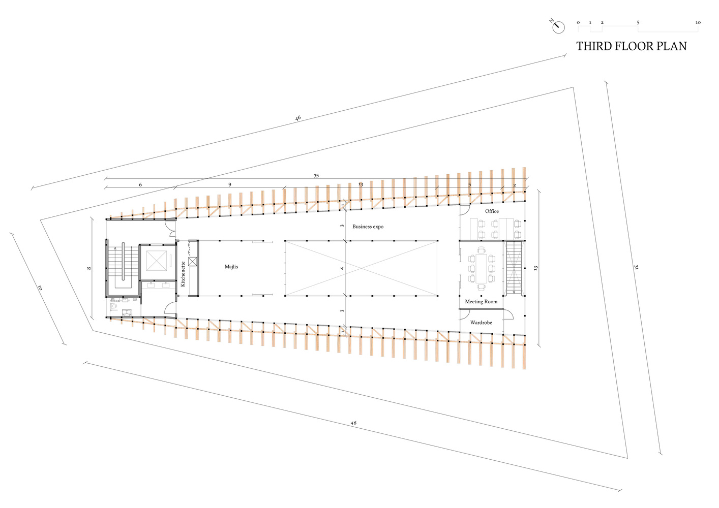
Spanning 998 square meters and standing 13 to 17 meters high, the structure draws from traditional dhow-building techniques and Japanese wood joinery. The architectural form is assembled using 3,000 pieces of un-engineered timber. Eschewing concrete, the design prioritizes minimal foundations and employs passive cooling systems driven by coastal breezes. This design choice underscores a commitment to low-impact construction, making the Bahrain Pavilion one of the most environmentally conscious projects in the Expo.





A Pavilion That Breathes With the Sea
Strategically located in the Empowering Lives zone of the Expo grounds, the pavilion uses architecture as a living narrative of sea cultures. The layered wooden form resembles the anatomy of a traditional dhow while providing thermal comfort and spatial fluidity. The natural ventilation system, combined with recycled and reusable materials, exemplifies sustainability while establishing a tactile dialogue between climate, material, and memory.




A Multi-Sensory Cultural Experience
The exhibition experience is designed to engage all five senses. Through curated galleries, visitors explore the themes of connectivity, trade, craft, pearling, and ecology. Collaborations with artists and designers such as Sissel Tolaas, Shepherd Studio, Hassan Hujairi, and La Méduse immerse guests in Bahrain’s evolving identity as an island nation. The pavilion merges the cultural parallels between Bahrain and Japan, articulating the ocean’s role as a shared life source and cultural connector.



Celebrating Cultural Exchange Through Culinary and Design
The on-site café presents a fusion of Bahraini and Japanese cuisine crafted by award-winning chef Tala Bashmi. Visitors are invited to experience the pavilion not only through space and exhibitions but also through taste, emphasizing the cultural hybridity that defines Bahrain’s contemporary identity. Pavilion staff wear custom-designed attire by Lulwa Al Amin, incorporating motifs inspired by coastal life, while the gift store offers locally influenced design products for all ages.




An Economic and Architectural Showcase
The Bahrain Pavilion also includes a dedicated business floor curated by Bahrain’s Economic Development Board, highlighting the country’s strategic value as a global investment hub. The structure's architectural precision, environmental responsiveness, and cultural sensitivity position it as a model of sustainable pavilion architecture, aligning ecological responsibility with visionary design.






A Legacy of Sustainability and Symbolism
Designed by Lina Ghotmeh in collaboration with Bollinger & Grohmann Umezawa and ALG Lighting Group, the Bahrain Pavilion is not only a spatial experience but also a call to action—reminding the global audience of the necessity to preserve heritage while designing for the future. As Expo 2025 Osaka prepares to welcome over 28 million visitors, the pavilion offers a lasting impression of Bahrain’s identity, resilience, and architectural innovation.



All Photographs are works of Iwan Baan, Ishaq Madan
Popular Articles
Popular articles from the community
A Contemporary Take on Iranian Residential Architecture
A modern interior design in Mashhad that reinterprets brick, light, and spatial flow to create a warm, contemporary residential architecture.
Atelier Macri Concept Store Interior Design by CASE-REAL
Atelier Macri store features a "ko" counter, walnut wood details, cork displays, blending retail, gallery, and seamless customer experiences.
Louis Malle Cinema: A Limestone Cultural Landmark Revitalizing Community Life in Prayssac
Limestone cinema extension with public forecourt, blending heritage and modern design to create flexible cultural spaces and strengthen community interaction.
Flamboyant House by Juliana Camargo + Prumo Projetos
Modern Brazilian house integrating existing tree, pool, and volumes with glass, wood, and transitional spaces blending interior, exterior, and landscape seamlessly.
Similar Reads
You might also enjoy these articles
The Ken Roberts Memorial Delineation Competition (Krob)
As the most senior architectural drawing competition currently in operation anywhere in the world, it draws hundreds of entries each year, awarding the very best submissions in a series of medium-based categories.
Waterfront Redevelopment and Urban Revitalization in Mumbai: Forging a New Dawn for Darukhana
A transformative waterfront redevelopment project reimagining Darukhana’s shipbreaking heritage into an inclusive urban future.
OUT-OF-MAP: A Call for Postcards on Feminist Narratives of Public Space
Rhizoma Design and Research Lab invites artists, designers, architects, researchers, and students to reflect on how feminist perspectives can reshape public space. Selected works will be exhibited in Barcelona, October 2026. Submissions open until 15 April 2026.
Documentation Work on Buddhist Wooden Temple
Architectural syncretism and cultural hybridity: A comparative study of the Buddhist temples in Chattogram Hill tracks
Explore Architecture Competitions
Discover active competitions in this discipline
The International Standard for Design Portfolios
The Global Benchmark for Architecture Dissertation Awards
The Global Benchmark for Graduation Excellence
Challenge to reimagine the Iron Throne
Comments (0)
Please login or sign up to add comments
No comments yet. Be the first to comment!