Timeless Treasures Found at the Vintage Forge - 15 Studios
What hidden gems await at this vintage emporium?

Vintage Store Design: Combining Old and New Textures for a Unique Shopping Experience
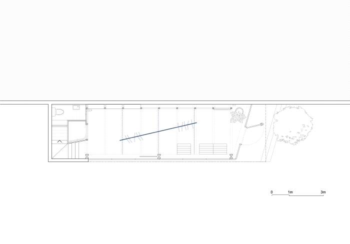
Located in the art district, the 15 Studio Eternal Hammer Vintage Store is a two-story steel frame building with weathering steel skin. With a limited budget, the design team faced the challenge of creating an atmosphere in line with the vintage store theme while utilizing the existing conditions.
The site's shape is similar to a long and narrow cone, and after repairing thermal insulation and waterproofing issues, the design retained the rough texture of the site and the narrow and long space. By placing a new frame and increasing the front and rear layers, a flexible partition was created that met the store's functional and display needs.
The first floor features a large open space in the middle, with all fixed functions arranged along the wall to leave ample room for vintage store displays, events, and offices. To add spatial dynamics and randomness, three hanging rails were designed on the top of the large space, with a 4.6-meter-long steel pipe hanger suspended underneath. This hanger can be randomly arranged according to the store's different needs, while L-shaped angle steel pieces on the wall can be flexibly placed for display boards.
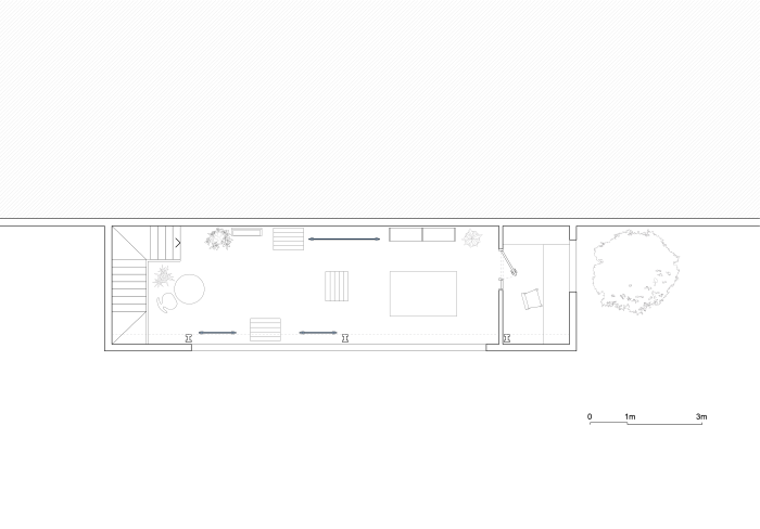
The second floor also retains a large space in the middle and uses different furniture arrangements to display non-hangable goods such as bags, shoes, and ornaments. Mirrors were strategically placed to guide the sight from outside to inside and create an interesting effect of echoing each other.
The colour blue was highly operable in the space to create an overall atmosphere. The floor slab on the second floor serves as the blue centre, while the top of the first floor retains the original steel frame and is painted blue. The hangers hanging on the top of the first floor and the hangers fixed on the ground of the second floor are also blue, establishing a connection between the two floors.
The design team also aimed to create a dialogue between old and new textures. The existing red brick texture on the wall and the weathering steel on the facade were repaired and stabilized to become the building's traces of time. Newly added materials such as steel, birch boards, plaster, non-slip iron plates, and mirrors contrast with the original materials, creating a multi-layered dialogue in a small space.
The 15 Studio Eternal Hammer Vintage Store successfully combines old and new textures to create a unique shopping experience. With its spatial dynamics, randomness, and overall atmosphere, this vintage store is a must-visit destination for shoppers looking for one-of-a-kind finds.




























LOCATION: CHINA - BEIJING
DESIGNER: 15 STUDIO
PROJECT YEAR: 2023
Popular Articles
Popular articles from the community
Flamboyant House by Juliana Camargo + Prumo Projetos
Modern Brazilian house integrating existing tree, pool, and volumes with glass, wood, and transitional spaces blending interior, exterior, and landscape seamlessly.
Treehouse Apartment: A Warm Timber Interior Blending Craft, Play, and Contemporary Living
Warm timber apartment with integrated treehouse, combining natural materials, craftsmanship, and playful design to create a flexible, family-oriented living environment.
Atelier Macri Concept Store Interior Design by CASE-REAL
Atelier Macri store features a "ko" counter, walnut wood details, cork displays, blending retail, gallery, and seamless customer experiences.
A Contemporary Take on Iranian Residential Architecture
A modern interior design in Mashhad that reinterprets brick, light, and spatial flow to create a warm, contemporary residential architecture.
Similar Reads
You might also enjoy these articles
The Ken Roberts Memorial Delineation Competition (Krob)
As the most senior architectural drawing competition currently in operation anywhere in the world, it draws hundreds of entries each year, awarding the very best submissions in a series of medium-based categories.
A Contemporary Take on Iranian Residential Architecture
A modern interior design in Mashhad that reinterprets brick, light, and spatial flow to create a warm, contemporary residential architecture.
Franche-Comté Advanced School of Engineering by Dominique Coulon & associés, Besançon
A flexible engineering school immersed in woodland, combining concrete minimalism, adaptable spaces, and natural light to support evolving educational environments.
Waterfront Redevelopment and Urban Revitalization in Mumbai: Forging a New Dawn for Darukhana
A transformative waterfront redevelopment project reimagining Darukhana’s shipbreaking heritage into an inclusive urban future.
Explore Architecture Competitions
Discover active competitions in this discipline
The International Standard for Design Portfolios
The Global Benchmark for Architecture Dissertation Awards
The Global Benchmark for Graduation Excellence
Challenge to reimagine the Iron Throne
Comments (0)
Please login or sign up to add comments
No comments yet. Be the first to comment!