Transformative Architecture: Redesigning an Apartment in Cascais for Modern Living
Explore how Site Specific Arquitectura transformed a 1970s apartment in Cascais into a modern haven, blending functionality with natural light and heritage elements.
In the bustling heart of Cascais, Portugal, lies a testament to the transformative power of architecture. Site Specific Arquitectura undertook a remarkable journey, reshaping a 2-bedroom apartment within a 1970s building into a contemporary oasis that defies its original design principles.



Embracing Change
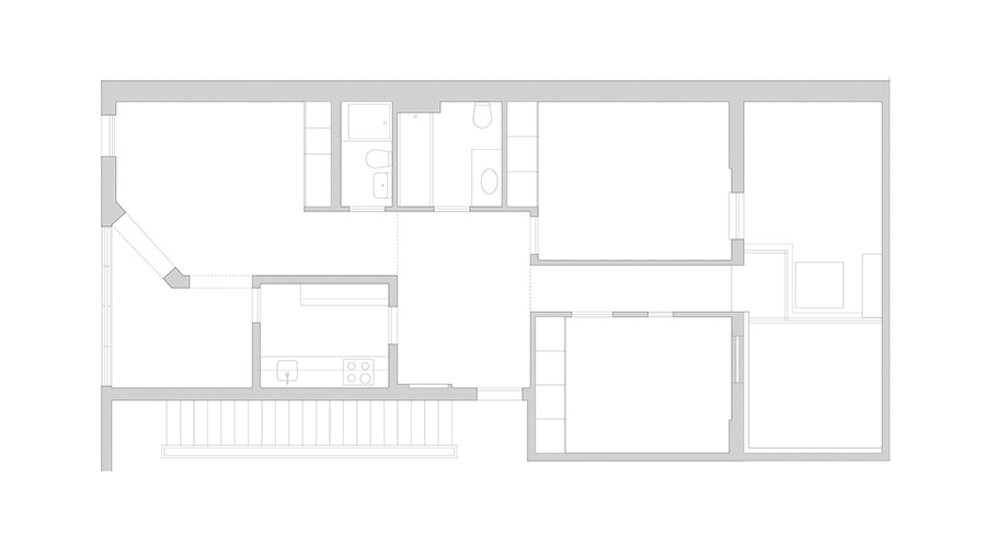
The project, nestled in Cascais' historic center near the ancient citadel, faced challenges common to older structures. A chaotic interior layout, altered over time, presented spatial inefficiencies and disconnected living spaces. The team saw an opportunity to reinvent this space, turning constraints into catalysts for creativity.



From Confinement to Connectivity
The apartment's initial state featured a cramped interior kitchen, disconnected from social areas and lacking in natural light. To counter this, Site Specific Arquitectura orchestrated a bold intervention. Non-structural walls were dismantled, infrastructure columns respected, and bathrooms redesigned for optimal functionality.



A Symphony of Light and Space
Central to the redesign was the reorientation towards natural light and seamless indoor-outdoor flow. South-facing living areas now open onto a generous terrace, blurring boundaries between inside and outside. Warm white tones and exposed timber windows accentuate the interplay of light and shadow, while raw concrete elements celebrate the building's heritage.



Rebirth Through Simplicity
The result is a harmonious blend of modern functionality and timeless aesthetics. The apartment's new avatar boasts fluid spaces, inviting social interaction and relaxation. Every corner breathes with newfound openness, inviting residents to embrace the beauty of simplicity and connectivity with nature.




All photographs are work of do mal o menos