Truper's Innovative Educational Hub Designed by Miguel Montor ArchitectureTruper's Innovative Educational Hub Designed by Miguel Montor Architecture

Truper's Innovative Educational Hub Designed by Miguel Montor Architecture

Hala Nadwa
Hala Nadwa published News under Architecture on
@ONNIS LUQUE
@ONNIS LUQUE

Truper, a tool manufacturing plant located in Jilotepec, has experienced significant growth in recent years. As a result, the company required additional facilities such as industrial dining rooms, offices, and parking lots to accommodate the increasing enrollment of its workers. The company sought a contemporary architectural design that would improve the physical workplace conditions for its employees while also benefiting the community. This led to the creation of the Truper Educational Support Center designed by Miguel Montor Architecture.

The centre was designed to serve as a tool for education, providing support to children of workers and the wider community of Jilotepec. The project was initiated through a public program where the company allocated non-tax-deductible resources to generate a social benefit. The vision was to improve the educational level of the community and provide assistance to people of all ages and backgrounds to continue with subsequent studies.

The Truper Educational Support Center boasts avant-garde technology integrated to improve the performance of its academic activities. The building has a specific educational program, and its aim is to regularize and support whoever needs it. The centre is not a traditional school, and anyone can attend, making it a unique addition to the community's educational resources.

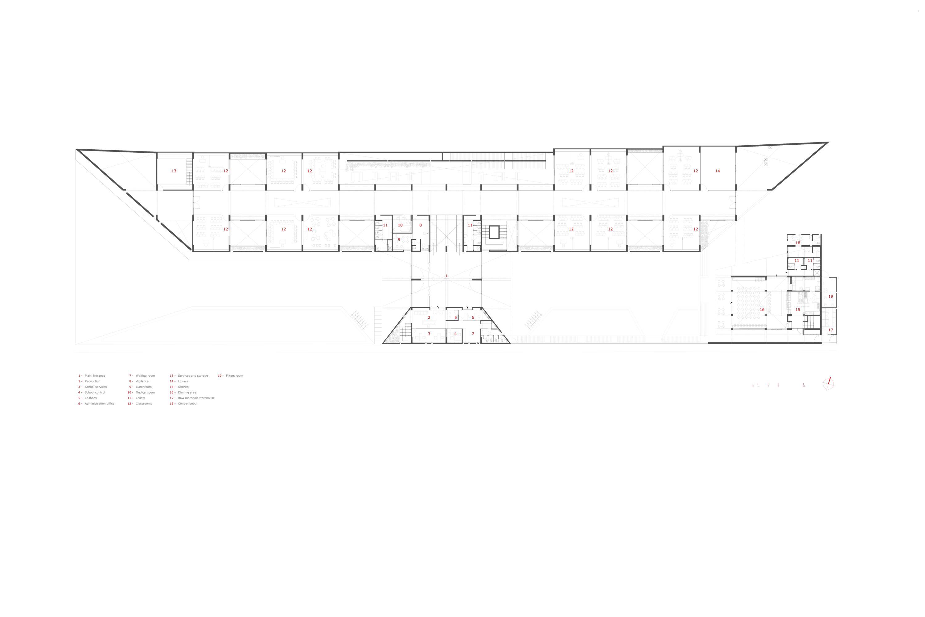
The centre's design reflects safety, functionality, and efficiency, emphasizing the importance of tectonic elements and structural interpretation. The geometries throughout the project are sharp and clean, and the materials used reflect the company's identity with orange and ocher tones. The load-bearing system is noticeable, and grey tones predominate. The building is transparent at night, serving as an urban lamp that provides a sense of security.

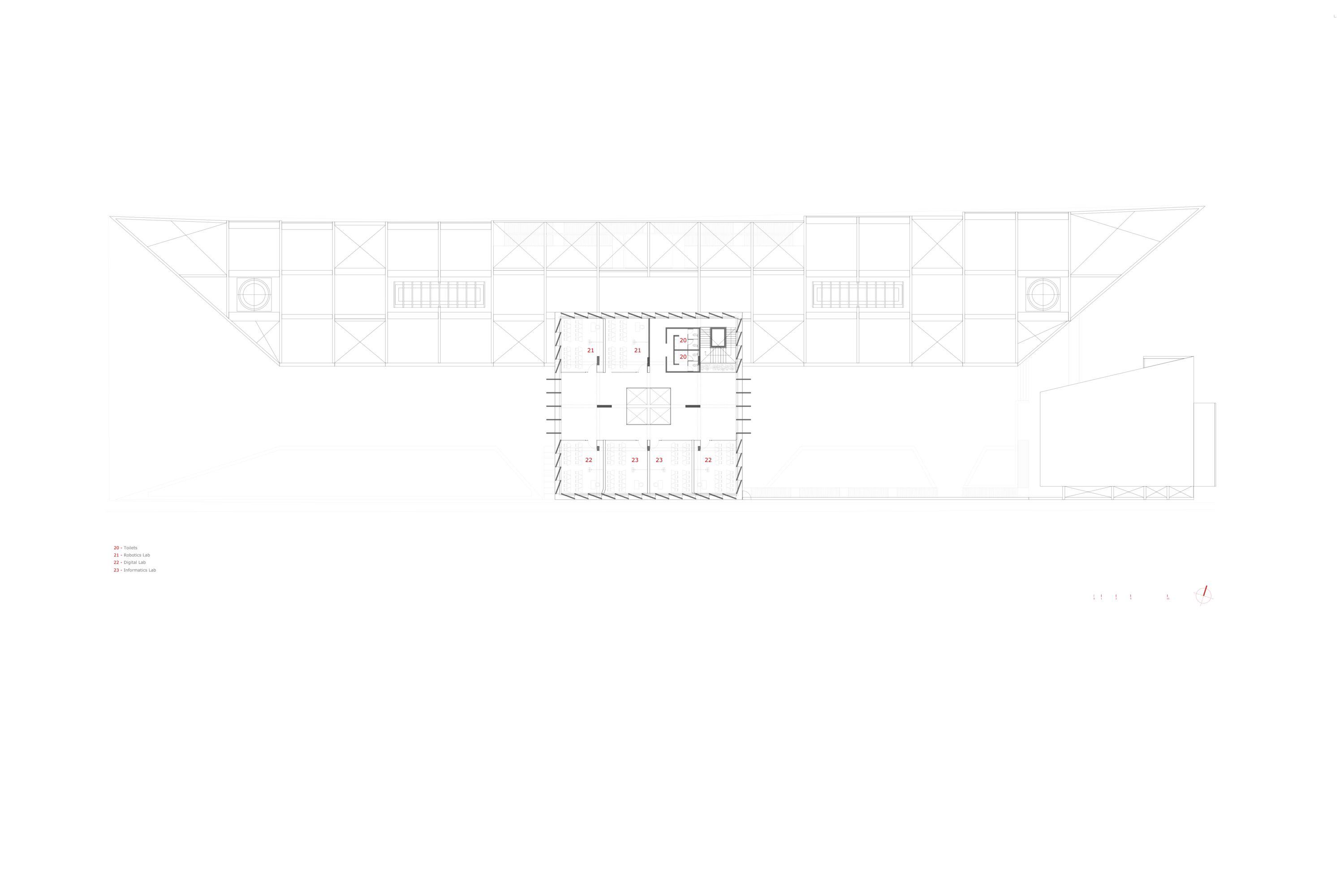
The Truper Educational Support Center has a linear conformation in a narrow and long geometry that participates with its surroundings without being too loud. The building's classrooms maintain the same height as the rest of the neighbourhood, and a public square is placed as access on the side that has contact with the street. The classrooms are situated in an internal cloister, leaving the main entrance and the rectory in clear view. The cafeteria is open to the public for its appropriation, and the access portal is generated by a block of laboratories that rests on the rectory and classrooms, generating a tectonic dolmen.

The spaces within the centre are well illuminated, with 50% of the walls of each classroom having translucent surfaces. The classrooms are well-ventilated, always looking for crossed air circulation, and follow a semi-open scheme between classrooms and patios. The spaces were oriented to benefit the classrooms' temperature, with facades oriented in accordance with the sunlight analysis.

In essence, the architecture of the Truper Educational Support Center seeks to provide a social benefit through a private tool that reflects security, transparency, order, and efficiency. With its contemporary design, avant-garde technology, and unique educational program, the centre is a valuable addition to Jilotepec's community resources for recreation and training.

@ONNIS LUQUE
@ONNIS LUQUE
@ONNIS LUQUE
@ONNIS LUQUE
@ONNIS LUQUE
@ONNIS LUQUE
@ONNIS LUQUE
@ONNIS LUQUE
@ONNIS LUQUE
@ONNIS LUQUE
@ONNIS LUQUE
@ONNIS LUQUE
@ONNIS LUQUE
@ONNIS LUQUE
@ONNIS LUQUE
@ONNIS LUQUE
@ONNIS LUQUE
@ONNIS LUQUE
@ONNIS LUQUE
@ONNIS LUQUE
@ONNIS LUQUE
@ONNIS LUQUE
@ONNIS LUQUE
@ONNIS LUQUE
@ONNIS LUQUE
@ONNIS LUQUE
@ONNIS LUQUE
@ONNIS LUQUE
@ONNIS LUQUE
@ONNIS LUQUE
@ONNIS LUQUE
@ONNIS LUQUE
@ONNIS LUQUE
@ONNIS LUQUE
@ONNIS LUQUE
@ONNIS LUQUE
@ONNIS LUQUE
@ONNIS LUQUE
@ONNIS LUQUE
@ONNIS LUQUE
@ONNIS LUQUE
@ONNIS LUQUE
@ONNIS LUQUE
@ONNIS LUQUE
@ONNIS LUQUE
@ONNIS LUQUE
@ONNIS LUQUE
@ONNIS LUQUE
@TALLER DE ARQUITECTURA MIGUEL MONTOR
@TALLER DE ARQUITECTURA MIGUEL MONTOR
@TALLER DE ARQUITECTURA MIGUEL MONTOR
@TALLER DE ARQUITECTURA MIGUEL MONTOR
@TALLER DE ARQUITECTURA MIGUEL MONTOR
@TALLER DE ARQUITECTURA MIGUEL MONTOR
@TALLER DE ARQUITECTURA MIGUEL MONTOR
@TALLER DE ARQUITECTURA MIGUEL MONTOR
@TALLER DE ARQUITECTURA MIGUEL MONTOR
@TALLER DE ARQUITECTURA MIGUEL MONTOR
@TALLER DE ARQUITECTURA MIGUEL MONTOR
@TALLER DE ARQUITECTURA MIGUEL MONTOR
@TALLER DE ARQUITECTURA MIGUEL MONTOR
@TALLER DE ARQUITECTURA MIGUEL MONTOR
@TALLER DE ARQUITECTURA MIGUEL MONTOR
@TALLER DE ARQUITECTURA MIGUEL MONTOR
@TALLER DE ARQUITECTURA MIGUEL MONTOR
@TALLER DE ARQUITECTURA MIGUEL MONTOR
@TALLER DE ARQUITECTURA MIGUEL MONTOR
@TALLER DE ARQUITECTURA MIGUEL MONTOR
@TALLER DE ARQUITECTURA MIGUEL MONTOR
@TALLER DE ARQUITECTURA MIGUEL MONTOR
@TALLER DE ARQUITECTURA MIGUEL MONTOR
@TALLER DE ARQUITECTURA MIGUEL MONTOR
@TALLER DE ARQUITECTURA MIGUEL MONTOR
@TALLER DE ARQUITECTURA MIGUEL MONTOR
@TALLER DE ARQUITECTURA MIGUEL MONTOR
@TALLER DE ARQUITECTURA MIGUEL MONTOR
@TALLER DE ARQUITECTURA MIGUEL MONTOR
@TALLER DE ARQUITECTURA MIGUEL MONTOR

Architects: Taller de Arquitectura Miguel Montor

Year: 2022

Proyecto: Miguel Montor

Equipo De Diseño: Pilar Rico, Diego Portilla, Iván Bustillos, Jorge Olvera

Estructura: Juan José Larios

Instalaciones: Uriel García

Construcción: Active Pádel Deportes

Cliente: Truper

City: Jilotepec de Molina Enríquez

Country: Mexico

Hala Nadwa
Share your ideas with the world

Share your ideas with the world

Write about your design process, research, or opinions. Your voice matters in the architecture community.

Comments (0)

No comments yet. Be the first to comment!

Similar Reads

You might also enjoy these articles

publishedNews6 days ago
Zhuxi Wonderland: Reimagining Traditional Chinese Gardens by Doarchi Architects
publishedNews1 week ago
Doble Soga House: A Contemporary Brick Residence Rooted in Landscape in Quito, Ecuador
publishedNews1 week ago
Al Gharra Mosque in Medina Redefining Contemporary Islamic Architecture
publishedNews1 week ago
Viczonecode Villa by DDconcept – Tropical Family Living in Ho Chi Minh City

Explore Architecture Competitions

Discover active competitions in this discipline

Hala Nadwa
Search in