Yoga House by Cát Môc Group: A Green Oasis in the Heart of Ho Chi Minh City
A five-story eco-home in Ho Chi Minh City, blending greenery, brick ventilation, and rooftop gardens for sustainable, peaceful living.
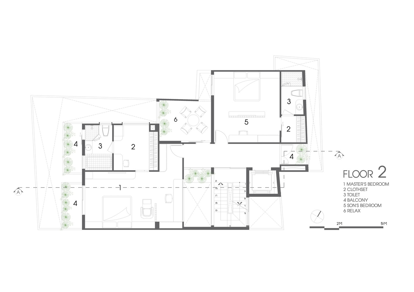
Located in a densely populated neighborhood of District 11, Ho Chi Minh City, Yoga House by Cát Môc Group is a five-story, eco-conscious residence designed to create a calm, nature-filled sanctuary for a family of four. With a compact site area of 185m² facing the harsh west-southwest sun, the architects took a biophilic and climate-responsive approach to ensure comfort, greenery, and sustainability in every corner of the home.


Sustainable Façade and Passive Cooling
One of the most iconic features of Yoga House is its ventilated brick façade, crafted with 25,000 staggered bricks. These create countless breathing holes that filter harsh sunlight, allow air circulation, and provide passive cooling. Combined with lush greenery on each level, the design serves as a natural buffer against dust, pollution, and heat—enhancing both privacy and environmental comfort.


Seamless Integration of Nature
To bring nature indoors, each level of the home includes at least one garden or green pocket. Trees line the hallways and balcony edges, forming a living “shield” to reduce urban noise and improve indoor air quality. A reflective aquarium at the entrance, encircled by verdant plants, adds a cooling effect and offers a serene view from the living room.

Warm Minimalist Interiors
The interior material palette emphasizes natural simplicity, featuring brown and beige tones, concrete floors, wood finishes, and glass partitions. Glass walls and sliding doors dissolve barriers between indoor and outdoor spaces, maximizing light and visual connection to nature. This design strategy not only creates a spacious feel but also invites daylight to dance through the perforated brickwork—creating dynamic light patterns that change throughout the day.


Rooftop Garden & Urban Farming
The often-overlooked rooftop terrace has been transformed into a lush 45m² tropical garden with a vegetable-growing area, geotextile layers for waterproofing, and an automated watering system. A mesh dome overhead shelters the greenery from sun and rain while maintaining openness. This rooftop retreat includes a seating area where residents can relax, sip tea, or practice yoga—making the most of urban living with a close connection to nature.

A Model of Urban Sustainability
Yoga House reflects modern tropical architecture with a deep respect for the local climate and lifestyle. It addresses the challenges of urban heat, limited space, and air quality through green design principles, creating a tranquil, breathable, and functional home that nurtures the well-being of its occupants.



All the photogrpahs are works of Phú Đào Studio
Popular Articles
Popular articles from the community
Treehouse Apartment: A Warm Timber Interior Blending Craft, Play, and Contemporary Living
Warm timber apartment with integrated treehouse, combining natural materials, craftsmanship, and playful design to create a flexible, family-oriented living environment.
Louis Malle Cinema: A Limestone Cultural Landmark Revitalizing Community Life in Prayssac
Limestone cinema extension with public forecourt, blending heritage and modern design to create flexible cultural spaces and strengthen community interaction.
Solar Steam: A Climate-Responsive Architecture That Redefines the Monument
A climate-responsive memorial architecture that transforms heat, decay, and time into a living system reflecting humanity’s ecological impact.
A Contemporary Take on Iranian Residential Architecture
A modern interior design in Mashhad that reinterprets brick, light, and spatial flow to create a warm, contemporary residential architecture.
Similar Reads
You might also enjoy these articles
The Ken Roberts Memorial Delineation Competition (Krob)
As the most senior architectural drawing competition currently in operation anywhere in the world, it draws hundreds of entries each year, awarding the very best submissions in a series of medium-based categories.
Waterfront Redevelopment and Urban Revitalization in Mumbai: Forging a New Dawn for Darukhana
A transformative waterfront redevelopment project reimagining Darukhana’s shipbreaking heritage into an inclusive urban future.
OUT-OF-MAP: A Call for Postcards on Feminist Narratives of Public Space
Rhizoma Design and Research Lab invites artists, designers, architects, researchers, and students to reflect on how feminist perspectives can reshape public space. Selected works will be exhibited in Barcelona, October 2026. Submissions open until 15 April 2026.
Documentation Work on Buddhist Wooden Temple
Architectural syncretism and cultural hybridity: A comparative study of the Buddhist temples in Chattogram Hill tracks
Explore Architecture Competitions
Discover active competitions in this discipline
The International Standard for Design Portfolios
The Global Benchmark for Architecture Dissertation Awards
The Global Benchmark for Graduation Excellence
Challenge to reimagine the Iron Throne
Comments (0)
Please login or sign up to add comments
No comments yet. Be the first to comment!