Adaptive Reuse Architecture: Transforming Spaces with Lantern by OMA in Detroit
The article explores OMA's Lantern project in Detroit, showcasing adaptive reuse architecture's transformative impact on urban spaces and sustainable community design.
In the realm of architecture, the concept of adaptive reuse has gained significant traction in recent years. It refers to the practice of repurposing existing structures for new functions, often incorporating sustainable design principles. One standout example of this trend is Lantern, a project by renowned architecture firm OMA in Detroit, United States.



The Evolution of Lantern
Lantern, OMA's debut project in Detroit, marks a significant shift in urban development strategies. Situated in the vibrant Little Village, this initiative spearheaded by Library Street Collective co-founders Anthony & JJ Curis breathes new life into a former commercial bakery and warehouse dating back to the 1900s.



Redefining Spaces: A Mixed-Use Art Hub
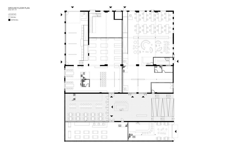
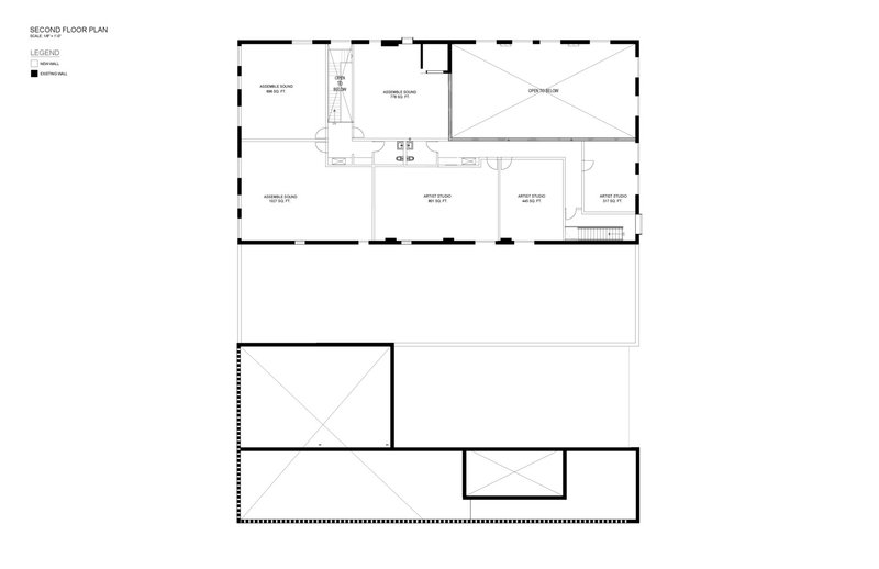
Led by OMA Partner Jason Long, Lantern encompasses 22,300 square feet of dynamic spaces. It serves as a multifaceted art hub and public venue, housing local arts non-profits like Signal-Return and PASC (Progressive Arts Studio Collective). The project also features artist studios, galleries, creative retail outlets, and a welcoming 2,000-square-foot outdoor courtyard—a focal point for community engagement.



Sustainability in Action
What sets Lantern apart is its approach to sustainability through adaptive reuse. OMA leveraged the building's existing structure, creatively transforming areas lacking roofs and walls into functional spaces. The courtyard, strategically positioned at the heart of Lantern, serves as a public gateway and activity hub. This design not only minimizes environmental impact but also fosters a sense of connectivity within the community.




Community-Centric Design
One of Lantern's strengths lies in its thoughtful layout. Production zones and artist studios face Amity Street, creating an interactive streetscape. Galleries flank the courtyard, emphasizing its role as a communal gathering space. Additionally, amenities along Kercheval Avenue cater to the neighborhood, enhancing accessibility and inclusivity.






The Impact of Adaptive Reuse Architecture
Lantern exemplifies the potential of adaptive reuse architecture to revitalize urban areas sustainably. By preserving historical structures and integrating modern functionalities, projects like Lantern bridge the past and present while shaping a more vibrant future for cities.




All the photographs are work of John D’Angelo, Jason Keen
Popular Articles
Popular articles from the community
A Contemporary Take on Iranian Residential Architecture
A modern interior design in Mashhad that reinterprets brick, light, and spatial flow to create a warm, contemporary residential architecture.
Treehouse Apartment: A Warm Timber Interior Blending Craft, Play, and Contemporary Living
Warm timber apartment with integrated treehouse, combining natural materials, craftsmanship, and playful design to create a flexible, family-oriented living environment.
Inverted Architecture Installation by Studio Link-Arc: Exploring the Intersection of Architecture and Living Organisms
Inverted Architecture Installation by Studio Link-Arc blends mycelium, sustainability, inverted design, ecological cycles, and urban adaptive architecture in Shenzhen.
Louis Malle Cinema: A Limestone Cultural Landmark Revitalizing Community Life in Prayssac
Limestone cinema extension with public forecourt, blending heritage and modern design to create flexible cultural spaces and strengthen community interaction.
Similar Reads
You might also enjoy these articles
The Ken Roberts Memorial Delineation Competition (Krob)
As the most senior architectural drawing competition currently in operation anywhere in the world, it draws hundreds of entries each year, awarding the very best submissions in a series of medium-based categories.
Waterfront Redevelopment and Urban Revitalization in Mumbai: Forging a New Dawn for Darukhana
A transformative waterfront redevelopment project reimagining Darukhana’s shipbreaking heritage into an inclusive urban future.
OUT-OF-MAP: A Call for Postcards on Feminist Narratives of Public Space
Rhizoma Design and Research Lab invites artists, designers, architects, researchers, and students to reflect on how feminist perspectives can reshape public space. Selected works will be exhibited in Barcelona, October 2026. Submissions open until 15 April 2026.
Documentation Work on Buddhist Wooden Temple
Architectural syncretism and cultural hybridity: A comparative study of the Buddhist temples in Chattogram Hill tracks
Explore Architecture Competitions
Discover active competitions in this discipline
The International Standard for Design Portfolios
The Global Benchmark for Architecture Dissertation Awards
The Global Benchmark for Graduation Excellence
Challenge to reimagine the Iron Throne
Comments (0)
Please login or sign up to add comments
No comments yet. Be the first to comment!