Adaptive Reuse Architecture: Voids of Kiryu by Negishi Kenchiku Studio
The article explores how Voids of Kiryu exemplifies adaptive reuse architecture, transforming an aging building into a vibrant commercial space.
Voids of Kiryu, a project by Negishi Kenchiku Studio, is a masterful example of adaptive reuse architecture in Kiryu, Japan. This innovative renovation revitalizes the ground floor of a six-story apartment building, transforming an outdated and unutilized space into a vibrant, flexible area for commercial use. Completed in 2024, the project exemplifies the potential of adaptive reuse in urban settings, blending contemporary design principles with sustainability and functionality.



The Context and Challenges of the Project
Located just outside the urban core of Kiryu, the building faced challenges common to aging structures, including a vacant ground-floor space that had remained unrented for years. Negishi Kenchiku Studio addressed these issues through a strategic renovation that not only improved the building’s aesthetic appeal but also restored its recognition within the community. By integrating thoughtful design elements, the architects reinvigorated the property and aligned it with modern commercial demands.


Exterior Design: Transparency and Integration with the Streetscape
The exterior of the renovated space embraces lightness and transparency, achieved by replacing the existing aluminum sashes with expanded metal panels. These panels create a visually striking yet functional facade that enhances natural light while maintaining privacy. A small garden was introduced between the exterior wall and the existing sashes, adding greenery and creating a buffer between the building and the streetscape.


This approach establishes a cohesive design code that ensures the building’s exterior remains consistent and appealing, fostering harmony within the surrounding urban environment. Tenants are encouraged to manage the plants in the garden, contributing to a more dynamic and engaging streetscape.

Interior Design: Flexibility and Minimalism
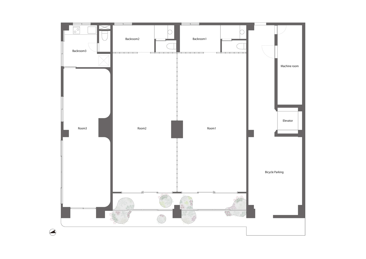
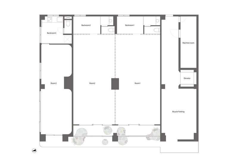
The interior renovation reflects a minimalist approach, offering maximum flexibility for future tenants. In vacant stores 1 and 2, the space has been stripped down to its essentials, with exposed stud wall foundations providing a raw, industrial aesthetic. This deliberate decision allows tenants the freedom to customize the interior design, enhancing the appeal for a wide range of potential renters.

A central pillar divides the space into two rooms, each equipped with a toilet at the rear. The silver walls and glossy floor finish amplify natural light, creating an open and airy atmosphere despite the relatively low ceilings. This understated yet functional design ensures the space can adapt to various commercial uses while maintaining a cohesive architectural identity.

Store 3: A Unique Spatial Experience
Store 3 presents a long and narrow layout, characterized by a stark contrast between its open north side and closed south side. The north side features numerous openings that invite natural light and frame dynamic outdoor views, while the south side is defined by a large concrete block wall and partition.

The design of this space embraces ambiguity, striking a balance between the dynamic exterior and the static interior. By emphasizing the abstraction of the interior space, the architects allow the vibrant outdoor scenery to take center stage. The resulting environment offers a serene yet engaging experience, inviting users to interact with the space in unique and meaningful ways.

Sustainability and Community Impact
The project’s adaptive reuse approach aligns with sustainable architectural practices by repurposing an existing structure rather than constructing a new one. This strategy minimizes material waste and reduces the carbon footprint of the renovation. Additionally, the integration of greenery and the promotion of tenant involvement in plant management foster a sense of community ownership and environmental stewardship.


A Visionary Example of Adaptive Reuse Architecture
Voids of Kiryu by Negishi Kenchiku Studio is a testament to the transformative power of adaptive reuse architecture. Through thoughtful design and innovative solutions, the project breathes new life into an aging structure, creating a dynamic and flexible space that caters to modern commercial needs while respecting its urban context. This renovation not only revitalizes the building but also enriches the surrounding community, setting a benchmark for sustainable and adaptive design in regional cities.



All Photographs are work of Shinsuke Hayakawa