Adaptive Reuse Cultural Center in Jakarta: Space Available Transforms Andra Matin’s Legacy into a Sustainable Community Hub
Space Available transforms a historic Jakarta building into a modular, sustainable, and wellness-driven adaptive reuse cultural center and hub.
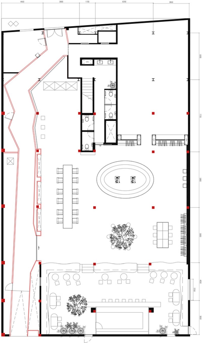
Located in the once culturally vibrant neighborhood of Kemang, Jakarta, the Space Available Jakarta Community Center stands as a powerful example of adaptive reuse cultural center architecture. Originally designed by acclaimed Indonesian architect Andra Matin, the building had seen decades of transformations that obscured its original intent. In 2025, Space Available took on the challenge of renovating this layered structure, not only restoring its spatial potential but reimagining it as a modular, flexible, and community-driven platform for culture, wellness, and sustainability.



Preserving Legacy Through Adaptive Reuse
The renovation began with a deep respect for the building’s historical and architectural significance. Yet, rather than a straightforward restoration, the project took the approach of adaptive reuse, peeling back years of ad-hoc modifications to expose and resolve structural inconsistencies. Outdated systems were replaced with environmentally responsive alternatives, aligning the project with contemporary needs while preserving the spatial logic embedded by Matin.


The intent was not nostalgia but reinvention — to breathe new life into the building by framing it as an open, evolving system responsive to its users and community. The result is a cultural center rooted in history but articulated for the future.


Circular Design and Local Craftsmanship
At the heart of this adaptive reuse strategy lies a commitment to circular design. More than 11 tons of recycled plastic, locally sourced and hand-processed by Indonesian artisans, form the primary structural and interior elements. Walls, columns, and even furniture embody this material reuse, making the building itself a narrative of sustainability.


This craft-led approach continues with handwoven furnishings, naturally dyed textiles, and elements created using traditional techniques — all reinterpreted through a contemporary lens. By embedding sustainability into every material choice and design gesture, the space becomes both functional and symbolic.


A Modular Ecosystem of Engagement
Unlike traditional cultural buildings or retail spaces, the Space Available Jakarta Community Center was envisioned as a living ecosystem guided by five core pillars: movement, meditation, learning, listening, and nourishing. These values organize the building’s spatial program and inform its user experiences.


Inside, modularity replaces rigidity. Zones are defined yet flexible — from a conversation pit with plastic recycling machines to a meditation room, sound library, reading room, and a medicinal restaurant and bar. Every space is curated for interaction, reflection, and participation.


This adaptability transforms the building into a platform for public engagement. Visitors don’t just pass through; they contribute to, co-create with, and learn from the environment.

A New Model for Cultural Centers
Through its innovative combination of adaptive reuse, circular economy practices, and wellness-driven programming, this community center disrupts conventions of both architecture and retail. Events, workshops, cultural talks, and educational forums animate the space, ensuring that it remains relevant, dynamic, and rooted in collective well-being.



In doing so, Space Available not only revitalized a landmark building but catalyzed the regeneration of the surrounding Kemang neighborhood. The project exemplifies how a cultural center can be more than a destination — it can be an active agent for urban, social, and environmental renewal.
This is adaptive reuse cultural architecture at its most impactful: deeply local, globally aware, and radically human-centered.


All Photographs are works of Ernest Theofilus
Popular Articles
Popular articles from the community
Inverted Architecture Installation by Studio Link-Arc: Exploring the Intersection of Architecture and Living Organisms
Inverted Architecture Installation by Studio Link-Arc blends mycelium, sustainability, inverted design, ecological cycles, and urban adaptive architecture in Shenzhen.
Gads Hill Early Learning Center by JGMA: Adaptive Reuse Shaping Community-Focused Educational Architecture
Adaptive reuse transforms fragmented structure into vibrant early learning center with playful façade, natural light, and community-focused sustainable design.
The Ken Roberts Memorial Delineation Competition (Krob)
As the most senior architectural drawing competition currently in operation anywhere in the world, it draws hundreds of entries each year, awarding the very best submissions in a series of medium-based categories.
Free Architecture Competitions You Can Enter Right Now
No entry fees, real prizes. Here are the best free architecture competitions open for submissions in 2026.
Similar Reads
You might also enjoy these articles
The Ken Roberts Memorial Delineation Competition (Krob)
As the most senior architectural drawing competition currently in operation anywhere in the world, it draws hundreds of entries each year, awarding the very best submissions in a series of medium-based categories.
Waterfront Redevelopment and Urban Revitalization in Mumbai: Forging a New Dawn for Darukhana
A transformative waterfront redevelopment project reimagining Darukhana’s shipbreaking heritage into an inclusive urban future.
OUT-OF-MAP: A Call for Postcards on Feminist Narratives of Public Space
Rhizoma Design and Research Lab invites artists, designers, architects, researchers, and students to reflect on how feminist perspectives can reshape public space. Selected works will be exhibited in Barcelona, October 2026. Submissions open until 15 April 2026.
Documentation Work on Buddhist Wooden Temple
Architectural syncretism and cultural hybridity: A comparative study of the Buddhist temples in Chattogram Hill tracks
Explore Architecture Competitions
Discover active competitions in this discipline
The International Standard for Design Portfolios
The Global Benchmark for Architecture Dissertation Awards
The Global Benchmark for Graduation Excellence
Challenge to reimagine the Iron Throne
Comments (0)
Please login or sign up to add comments
No comments yet. Be the first to comment!