Adaptive Reuse of Industrial Heritage: The Transformation of Youjia'ao Community Center
This article explores the adaptive reuse of the Nanjing Compressor Factory into the Youjia'ao Community Center, highlighting sustainable urban development and heritage preservation.
Preserving Nanjing's Industrial Legacy
The Youjia'ao Community Center in Nanjing, China, stands as a testament to the power of adaptive reuse in preserving industrial heritage. Originally the Nanjing Compressor Factory, established in the 1950s, this site has been revitalized by UA GROUP into a vibrant community hub, honoring its historical significance while serving contemporary needs.






Design Philosophy: Balancing Preservation and Innovation
UA GROUP approached the project with a commitment to three core principles: safety, authenticity, and reversibility. By maintaining the structural integrity of the original buildings and introducing new elements that can be removed without damaging the historic fabric, the design ensures that the site's industrial character remains intact.





Architectural Features: Merging Old and New
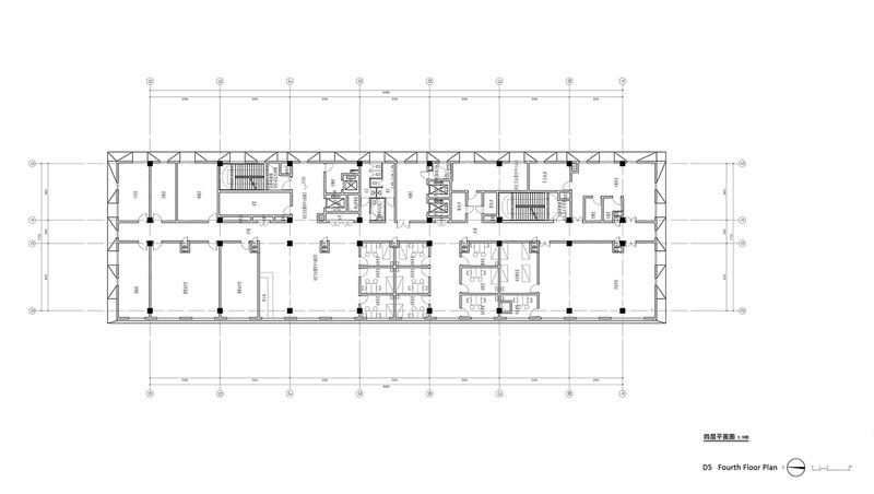
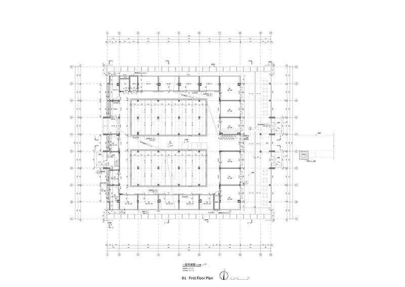
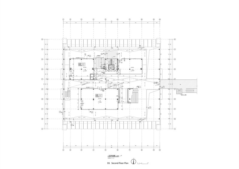
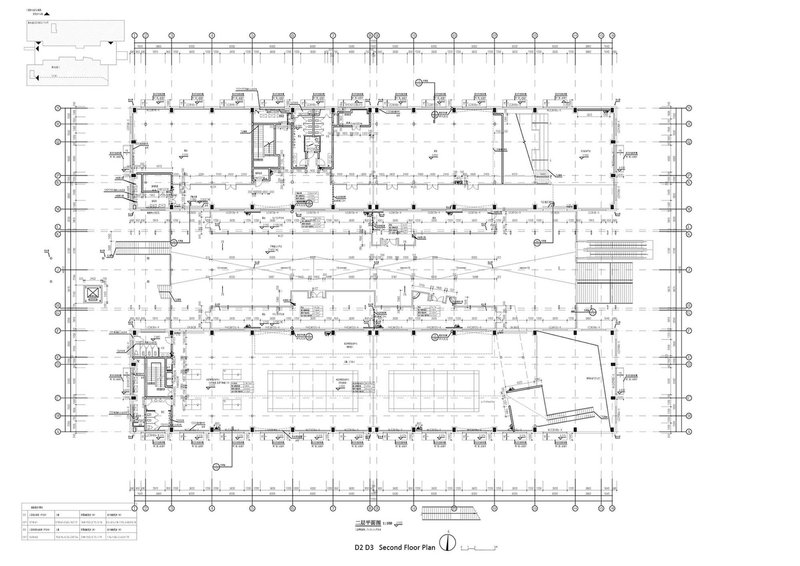
The transformation includes the introduction of the "Cloud Shadow" corridor, a lightweight structure that connects various functional areas such as cultural, sports, commercial, and healthcare facilities. This corridor contrasts with the robust industrial architecture, creating a dynamic interplay between the old and the new.





One of the factory's iconic structures, the large warehouse with an arched curved grid, has been preserved and adorned with triangular membrane installations resembling flying birds, adding a sense of movement and vitality to the space.




Community Integration and Sustainability
The adaptive reuse project emphasizes community engagement by providing spaces for social interaction, cultural activities, and essential services. The design also incorporates sustainable practices, such as transforming an abandoned water pool into a sunken plaza and preserving existing trees, enhancing the site's ecological value.






Impact on Urban Renewal
The Youjia'ao Community Center exemplifies how adaptive reuse of industrial heritage can contribute to sustainable urban development. By repurposing existing structures, the project reduces the environmental impact of new construction and fosters a sense of continuity and identity within the community.







All Photographs are works of Bowen Hou
Popular Articles
Popular articles from the community
Architects Group RAUM Stacks Offset White Volumes into a Compact Office Tower in Busan
A 524-square-meter building on a tight corner lot in Haeundae plays with sunlight rights and shifting floor plates to create generous terraces.
boq architekti Fits a Gabled Family House onto a Tiny Moravian Hillside Plot with No Room for a Garden
A 115 square meter home in South Moravia trades a garden for a rooftop terrace and a fully glazed facade facing the village below.
H&P Architects Stack a Vertical River of Brick and Greenery in Hanoi
A perforated terracotta tower in Dong Anh channels water, light, and air through eight staggered levels of domestic life.
Paco Oria Estudio Rebuilds a 1949 Valencian Town House Around Timber, Terracotta, and a New Interior Patio
In Godella, Spain, a semi-detached house from the postwar era is stripped to its party walls and rebuilt with wood and ceramics.
Similar Reads
You might also enjoy these articles
Bamboo Housing Challenge 2026: Design Affordable, Sustainable Homes Using Bamboo
An international design competition by Bamboo U and IBUKU inviting architects and designers to reimagine affordable housing using bamboo — with the winning design built full-scale in Bali.
Computational Design & Education: Beegraphy Design Awards Introduces 7th Category (Featuring Jiyun's Innovative Approach)
Dive into Beegraphy’s 7th Design Awards category, where computational design meets education to create immersive, interactive learning tools, inspired by Jiyun’s work.
From Parametric Lighting to Urban Furniture: Join the 2nd Workshop in Beegraphy’s Computational Design Series
Dive into Cutting-Edge Design Techniques and Practical Applications with Industry Experts
Introducing Sphere by UNI: Pioneering a New Era in AEC Industry
Unlocking Global Potential with BIM and Agile Management
Explore Architecture Competitions
Discover active competitions in this discipline
The International Standard for Design Portfolios
The Global Benchmark for Architecture Dissertation Awards
The Global Benchmark for Graduation Excellence
Challenge to reimagine the Iron Throne
Comments (0)
Please login or sign up to add comments
No comments yet. Be the first to comment!