Adaptive Rooftop Architecture: SORA Rooftop Bar & Restaurant by PACT Architects
SORA Rooftop Bar & Restaurant by PACT Architects showcases adaptive rooftop architecture with an operable skin, climate-responsive design, and urban integration.
Adaptive rooftop architecture is redefining urban spaces, offering dynamic environments that respond to climate, function, and cityscape aesthetics. SORA Rooftop Bar & Restaurant, designed by PACT Architects, exemplifies this innovation through its operable skin and lightweight structure, creating a seamless relationship between architecture and nature. Located atop an existing office building in Adelaide’s CBD, SORA enhances the urban skyline while maintaining sensitivity to its historic context and functionality as a hospitality destination.


A Contextual Approach to Rooftop Design
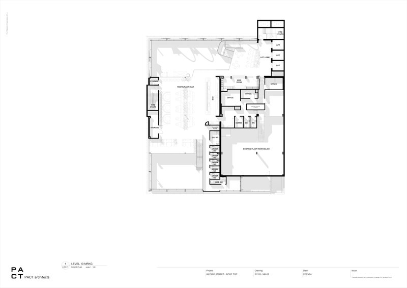
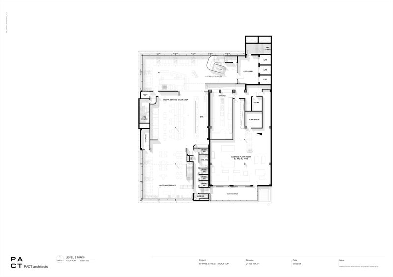
SORA’s location on levels 9 and 10 of an occupied office building presents a unique architectural challenge. Instead of providing sweeping panoramic views, the rooftop space frames carefully curated perspectives of the city, laneways, and surrounding hills. This design choice ensures an intimate connection with the urban environment while respecting the heritage significance of Pirie House, which sits directly below.

The architectural language of SORA acknowledges the historical context with its modern interpretation of arched forms. Stretched parabolic arches reference Pirie House’s design, creating a visual dialogue between past and present. The result is an architectural landmark that integrates seamlessly into the cityscape while asserting its own contemporary identity.

Operable Design for Climate Adaptability
Rooftop environments present challenges due to exposure to the elements, particularly in climates with significant seasonal variations. SORA’s innovative response lies in its operable skin—a façade and roof system that can retract and expand in response to weather conditions. This adaptability allows the space to function optimally year-round, ensuring comfort for patrons while enhancing the building’s environmental performance.


By allowing natural ventilation and adjusting shading as needed, the design reduces the reliance on artificial cooling and heating. This approach aligns with sustainable architecture principles, demonstrating how adaptive rooftop architecture can enhance both functionality and ecological responsibility.


Materiality and Atmosphere
The material choices for SORA are deeply connected to its function as a hospitality venue. The design embraces the raw, tactile qualities of materials that reflect fire-based culinary techniques, the open-air rooftop experience, and the ambition of the client’s vision. These materials contribute to an immersive atmosphere where architecture and gastronomy come together.

Beyond aesthetics, the selected materials also support the adaptive nature of the space. Durable and weather-resistant elements ensure longevity, while lightweight construction methods allow for structural efficiency without overburdening the existing building. The careful balance of materials reinforces SORA’s role as both a destination and an extension of the city’s evolving urban fabric.
Urban Activation and Branding Through Architecture
SORA is more than just a rooftop venue; it is an architectural statement that reinforces brand identity through design. The project’s integration of adaptive architectural elements and urban positioning ensures that its presence is felt at both the city scale and the intimate, experiential level.

From the moment guests arrive, the venue’s spatial composition amplifies its identity. The transition from the historic entrance of Pirie House to the contemporary rooftop setting enhances the visitor experience, creating a seamless narrative between past and present. This simultaneous architectural expression across multiple scales underscores the importance of design in brand reinforcement, making SORA not only a place to dine but a landmark within Adelaide’s skyline.


A Model for Future Rooftop Architecture
SORA Rooftop Bar & Restaurant exemplifies the potential of adaptive rooftop architecture in urban environments. Through its operable design, contextual sensitivity, and material innovation, it sets a new standard for integrating hospitality spaces into cityscapes. The ability to respond to climate, function, and cultural context makes this project a model for future rooftop developments worldwide.

As cities continue to explore creative ways to utilize rooftop spaces, SORA stands as a benchmark for how adaptive architecture can transform underutilized urban areas into dynamic, engaging, and sustainable destinations.
All Photographs are works of Sam Noonan
Popular Articles
Popular articles from the community
Split House: A Compact Urban Home Blending Privacy, Light, and Flexible Living in Japan
Compact Japanese home featuring DOMA space, flexible café potential, passive lighting, privacy zoning, and sustainable urban living design.
Atelier Macri Concept Store Interior Design by CASE-REAL
Atelier Macri store features a "ko" counter, walnut wood details, cork displays, blending retail, gallery, and seamless customer experiences.
Alton Cliff House: A Harmonious Retreat by f2a Architecture in Lake Country, Canada
Alton Cliff House blends corten steel, prefabrication, and sustainable design, creating a luxurious, energy-efficient retreat perched on Canadian cliffs.
Fifth NRE Jazz Club – De Bever Architecten: Eindhoven’s Revitalized Cultural Hub
Historic gas factory transformed into Fifth NRE Jazz Club blending modern sustainability, jazz culture, dining, and heritage architecture seamlessly.
Similar Reads
You might also enjoy these articles
The Ken Roberts Memorial Delineation Competition (Krob)
As the most senior architectural drawing competition currently in operation anywhere in the world, it draws hundreds of entries each year, awarding the very best submissions in a series of medium-based categories.
Waterfront Redevelopment and Urban Revitalization in Mumbai: Forging a New Dawn for Darukhana
A transformative waterfront redevelopment project reimagining Darukhana’s shipbreaking heritage into an inclusive urban future.
OUT-OF-MAP: A Call for Postcards on Feminist Narratives of Public Space
Rhizoma Design and Research Lab invites artists, designers, architects, researchers, and students to reflect on how feminist perspectives can reshape public space. Selected works will be exhibited in Barcelona, October 2026. Submissions open until 15 April 2026.
Documentation Work on Buddhist Wooden Temple
Architectural syncretism and cultural hybridity: A comparative study of the Buddhist temples in Chattogram Hill tracks
Explore Architecture Competitions
Discover active competitions in this discipline
The International Standard for Design Portfolios
The Global Benchmark for Architecture Dissertation Awards
The Global Benchmark for Graduation Excellence
Challenge to reimagine the Iron Throne
Comments (0)
Please login or sign up to add comments
No comments yet. Be the first to comment!