Agora Arquitectura Crafts a Striking House on a Brick Base, Blending Tradition and Modernity
Is Agora Arquitectura's House on a Brick Base the Perfect Balance Between Tradition and Innovation?

Nestled in the tranquil residential neighbourhood of St. Vicenç dels Horts, just a short distance from Barcelona, a remarkable architectural gem stands proudly. The House on a Brick Base, designed by Agora Arquitectura, seamlessly integrates traditional building techniques with contemporary elements, creating a captivating and harmonious living space.
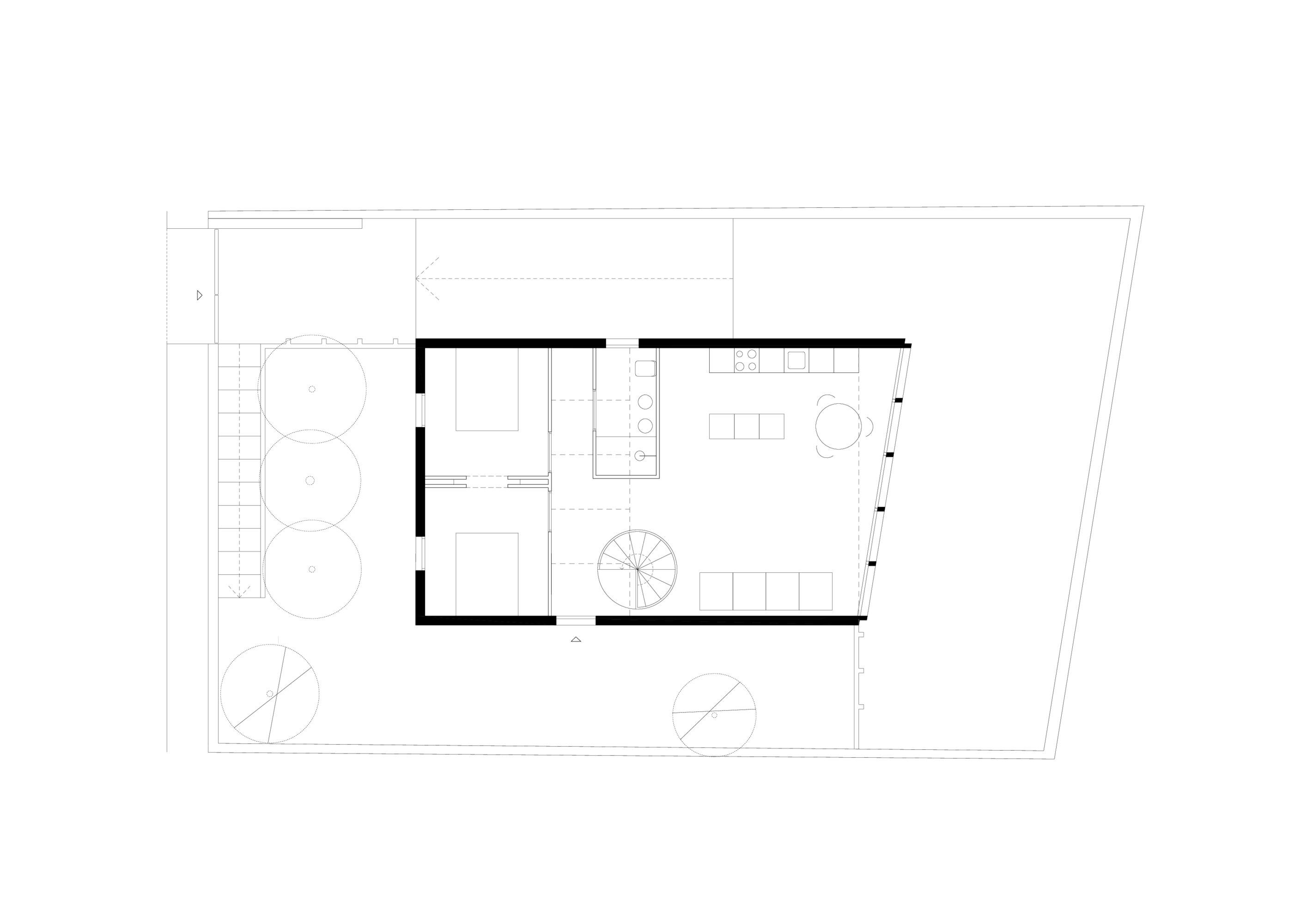
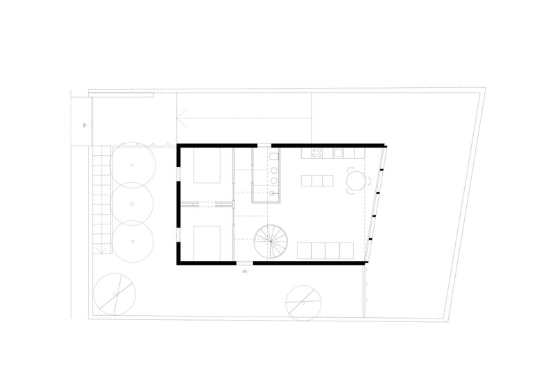
Situated on a plot characterized by its distinct levels and surrounded by neighbouring parcels, this innovative residence pays homage to the area's agricultural heritage while embracing modern design principles. The architects have skillfully employed a stacked brick base to preserve the site's clay soil and establish a strong foundation for the structure. A continuous band expands the architecture to the plot's boundaries, cleverly utilizing a lower floor void to maximize the available space. This band supports the upper floor through the ingenious use of a T-shaped brick wall, acting as both a structural element and a striking design feature.
Atop the brick base, a prefabricated CLT (cross-laminated timber) box takes its place. Its exterior is adorned with elegant white-washed cork panels, lending a touch of warmth and organic texture to the façade. Inside, the interior is left exposed, showcasing the natural beauty of the materials. Two key elements, a tongue-and-groove technical floor and whitewashed plywood volumes, seamlessly integrate functionality and aesthetics, enhancing the overall design.
The House on a Brick Base is thoughtfully divided into two distinct floors, each offering a unique connection to the surrounding environment. The upper floor, designed to embrace the sky and winter season, features two interconnected bedrooms separated by a shelf-wall, an open bathroom flooded with serene blue-coloured zenithal light, and a versatile living room-kitchen area that seamlessly transitions into the dining space. In contrast, the lower floor, intimately connected with the earth and the warmth of summer, envelops the T-shaped brick wall, accommodating a third bedroom, a second living room, a small bathroom, and a spacious service and installation room.
Externally, the house retains a sense of privacy and intrigue. Only a perforated brick wall and a double-opening door provide glimpses of the vibrant interior. A horizontal plane beckons visitors to explore further, offering the choice of ascending via a hidden staircase or a ramp leading to the lower level of the terrain. Upon reaching the main entrance, a large skylight captures the attention, signalling the abundance of natural light that permeates the entire project, even in its most secluded corners.
As one venture inside, the house effortlessly merges with its surroundings. French balconies transform the living spaces into welcoming porches, inviting residents to bask in the panoramic views of the surrounding landscape. Roll-up shutters act as a passive climatic protection system, ensuring comfort and privacy while maintaining a strong connection to the outdoors. The play of light extends to the spiral staircase, which serves as an architectural centrepiece, connecting the various levels of the house. From different rooms, the brick wall of the plinth reveals itself, offering glimpses of neighbouring houses and creating a sense of unity with the local community.
A testament to architectural brilliance, the House on a Brick Base showcases the perfect blend of tradition and innovation. Agora Arquitectura's remarkable design not only revitalizes a neglected site but also embraces the history and essence of the region. This captivating residence stands as a testament to the potential of architectural creativity and serves as an inspiring example of how old traditions can seamlessly merge with contemporary living.


































Popular Articles
Popular articles from the community
Solar Steam: A Climate-Responsive Architecture That Redefines the Monument
A climate-responsive memorial architecture that transforms heat, decay, and time into a living system reflecting humanity’s ecological impact.
A Contemporary Take on Iranian Residential Architecture
A modern interior design in Mashhad that reinterprets brick, light, and spatial flow to create a warm, contemporary residential architecture.
Inverted Architecture Installation by Studio Link-Arc: Exploring the Intersection of Architecture and Living Organisms
Inverted Architecture Installation by Studio Link-Arc blends mycelium, sustainability, inverted design, ecological cycles, and urban adaptive architecture in Shenzhen.
The Ken Roberts Memorial Delineation Competition (Krob)
As the most senior architectural drawing competition currently in operation anywhere in the world, it draws hundreds of entries each year, awarding the very best submissions in a series of medium-based categories.
Similar Reads
You might also enjoy these articles
Zhuxi Wonderland: Reimagining Traditional Chinese Gardens by Doarchi Architects
Zhuxi Wonderland by Doarchi Architects reinterprets traditional Yangzhou gardens, integrating courtyards, pavilions, and tea houses in modern cultural design.
Doble Soga House: A Contemporary Brick Residence Rooted in Landscape in Quito, Ecuador
Brick house in Quito integrating nature, flexible living spaces, exposed materials, and rooftop terrace, creating warm contemporary architecture for modern family life.
Al Gharra Mosque in Medina Redefining Contemporary Islamic Architecture
Minimalist Medina mosque using concrete, light, and landscape to reinterpret Islamic worship spaces through symbolic spiritual transitions and contemporary architecture.
Viczonecode Villa by DDconcept – Tropical Family Living in Ho Chi Minh City
Tropical family villa in Ho Chi Minh City featuring courtyards, skylights, natural ventilation, elevated flooring, and seamless indoor–outdoor living surrounded by greenery.
Explore Architecture Competitions
Discover active competitions in this discipline
The International Standard for Design Portfolios
The Global Benchmark for Architecture Dissertation Awards
The Global Benchmark for Graduation Excellence
Challenge to reimagine the Iron Throne
Comments (0)
Please login or sign up to add comments
No comments yet. Be the first to comment!