Aichermagazin Pavilion: A Dynamic Wooden Exhibition Space in Wangen im Allgäu
Aichermagazin Pavilion in Wangen seamlessly combines architecture, history, and ecology, offering a timeless tribute to Otl Aicher’s design legacy.
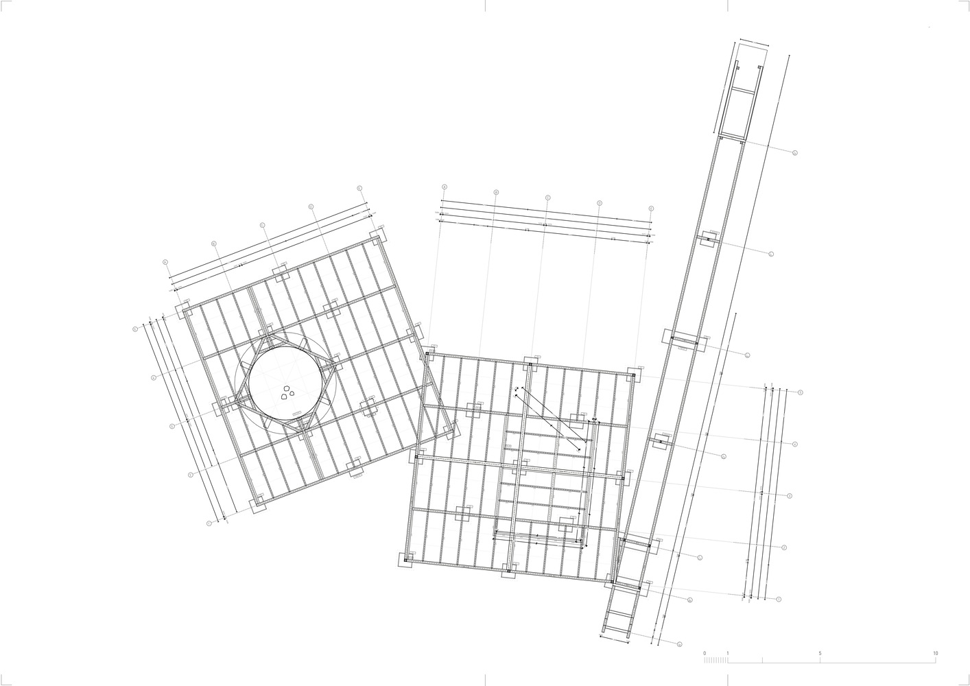
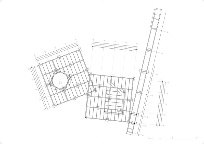
The Aichermagazin Pavilion, designed by Schnell&co architektur and Atelier Sunder-Plassmann, stands as a striking, minimalist structure in Wangen im Allgäu, Germany. Originally constructed in 2022 in Isny im Allgäu, this wooden pavilion celebrates the work of iconic designer Otl Aicher through a temporary exhibition set within a unique, open-air architectural design. Relocated to Wangen in 2024 for the Landesgartenschau Baden-Württemberg, the pavilion offers visitors a continuous, immersive experience, showcasing the beauty of design, nature, and culture.


Nestled alongside the renaturalized river Argen, the Aichermagazin Pavilion is a testament to adaptive reuse in architecture. With its open design and historical significance, it provides visitors an accessible and enlightening way to connect with the art and environmental insights of the Allgäu region.

Architectural Vision and Design Concept
The pavilion is a minimalist, cubic structure, raised on pillars and enveloped by a continuous pergola. The use of black-painted wood enhances its clean lines, while an open grid design on the floor and ceiling invites natural light and weather to permeate the space. This feature enables the pavilion to integrate seamlessly with its surroundings, offering an outdoor experience that reflects the organic beauty of the region.


Historical Background: A Tribute to Otl Aicher
The pavilion was first installed in Isny im Allgäu, showcasing an exhibition on Otl Aicher's work, particularly the corporate identity he created for the town in the 1970s. His series of 136 icons, representing aspects of local culture, landscape, and everyday life, embodied a unique black-and-white aesthetic that has since become iconic. Presented outdoors in an open-air venue, this exhibition quickly drew a large audience, celebrating Aicher’s design legacy.


Reimagining the Pavilion in Wangen for the Landesgartenschau Baden-Württemberg
In 2024, the Aichermagazin Pavilion found a new home in Wangen, set within the Landesgartenschau Baden-Württemberg event. Situated in the lush meadows along the river, adjustments were made to the pavilion's design to harmonize with the location’s natural landscape. A footbridge and garden elements now complement the structure, adding layers of interaction and exploration for visitors.


Enhanced Experience with Contemporary Insights
The exhibition's content was reimagined to resonate with present-day narratives. Contemporary themes, including ecological awareness, local history, and innovative projects in the Allgäu region, are interwoven with Aicher’s original icons. Through audio contributions, statements, and texts from local experts—including historians, biologists, and climate researchers—visitors engage in a multi-sensory exploration, encouraging reflection on the region's rich cultural and environmental legacy.


An Open and Inclusive Space
One of the pavilion’s defining features is its accessibility. With no traditional entrance, doors, or set opening hours, the structure invites everyone to enter and engage freely, making the pavilion an inclusive space where the arts, nature, and public interact harmoniously.


The Aichermagazin Pavilion in Wangen im Allgäu exemplifies adaptive architectural design. By repurposing this structure, the architects have created a dynamic and evolving exhibition space, enhancing visitors' awareness of both historical and contemporary cultural narratives. This pavilion not only honors Otl Aicher’s design principles but also invites dialogue on regional ecological and social issues, inspiring a deeper connection with the environment and local heritage.


All Photographs are work of Mikael Blomfelt
Popular Articles
Popular articles from the community
Biophilic Architecture and Regenerative Stadium Design: Biophilia Lagos by Rachel George
A regenerative stadium in Lagos transforms landfill into a living ecosystem through biophilic architecture, waste reuse, and environmental healing.
Architects Group RAUM Stacks Offset White Volumes into a Compact Office Tower in Busan
A 524-square-meter building on a tight corner lot in Haeundae plays with sunlight rights and shifting floor plates to create generous terraces.
Paco Oria Estudio Rebuilds a 1949 Valencian Town House Around Timber, Terracotta, and a New Interior Patio
In Godella, Spain, a semi-detached house from the postwar era is stripped to its party walls and rebuilt with wood and ceramics.
BICA Arquitectos Buries a Coastal Home in a Man-Made Dune on Portugal's Tróia Peninsula
A 300-square-meter house of timber, sand mortar, and travertine dissolves into the dune landscape it helped regenerate on the Alentejo coast.
Similar Reads
You might also enjoy these articles
Olio Towers: A Mid-Rise for Performers That Fuses Housing, Rehearsal, and Stage
Located blocks from Houston's Theater District, this modular tower stacks living units around a central performance atrium.
Oasis: Modular Green Housing Carved into Dhaka's Urban Fabric
A shortlisted Plugin Housing entry reclaims unauthorized settlements in Dhaka with stepped concrete volumes, green roofs, and ventilation-driven design.
Black Hole: A Floating Megastructure for the Post-Physical Era
Emiliano Mazzarotto envisions a spherical, self-scaling arena where e-sports, digital hotels, and holographic stadiums replace traditional public space.
Compact & Sustainable Living in Piraeus: A Four-Level Family Home Built Around Light and Air
A narrow townhouse in one of Greece's densest port cities uses a central atrium and passive strategies to house three generations under one roof.
Explore Architecture Competitions
Discover active competitions in this discipline
The International Standard for Design Portfolios
The Global Benchmark for Architecture Dissertation Awards
The Global Benchmark for Graduation Excellence
Challenge to reimagine the Iron Throne
Comments (0)
Please login or sign up to add comments
No comments yet. Be the first to comment!