Antelope House: A Masterpiece of Minimalist Architecture in Urban Indonesia
An urban oasis blending minimalist design and natural harmony, inspired by Antelope Canyon's grandeur, crafted by Studiokian architects.
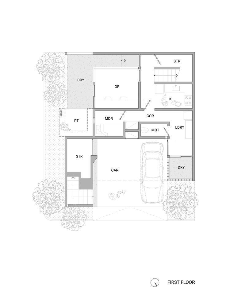
Nestled in the vibrant urban landscape of Jakarta, Antelope House by Studiokian redefines the essence of minimalist architecture. Designed by lead architects Kalvin Widjaja and Dian Indah, this 200-square-meter house maximizes its 99-square-meter lot, seamlessly blending functionality with aesthetics. Located in the greenery-laden yet bustling area of Tangerang, this residence offers an oasis of tranquility while embracing its natural surroundings.



Inspiration from Nature's Grandeur
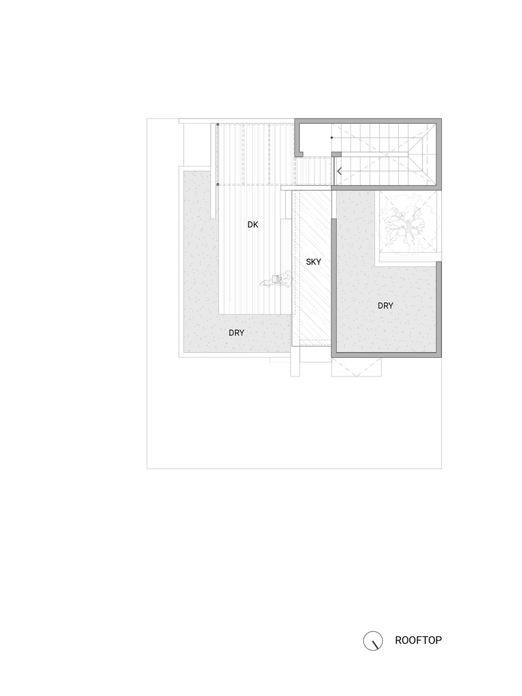
Antelope House draws its inspiration from Antelope Canyon in the United States, a geological marvel formed by erosion and natural forces. The architectural design mirrors the canyon's dramatic interplay of light and shadow, creating spaces that are both inviting and awe-inspiring. The skylight and glass floors embody the canyon’s pathways, allowing sunlight to filter through and infuse the interiors with dynamic energy. The result is an evocative corridor connecting two masses of the house vertically and horizontally, uniting the home with the surrounding greenery and sky.




A Harmony of Space and Functionality
Despite the compact lot, Studiokian masterfully crafted a three-story structure that accommodates extensive client needs without compromising aesthetics. The design integrates an inner courtyard at its heart, bringing nature closer to the inhabitants. This strategic layout enhances air circulation, while a passive system channels hot air upward, ensuring a comfortable indoor climate. The house is a testament to the architects' ability to marry design ingenuity with practical living requirements.






Minimalism at Its Finest
The minimalist ethos permeates every detail of Antelope House. The architects prioritized clean lines, muted tones, and natural textures to create an inviting and serene atmosphere. Functional elements such as a concealed shoe rack and a low-profile TV cabinet exemplify how practicality and elegance can coexist. Materials like wood and rough stucco dominate the palette, exuding warmth and blending harmoniously with the surrounding greenery.





A Sanctuary Amid Urban Chaos
Antelope House is more than a residence; it is a retreat that fosters a connection with nature and offers respite from the bustling city. Its careful design ensures a seamless transition between indoor and outdoor spaces, inviting natural light and fresh air to flow freely. Every corner of the house embodies thoughtful craftsmanship, making it a true sanctuary for its residents.


Antelope House stands as a beacon of minimalist architecture in Indonesia, embodying a harmonious balance between urban living and natural serenity. Studiokian has skillfully turned a compact urban plot into a spacious, light-filled home that resonates with the spirit of its surroundings. By drawing inspiration from Antelope Canyon, the architects have created a space that is not only functional but also profoundly poetic, elevating modern residential design to new heights.





All Photographs are work of Kung Photograph
Popular Articles
Popular articles from the community
Free Architecture Competitions You Can Enter Right Now
No entry fees, real prizes. Here are the best free architecture competitions open for submissions in 2026.
Solar Steam: A Climate-Responsive Architecture That Redefines the Monument
A climate-responsive memorial architecture that transforms heat, decay, and time into a living system reflecting humanity’s ecological impact.
Atelier Macri Concept Store Interior Design by CASE-REAL
Atelier Macri store features a "ko" counter, walnut wood details, cork displays, blending retail, gallery, and seamless customer experiences.
Inverted Architecture Installation by Studio Link-Arc: Exploring the Intersection of Architecture and Living Organisms
Inverted Architecture Installation by Studio Link-Arc blends mycelium, sustainability, inverted design, ecological cycles, and urban adaptive architecture in Shenzhen.
Similar Reads
You might also enjoy these articles
Bamboo Housing Challenge 2026: Design Affordable, Sustainable Homes Using Bamboo
An international design competition by Bamboo U and IBUKU inviting architects and designers to reimagine affordable housing using bamboo — with the winning design built full-scale in Bali.
Computational Design & Education: Beegraphy Design Awards Introduces 7th Category (Featuring Jiyun's Innovative Approach)
Dive into Beegraphy’s 7th Design Awards category, where computational design meets education to create immersive, interactive learning tools, inspired by Jiyun’s work.
From Parametric Lighting to Urban Furniture: Join the 2nd Workshop in Beegraphy’s Computational Design Series
Dive into Cutting-Edge Design Techniques and Practical Applications with Industry Experts
Explore Architecture Competitions
Discover active competitions in this discipline
The International Standard for Design Portfolios
The Global Benchmark for Architecture Dissertation Awards
The Global Benchmark for Graduation Excellence
Challenge to reimagine the Iron Throne
Comments (0)
Please login or sign up to add comments
No comments yet. Be the first to comment!