Apartment Barjanska by Arhitekti Počivašek Petranovič: A Modern Apartment Renovation Rooted in Material Simplicity
A compact Ljubljana apartment is reimagined through modern renovation, centering around a Carrara marble core and unified interiors.
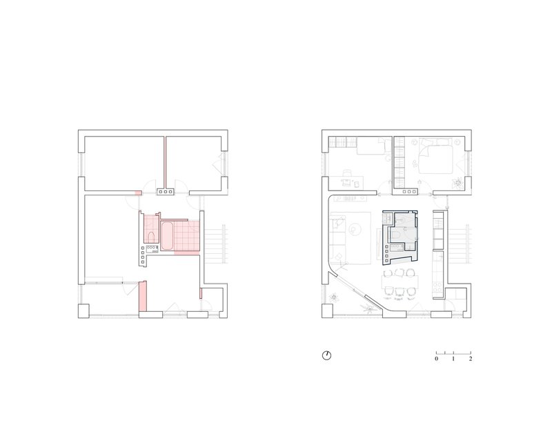
In the heart of Ljubljana, Slovenia, Arhitekti Počivašek Petranovič has reimagined a 68 m² flat within a typical 1960s residential block. The modern apartment renovation embraces openness, material honesty, and spatial cohesion, transforming a once-fragmented layout into a contemporary home that speaks the language of clarity and quiet sophistication.


Reinventing a Mid-Century Layout
The original apartment was characterized by compartmentalized rooms, with the kitchen accessible only through the living room. This inefficient circulation and spatial fragmentation prompted the architects to radically reconfigure the plan. By removing internal partitions and opening up the layout, they have created a continuous flow of space where kitchen, dining, and living areas now merge into one unified environment.


At the heart of this transformation stands a freestanding Carrara marble monolith, which functions both as a fireplace and the core housing a compact marble-lined bathroom. This sculptural centerpiece not only anchors the apartment but also brings a tactile monumentality to the otherwise fluid interior.


A Neutral Palette and Material Coherence
The material and color palette is minimal yet meticulously curated. A light grey polyurethane floor seamlessly meets pale grey plaster walls and built-in elements, wrapping the apartment in a calm, continuous envelope. The use of neutral tones accentuates the warmth of the wooden furniture while allowing the marble core to take center stage.

The design choices aim to visually expand the space. Light bounces gently off the grey surfaces, and the openness between zones allows natural light to flow unimpeded through the angularly repositioned window. This adjustment reduces the depth of the loggia but significantly extends the livable interior space, creating a more generous and integrated home environment.

Custom Furniture and Craftsmanship
Every detail in this renovation is considered, including the custom-designed furniture. A dining table and low storage units crafted from birch plywood and stainless steel legs maintain the same language of simplicity and continuity found throughout the apartment. Even the leftover Carrara marble was repurposed to create a small club table, a sustainable gesture that reflects the careful resourcefulness of the design process.

This restrained approach to materiality and form ensures that the apartment’s aesthetic is not overpowered by decor but elevated through consistency and craftsmanship.

Monumental Intimacy in a Compact Space
The Carrara monolith becomes more than a design feature—it’s a spatial strategy. By consolidating multiple functions into one compact volume, it frees up the surrounding floor plan and creates a dynamic experience of movement around it. The architecture encourages users to navigate around the core, offering shifting perspectives and an active relationship with the space.


Despite the modest size of the apartment, the intervention achieves a sense of monumental intimacy—a balance between scale, material depth, and programmatic efficiency that is often elusive in small-scale renovations.


A Model for Modern Apartment Renovation
Apartment Barjanska demonstrates how modern apartment renovation can honor an existing building’s history while introducing new life through clarity, openness, and tactile refinement. Arhitekti Počivašek Petranovič has crafted a dwelling that is both sculptural and livable, formal and intimate. It reflects a belief that small spaces deserve big ideas and that material restraint can amplify spatial quality rather than diminish it.

This project is a testament to how thoughtful design can elevate the everyday and reshape the way we experience domestic interiors.

All Photographs are works of Urban Petranovič
Popular Articles
Popular articles from the community
Paco Oria Estudio Rebuilds a 1949 Valencian Town House Around Timber, Terracotta, and a New Interior Patio
In Godella, Spain, a semi-detached house from the postwar era is stripped to its party walls and rebuilt with wood and ceramics.
20 Most Popular Office Building Projects of 2025
From biophilic workspaces in India to net-positive energy offices in New Delhi, 20 office building projects that defined architecture in 2025.
BICA Arquitectos Buries a Coastal Home in a Man-Made Dune on Portugal's Tróia Peninsula
A 300-square-meter house of timber, sand mortar, and travertine dissolves into the dune landscape it helped regenerate on the Alentejo coast.
1-1 Architects Builds a Nagoya House and Office from Decades of Stockpiled Timber
A 69-square-meter tower in dense residential Nagoya transforms surplus lumber into a home and workplace for a construction company.
Similar Reads
You might also enjoy these articles
Bamboo Housing Challenge 2026: Design Affordable, Sustainable Homes Using Bamboo
An international design competition by Bamboo U and IBUKU inviting architects and designers to reimagine affordable housing using bamboo — with the winning design built full-scale in Bali.
Computational Design & Education: Beegraphy Design Awards Introduces 7th Category (Featuring Jiyun's Innovative Approach)
Dive into Beegraphy’s 7th Design Awards category, where computational design meets education to create immersive, interactive learning tools, inspired by Jiyun’s work.
From Parametric Lighting to Urban Furniture: Join the 2nd Workshop in Beegraphy’s Computational Design Series
Dive into Cutting-Edge Design Techniques and Practical Applications with Industry Experts
Introducing Sphere by UNI: Pioneering a New Era in AEC Industry
Unlocking Global Potential with BIM and Agile Management
Explore Architecture Competitions
Discover active competitions in this discipline
The International Standard for Design Portfolios
The Global Benchmark for Architecture Dissertation Awards
The Global Benchmark for Graduation Excellence
Challenge to reimagine the Iron Throne
Comments (0)
Please login or sign up to add comments
No comments yet. Be the first to comment!