Architecture Office Renovation in Japan: GRAY-ZONE Design Office’s Distance and Dimensions
This article explores a small-scale architecture office renovation that redefines community interaction and spatial boundaries through thoughtful design.
Reimagining Community Engagement Through Spatial Transformation
“Would people be happy if a design office opened nearby?” This question guided the GRAY-ZONE Design Office in its recent architecture office renovation project located in Hadano City, Kanagawa Prefecture. Blending spatial rationality with social sensitivity, this 37-square-meter project isn’t merely about workspace optimization. Instead, it redefines how a small architectural practice can engage with its surrounding community by reassessing the “sense of distance” between the office, its visitors, and society.




From Manufacturing Plant to Multi-Dimensional Dialogue
The site carries a layered history, having previously functioned as a wood processing plant. Over time, expansions added various architectural elements without cohesive design logic. GRAY-ZONE approached the renovation by refining these scattered architectural lines, preserving the memory of the site while turning it into a contemporary design space. The transformation doesn’t erase the past but rather interprets it through a new lens, creating a hybrid space that acts as both office and community connector.



The Concept of “Distance” in Design Practice
At the core of this architecture office renovation is the abstract yet deeply human idea of “distance.” Not just physical, but relational—between designers and clients, locals, acquaintances, and even those with no ties to architecture. By designing with empathy and openness, the office becomes a familiar presence within the urbanization control area. This small project attempts to dissolve traditional barriers between professional spaces and public life.



Agari-Doma: Spatial Dialogue with Tradition
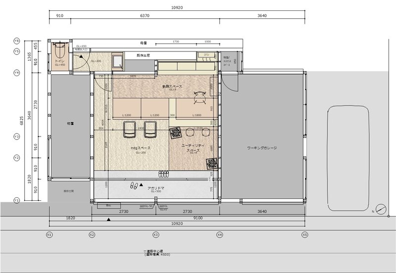
One of the project’s key spatial interventions is the introduction of a three-dimensional “agari-doma.” Elevated 500mm above ground level and positioned at the boundary facing the street, this design element references the traditional Japanese doma—a dirt-floor space used for work or leisure in older homes. Here, it becomes a multifunctional threshold, simultaneously acting as an approach path, veranda, and event platform. The agari-doma not only pays homage to cultural heritage but also allows passersby to engage with the building as a living, changing façade shaped by everyday activities.




Fluid Boundaries Between Work and Community
This architecture office renovation intentionally blurs the line between private professional space and the public domain. It opens like a store and invites like a home. Whether hosting seasonal events or spontaneous interactions with neighbors, the design ensures that the architecture office remains permeable to the rhythms of local life. The building’s identity constantly evolves based on how people use and perceive it, fostering a continuous feedback loop between design and society.




A New Role for Architecture Offices in Urban Areas
Although small in scale, the project challenges conventional notions of how architectural practices operate within their communities. It demonstrates that renovation is not just about spatial upgrade—it’s about rethinking purpose, proximity, and the everyday presence of architecture in society. GRAY-ZONE Design Office’s sensitive intervention offers a model for other architecture offices seeking to embed themselves more meaningfully in their urban contexts.





All Photographs are works of Nao Takahashi
Popular Articles
Popular articles from the community
HCCH Studio Wraps a Shanghai High-Rise Office in Curved Walls of Translucent Glass
A 1,000 square meter fit-out in Lujiazui replaces the typical tech-office palette with layered glass, micro-cement, and quiet rigor.
20 Most Popular Office Building Projects of 2025
From biophilic workspaces in India to net-positive energy offices in New Delhi, 20 office building projects that defined architecture in 2025.
Takeshi Hosaka Architects Suspends a Concrete Cross Above a Yokohama Cemetery
A 28-square-meter burial renovation in Yokohama lifts the symbol of resurrection into the sky so mourners see it against heaven.
BAST Slots a Four-Story Glass House into a Narrow Gap Between Toulouse Townhouses
In the dense Bonnefoy district, a stepped infill building merges home and office while preserving a majestic hackberry tree.
Similar Reads
You might also enjoy these articles
Olio Towers: A Mid-Rise for Performers That Fuses Housing, Rehearsal, and Stage
Located blocks from Houston's Theater District, this modular tower stacks living units around a central performance atrium.
Oasis: Modular Green Housing Carved into Dhaka's Urban Fabric
A shortlisted Plugin Housing entry reclaims unauthorized settlements in Dhaka with stepped concrete volumes, green roofs, and ventilation-driven design.
Black Hole: A Floating Megastructure for the Post-Physical Era
Emiliano Mazzarotto envisions a spherical, self-scaling arena where e-sports, digital hotels, and holographic stadiums replace traditional public space.
Compact & Sustainable Living in Piraeus: A Four-Level Family Home Built Around Light and Air
A narrow townhouse in one of Greece's densest port cities uses a central atrium and passive strategies to house three generations under one roof.
Explore Architecture Competitions
Discover active competitions in this discipline
The International Standard for Design Portfolios
The Global Benchmark for Architecture Dissertation Awards
The Global Benchmark for Graduation Excellence
Challenge to reimagine the Iron Throne
Comments (0)
Please login or sign up to add comments
No comments yet. Be the first to comment!