Barcelona Historic House Renovation: A Comprehensive Transformation by LAOS + Laura Bongiovanni
This article explores the comprehensive historic house renovation in Barcelona by LAOS and Laura Bongiovanni, blending heritage with modern design.
Introduction to the Barcelona Historic House Renovation
In the heart of Barcelona’s old Sarrià neighborhood, LAOS (Xavier Botet + Albert Saboya) and Laura Bongiovanni have undertaken a remarkable historic house renovation project that breathes new life into two late 19th-century homes. These once-altered interiors, now meticulously rehabilitated, showcase a sensitive architectural approach that preserves the cultural essence of Barcelona’s architectural heritage while upgrading the spaces for contemporary living.




Preserving Architectural Heritage in Sarrià
The project’s foundation lies in honoring the protected façade while addressing the heavily modified interiors. Over time, the original finishes and coverings had been stripped away, leaving little trace of the past. The architects approached this historic house renovation by first removing non-original elements, stripping back layers to reveal the authentic fabric: brick vaults, steel supports from later interventions, varied brickwork, and the delicate cast iron pillar galleries. This restoration strategy carefully avoids altering the load-bearing walls, preserving the structural integrity of the buildings.




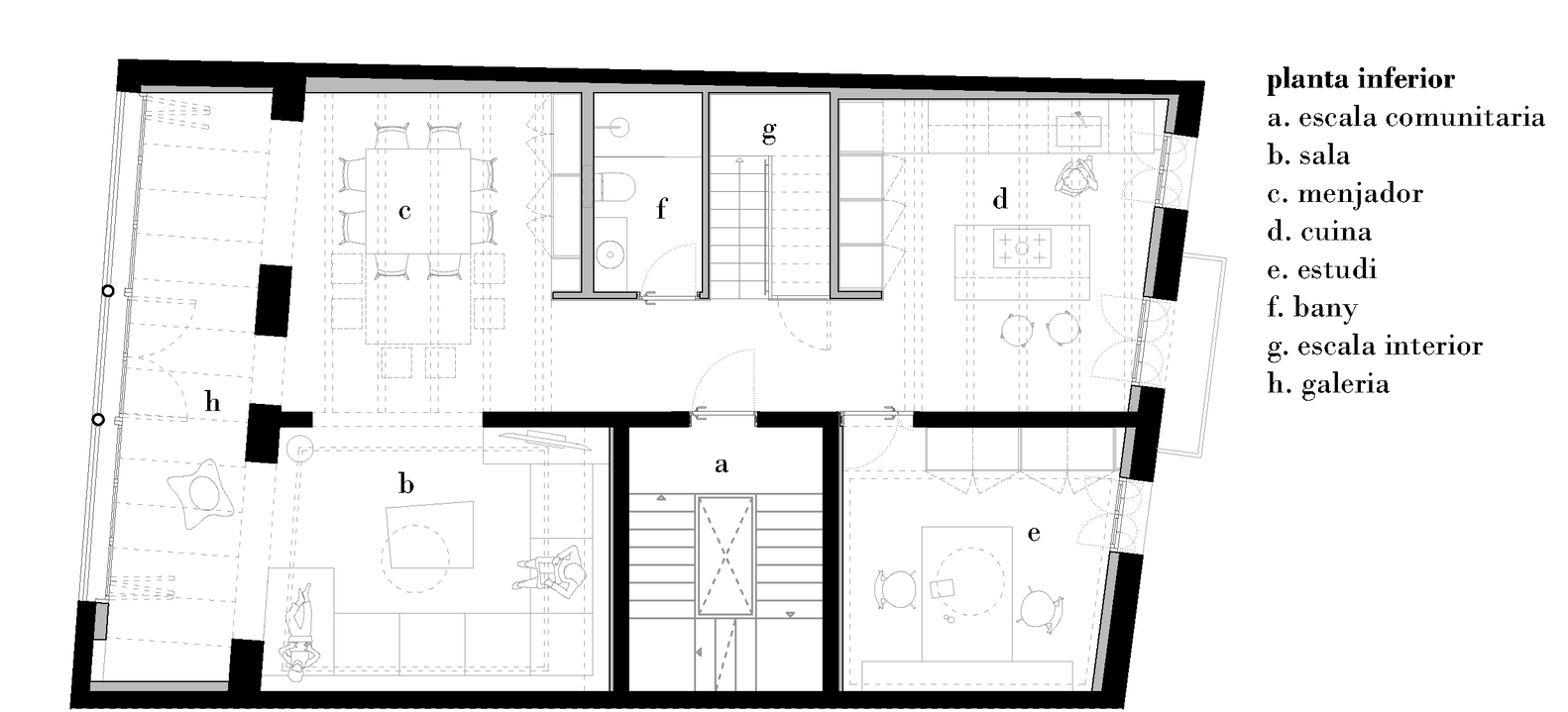
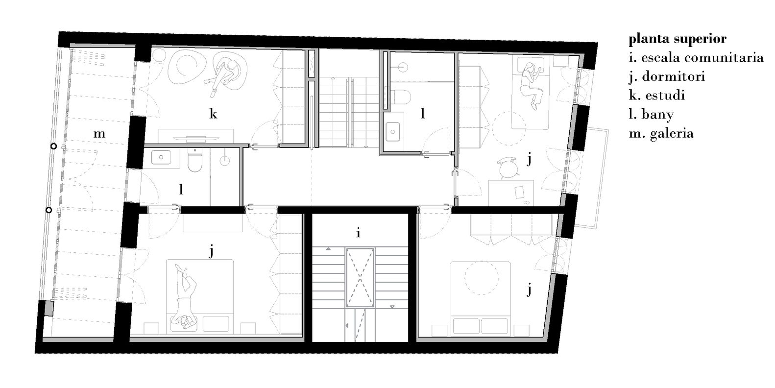
Duplex-Style Living in a Historic Setting
The spatial configuration results in two duplex homes connected by a shared staircase. The lower floors house the main living spaces, opening onto the south-facing façades, while the upper floors are designed for the private sleeping quarters. The design cleverly positions wet areas like bathrooms within the interior spaces, maintaining a functional and efficient layout. To ensure thermal performance, the renovation incorporates internal insulation using high-density gypsum and cement panels, preserving the thermal inertia of the original construction.




Materiality and Craftsmanship in the Renovation
A hallmark of this Barcelona historic house renovation is its restrained yet sophisticated material palette. The new central cores are clad in warm oak wood paneling, adding a tactile, contemporary contrast to the exposed historic surfaces. Continuous terrazzo flooring integrates an underfloor heating system, providing modern comfort within the historic shell. In the bedrooms, custom oak wood headboards and furniture elements echo the central paneling, unifying the interiors with cohesive detailing.



Uncovering Layers of Architectural History
One of the most striking aspects of this renovation is the respectful exposure of architectural layers. In the living and dining rooms, the walls are left bare, showcasing the textures of past interventions, while preserving historic false ceilings adorned with intricate plaster moldings. Rectangular beams in the upper floors speak to the history of attic spaces repurposed over generations. The result is a delicate balance between past and present, where old and new coexist seamlessly within the domestic space.



Redefining Heritage in Barcelona
This comprehensive historic house renovation in Barcelona by LAOS and Laura Bongiovanni exemplifies a thoughtful architectural response to cultural preservation and modern living. By embracing the history embedded in the walls while introducing contemporary comforts, the project redefines how heritage buildings can adapt to the needs of today’s families. It stands as an inspiring model for historic renovations in Barcelona and beyond, reflecting the enduring beauty of architectural continuity.



All Photographs are works of José Hevia
Popular Articles
Popular articles from the community
boq architekti Fits a Gabled Family House onto a Tiny Moravian Hillside Plot with No Room for a Garden
A 115 square meter home in South Moravia trades a garden for a rooftop terrace and a fully glazed facade facing the village below.
Studio Gram Unfurls a Concrete Curve Through an Adelaide Queen Anne Villa
In Rose Park, a billowing concrete threshold stitches a century-old house to a sun-chasing pavilion organized around an existing pool.
20 Most Popular Office Building Projects of 2025
From biophilic workspaces in India to net-positive energy offices in New Delhi, 20 office building projects that defined architecture in 2025.
Paco Oria Estudio Rebuilds a 1949 Valencian Town House Around Timber, Terracotta, and a New Interior Patio
In Godella, Spain, a semi-detached house from the postwar era is stripped to its party walls and rebuilt with wood and ceramics.
Similar Reads
You might also enjoy these articles
Olio Towers: A Mid-Rise for Performers That Fuses Housing, Rehearsal, and Stage
Located blocks from Houston's Theater District, this modular tower stacks living units around a central performance atrium.
Oasis: Modular Green Housing Carved into Dhaka's Urban Fabric
A shortlisted Plugin Housing entry reclaims unauthorized settlements in Dhaka with stepped concrete volumes, green roofs, and ventilation-driven design.
Black Hole: A Floating Megastructure for the Post-Physical Era
Emiliano Mazzarotto envisions a spherical, self-scaling arena where e-sports, digital hotels, and holographic stadiums replace traditional public space.
Compact & Sustainable Living in Piraeus: A Four-Level Family Home Built Around Light and Air
A narrow townhouse in one of Greece's densest port cities uses a central atrium and passive strategies to house three generations under one roof.
Explore Architecture Competitions
Discover active competitions in this discipline
The International Standard for Design Portfolios
The Global Benchmark for Architecture Dissertation Awards
The Global Benchmark for Graduation Excellence
Challenge to reimagine the Iron Throne
Comments (0)
Please login or sign up to add comments
No comments yet. Be the first to comment!