Blairgowrie House: Redefining Contemporary Living in Nature's Embrace
Blairgowrie House: How Does Nature Inspire the Architectural Design?

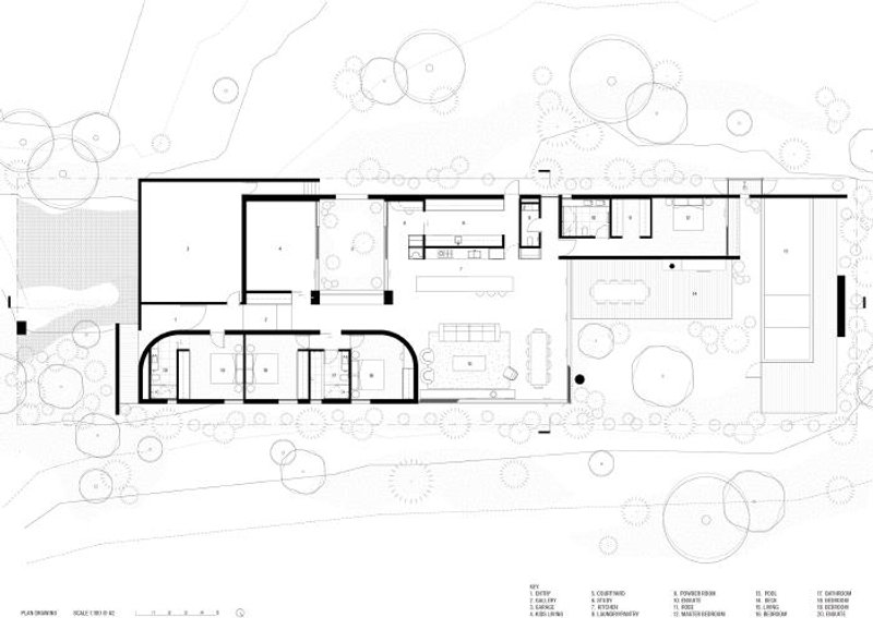
This home, set on the Mornington Peninsula, is a rugged coastal environment between Port Phillip Bay and the Bass Strait. Its architecture is characterized by long sightlines, borrowed views, and a sequence of spaces that vary in porosity. Recessed from the street, the project gives back to its landscape through re-vegetation. The building is stitched into its context, creating an architectural fabric that interchanges the interior, garden, and courtyard. Fixed and operable panels extend the home's visual and physical connections, inviting coastal flora to layer the material compositions of the interior, while providing seclusion and privacy.


































Popular Articles
Popular articles from the community
20 Most Popular Office Building Projects of 2025
From biophilic workspaces in India to net-positive energy offices in New Delhi, 20 office building projects that defined architecture in 2025.
OUJ Rewires a 72-Square-Meter Taipei Apartment for Multigenerational Living After the Pandemic
Inside a 40-year-old public housing block, plywood volumes and translucent screens turn three cramped bedrooms into a flexible family home.
MIDW Casts a Pavilion Roof from the Earth Itself at the 2025 Osaka Expo
On a fragile reclaimed island, excavated soil becomes formwork for a concrete canopy that will eventually disappear into wisteria.
20 Most Popular Furniture Design Projects of 2025
Modular street systems, parametric benches, and insect hotels: the furniture design projects that captivated architects on uni.xyz in 2025.
Similar Reads
You might also enjoy these articles
Rede Arquitetos Builds an Open-Air School in Fortaleza That Doubles as a Neighborhood Living Room
Educar II SESC-CE folds sports, dance, and community gathering into a courtyard campus wrapped in mesh and tropical color.
NZ10 Apartment by auba studio: Adaptive Reuse in Palma de Mallorca
Adaptive reuse apartment transforms bakery into light-filled home with patios, privacy layers, and wood interiors enhancing urban living experience.
TGK Nirasaki Plant: A Smart Factory Blending Technology, Landscape, and Wellness
Smart factory in Japan blending IoT manufacturing, scenic trail design, natural ventilation, and landscape integration to enhance user experience and sustainability.
House in Macieira by Nelson Resende Arquitecto: A Sensitive Transformation Rooted in Context and Materiality
Adaptive reuse house blending wood, glass, and landscape, transforming traditional Portuguese architecture into a warm, open, contemporary living environment.
Explore Architecture Competitions
Discover active competitions in this discipline
The International Standard for Design Portfolios
The Global Benchmark for Architecture Dissertation Awards
The Global Benchmark for Graduation Excellence
Challenge to reimagine the Iron Throne
Comments (0)
Please login or sign up to add comments
No comments yet. Be the first to comment!