BLOCO Arquitetos Designs the Giraffas Brasília Office: A Harmonious Blend of Functionality and Creativity
How does BLOCO Arquitetos create a dynamic and functional workspace for Giraffas Brasília Office?

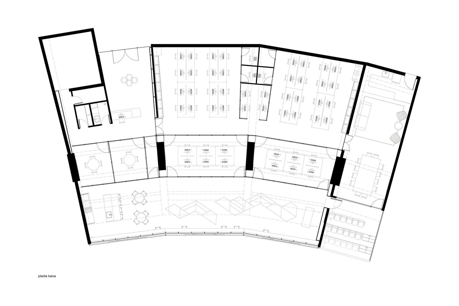
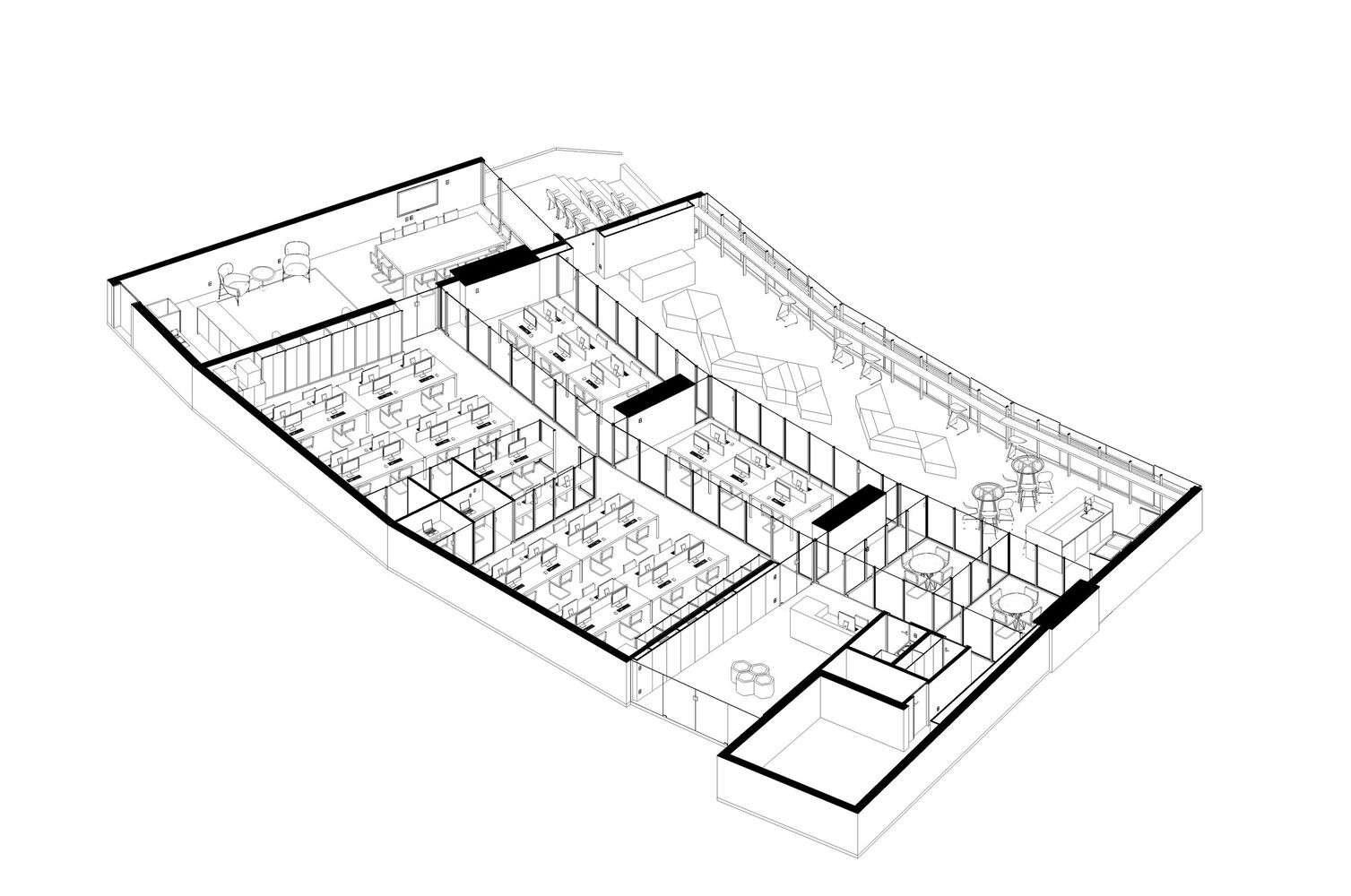
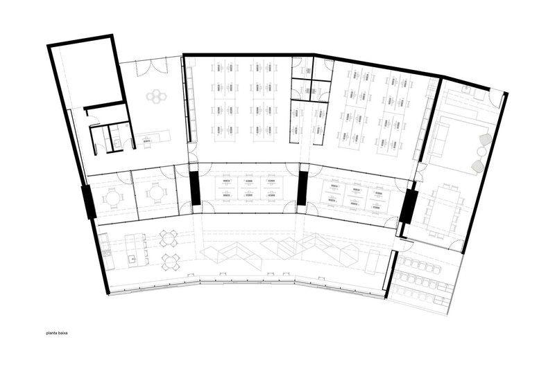
In a remarkable architectural endeavour, BLOCO Arquitetos has successfully converted an office building, previously used as a stadium, into a dynamic and inviting workspace. With careful consideration of the existing structure and space, the design seamlessly integrates the original curves and irregular walls, resulting in a unique and adaptable environment.

The focal point of the design was to provide a panoramic view of the stadium's football field, ensuring that it could be enjoyed from various areas within the office. This concept influenced the layout of the space, which includes an event area, meeting rooms, workstations, and a welcoming reception area.

One of the standout features of the design is the use of a specially designed divider. This divider not only complements the aesthetic of the office but also serves a functional purpose. The metal parts of the divider were meticulously painted with the brand's vibrant orange colour, while the glasses were left either transparent or translucent, offering the desired level of privacy.

To optimize space utilization, tall cabinets were created using a modular approach that combines metalwork and carpentry. This design element adds both functionality and aesthetic appeal to the workspace.

A notable aspect of the project is the decision to leave the original stadium structure exposed, showcasing its unique architectural elements. Additionally, the electrical and air conditioning installations were purposefully left visible, further enhancing the industrial character of the space.

The transformation of the office building by BLOCO Arquitetos exemplifies their commitment to creating innovative and adaptable work environments. By maximizing the connection with the football field and embracing the existing structure, they have achieved a harmonious blend of functionality and aesthetics.

Overall, the office building's successful conversion showcases BLOCO Arquitetos' expertise in repurposing existing structures and their ability to create a welcoming and open workspace that aligns with modern office design trends.














Credits
Architects: BLOCO Arquitetos
Area: 500 m²
Year: 2022
Photographs:Júlia Tótoli
Lead Architects: Daniel Mangabeira, Henrique Coutinho, Matheus Seco
Construction: Cimos Engenharia
Lighting: Light Design Brasília
Furniture: Marelli, Flexform, NeoOffice
Marcenaria: Sebba Móveis
City: Brasília
Country: Brazil
Popular Articles
Popular articles from the community
Louis Malle Cinema: A Limestone Cultural Landmark Revitalizing Community Life in Prayssac
Limestone cinema extension with public forecourt, blending heritage and modern design to create flexible cultural spaces and strengthen community interaction.
Solar Steam: A Climate-Responsive Architecture That Redefines the Monument
A climate-responsive memorial architecture that transforms heat, decay, and time into a living system reflecting humanity’s ecological impact.
Atelier Macri Concept Store Interior Design by CASE-REAL
Atelier Macri store features a "ko" counter, walnut wood details, cork displays, blending retail, gallery, and seamless customer experiences.
Inverted Architecture Installation by Studio Link-Arc: Exploring the Intersection of Architecture and Living Organisms
Inverted Architecture Installation by Studio Link-Arc blends mycelium, sustainability, inverted design, ecological cycles, and urban adaptive architecture in Shenzhen.
Similar Reads
You might also enjoy these articles
SOM LAND Hotel by RooMoo: A Sustainable Retreat Rooted in Nature and Local Craft
Sustainable boutique hotel in Shanghai blending adaptive reuse, natural materials, vernacular craftsmanship, and slow living within a serene countryside landscape.
Zhuxi Wonderland: Reimagining Traditional Chinese Gardens by Doarchi Architects
Zhuxi Wonderland by Doarchi Architects reinterprets traditional Yangzhou gardens, integrating courtyards, pavilions, and tea houses in modern cultural design.
Doble Soga House: A Contemporary Brick Residence Rooted in Landscape in Quito, Ecuador
Brick house in Quito integrating nature, flexible living spaces, exposed materials, and rooftop terrace, creating warm contemporary architecture for modern family life.
Al Gharra Mosque in Medina Redefining Contemporary Islamic Architecture
Minimalist Medina mosque using concrete, light, and landscape to reinterpret Islamic worship spaces through symbolic spiritual transitions and contemporary architecture.
Explore Office Building Competitions
Discover active competitions in this discipline
The International Standard for Design Portfolios
The Global Benchmark for Architecture Dissertation Awards
The Global Benchmark for Graduation Excellence
Challenge to reimagine the Iron Throne
Comments (0)
Please login or sign up to add comments
No comments yet. Be the first to comment!