Cathedral School for Boys: Redefining Educational Architecture in San Francisco
The Cathedral School for Boys redesign blends modern architecture with historic charm, creating dynamic spaces for contemporary education in San Francisco.
The Cathedral School for Boys in San Francisco, redesigned by The Office of Charles F. Bloszies, exemplifies modern educational architecture. This 18,000-square-foot expansion and renovation project harmonizes contemporary learning spaces with historic surroundings, offering innovative solutions to spatial and logistical challenges.


The Vision Behind the Design
Strategic Planning for Modern Education
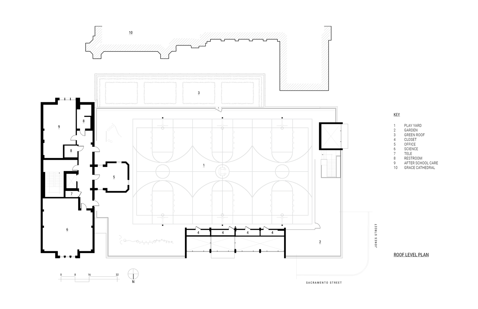
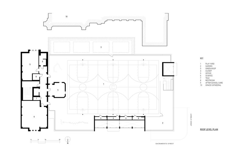
Over its 50-year history, the Cathedral School for Boys has expanded multiple times, utilizing adjacent buildings and even parts of the Grace Cathedral crypt. This latest addition aims to meet the needs of contemporary learning and provide communal spaces for large gatherings while preserving the architectural integrity of the site.


A Landmark Location
Situated at the landmark Grace Cathedral Close block, the two-story addition occupies a narrow terrace between the school and the Cathedral. This strategic placement makes optimal use of limited space, connecting the historic and the modern in a seamless design.


Key Architectural Features
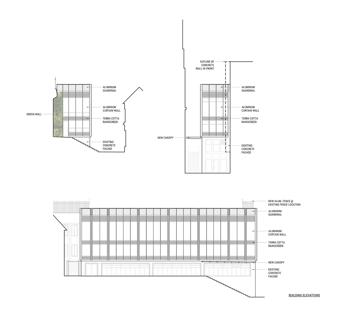
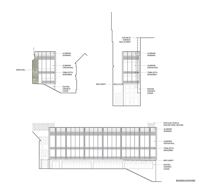
Lightweight Steel and Glass Structure
- Efficient Design: The steel structure with glass and aluminum curtain walls minimizes the load, avoiding the need for foundation upgrades.
- Aesthetic Appeal: The floor-to-ceiling windows provide breathtaking views of the Cathedral’s transept and the San Francisco skyline.


Integrated Renovations
- Central Axis: The new entry axis leads from the front entrance on Sacramento Street to the heart of the school—a dynamic Learning Commons.
- Enhanced Connectivity: Rearranged classrooms and an open layout integrate the new and existing spaces seamlessly.


Modern Spaces for Learning and Community
The Learning Commons
Designed as a multi-functional hub, the Learning Commons fosters collaborative learning and community engagement. It includes:
- Open areas for large gatherings.
- Quiet zones for study and reflection.
- Small meeting rooms for group discussions.

Historic Harmony
The addition respects the surrounding architecture, blending modern design with the historic Grace Cathedral. This harmony enhances the school's identity while embracing its rich heritage.


Innovative Construction Techniques
Prefabrication and Efficient Scheduling
- Off-Site Fabrication: Curtain wall panels were prefabricated off-site, ensuring precision and reducing on-site disruptions.
- Timely Execution: Structural renovations were completed over the summer break, with the addition finalized during the fall term. Students returned to a fully functional space in the spring semester.


Minimizing Disruption
Temporary barriers separated construction from active classrooms, maintaining a conducive learning environment throughout the process.

A Sustainable and Functional Future
The project reflects the evolving demands of modern education:
- Adaptive Spaces: Flexible layouts accommodate diverse teaching methods and activities.
- Sustainable Design: Lightweight materials and efficient planning reduce the environmental impact while optimizing functionality.

The Cathedral School for Boys redesign is a testament to the potential of modern educational architecture to harmonize tradition with innovation. By addressing spatial, functional, and aesthetic challenges, The Office of Charles F. Bloszies has created a space that inspires learning while preserving the site's historic significance.

All photographs are work of Matthew Millman