Chiara Matteazzi Unveils the Splendors of Il Museo Nazionale Collezione Salce
Is Il Museo Nazionale Collezione Salce a Hidden Gem in the Art World? Discover Chiara Matteazzi's Perspective

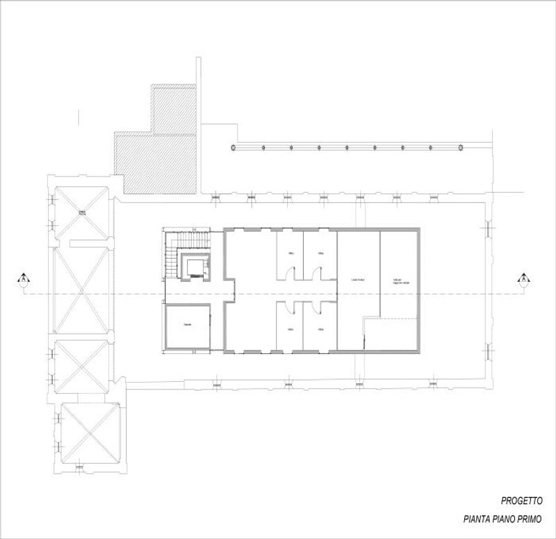
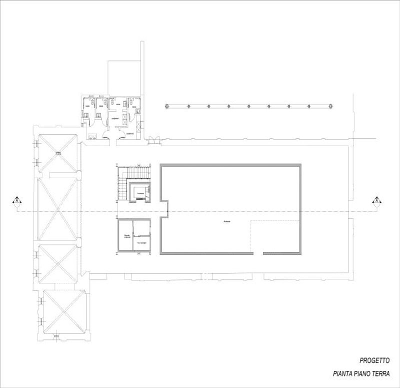
Thanks to the restoration efforts of the Ministry of Culture, led by architect Chiara Matteazzi, the Church of Santa Margherita has been transformed into the home of the Salce Collection. This immense patrimony of graphics has restored the church to its former glory, once rich in frescoes, including the fourteenth-century cycle of the Stories of Sant'Orsola by Tommaso da Modena, projected in its original environment. To further enhance the visitor experience, new technologies have been employed, such as an immersive reality of posters that unite the Salce & Renato Casaro Collection and an Interactive Digital Waterfall, as well as making it easier for scholars to examine the Collection.
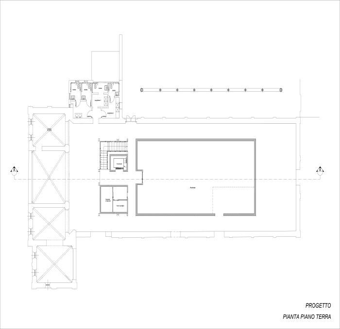
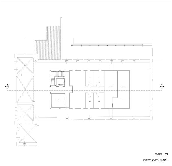
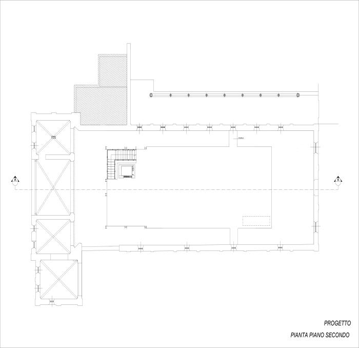
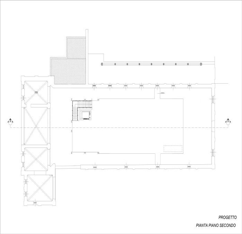
The Museum, situated in the historic centre of Treviso, is divided into two locations. Its highly secure technological hub is located on the ground floor of a reinforced concrete parallelepiped in the centre of the church. Inside, two hundred drawers of the vertical archive store materials in a climate-controlled environment, allowing a poster to be retrieved in a matter of moments. On the first level are the management offices, and on the "terrace" is a multifunctional exhibition area of 450 square meters with views of the museum spaces and the bare wall surfaces of the ancient church. Outside, the ancient cloister has been partially restored and redesigned to give an impression of what this sacred place must have been like.
In 2017, the headquarters of the Salce Collection in the San Gaetano Complex was inaugurated, and in June 2021, the headquarters in the Santa Margherita Complex was opened. The Collection consists of around 25,000 posters, collected by Salce from 1895, when he bought the Auer patent gas stove Incandescence at the age of eighteen, until his death in 1962. This very rich collection offers an interesting and varied insight into the society, culture and entrepreneurial realities of the first half of the 1900s, featuring posters advertising industrial products, often created by the greatest graphic artists of the time, as well as cinema posters, advertisements for tourist resorts, promotions of cultural and sporting events, and much more. Private donations have also been added to the Collection, bringing the total number of posters to almost 50,000.






















Popular Articles
Popular articles from the community
Free Architecture Competitions You Can Enter Right Now
No entry fees, real prizes. Here are the best free architecture competitions open for submissions in 2026.
Marvila Apartment Renovation in Lisbon: A Bright Minimalist Attic Transformation by KEMA Studio
Bright attic transformed into minimalist Lisbon apartment with skylights, sustainable materials, open plan layout, and industrial-inspired interior design elements.
20 Most Popular Commercial Architecture Projects of 2025
From sustainable market concepts to heritage factories, the commercial buildings and proposals that drew the most attention on uni.xyz this year.
Similar Reads
You might also enjoy these articles
Rede Arquitetos Builds an Open-Air School in Fortaleza That Doubles as a Neighborhood Living Room
Educar II SESC-CE folds sports, dance, and community gathering into a courtyard campus wrapped in mesh and tropical color.
NZ10 Apartment by auba studio: Adaptive Reuse in Palma de Mallorca
Adaptive reuse apartment transforms bakery into light-filled home with patios, privacy layers, and wood interiors enhancing urban living experience.
TGK Nirasaki Plant: A Smart Factory Blending Technology, Landscape, and Wellness
Smart factory in Japan blending IoT manufacturing, scenic trail design, natural ventilation, and landscape integration to enhance user experience and sustainability.
House in Macieira by Nelson Resende Arquitecto: A Sensitive Transformation Rooted in Context and Materiality
Adaptive reuse house blending wood, glass, and landscape, transforming traditional Portuguese architecture into a warm, open, contemporary living environment.
Explore Architecture Competitions
Discover active competitions in this discipline
The International Standard for Design Portfolios
The Global Benchmark for Architecture Dissertation Awards
The Global Benchmark for Graduation Excellence
Challenge to design an urban locus of culture and heritage
Comments (0)
Please login or sign up to add comments
No comments yet. Be the first to comment!