Community Center Architecture in Gdynia: Widna Haven by PB STUDIO, studiomania & IPA Ipreferanalog
A contemporary community center and library in Gdynia fostering public engagement through acoustically responsive, inclusive, and green architectural design.
Reimagining Public Space Through Inclusive Community Architecture
Widna Haven Community Center and Library in Gdynia, Poland, is a standout example of community center architecture that redefines the role of public buildings in contemporary urban life. Designed collaboratively by PB STUDIO, studiomania, and IPA Ipreferanalog, the 850 m² complex creates an inviting and versatile environment for social connection, learning, and relaxation in a busy residential district.



A Design Rooted in Urban Engagement
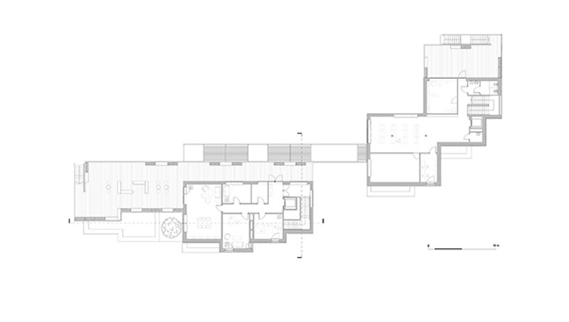
Located at a prominent intersection in Gdynia, the site posed unique spatial and acoustic challenges. The architects tackled this by designing the building as a protective barrier—shielding its central courtyard from traffic noise while opening inward toward community life. The layout places the new structures strategically around an intimate courtyard, forming a calm interior world surrounded by bustling city streets.


This inward-facing configuration fosters a sense of enclosure, safety, and shared experience, anchoring the building within the neighborhood both physically and socially.


Two Functions, One Vision: Library and Community Hub
The building is divided into two primary volumes: a public library and a community center. These wings flank the courtyard and also serve as a visual gateway to the adjacent residential estate. The separation of functions allows for flexible programming while maintaining strong visual and spatial cohesion.


The orientation and setback of the façade were designed to align with pedestrian routes and urban sightlines, creating intuitive access points for all visitors.


Material Strategy and Acoustic Design
The street-facing façade is clad in vertical wooden slats, not only softening the urban elevation but also functioning as an acoustic screen. These slats double as trellises for climbing greenery, adding life and seasonal variation to the building’s exterior. The courtyard-facing walls, rendered in a warm off-white finish, respond to municipal aesthetic guidelines and offer a gentle, human-scale visual experience.


A terrazzo-paved courtyard blurs the boundary between indoor and outdoor, transitioning seamlessly into terraced seating and public gathering spaces. This integration of materials enhances the immersive and approachable nature of the architecture.


An Active Courtyard for Collective Use
At the heart of Widna Haven is the amphitheater-like square, an adaptable venue for outdoor film screenings, workshops, public talks, and performances. A central fountain provides auditory comfort, masking surrounding noise and adding to the courtyard’s sensory richness.


The complex was also designed with intergenerational engagement in mind. Chess tables, sunny benches, and greenery cater to older residents, while children and young people benefit from open space, rooftop terraces, and dynamic programming opportunities.

Architecture as Infrastructure for Wellbeing
In line with the best of community center architecture, Widna Haven integrates landscape, accessibility, and wayfinding with elegance and clarity. All elements—from the rooftop terraces to the ground-level entry plaza—are connected through a unified system that prioritizes inclusivity. The rooftops, accessible via interior stairs and outdoor paths, expand the usable public space and offer panoramic views of the neighborhood.

Vegetation plays a key role in the overall design. Ornamental grasses, fruit trees, and perimeter planting contribute to urban biodiversity while softening hard edges and providing a natural buffer from the street.

A Sustainable and Social Urban Anchor
The Widna Haven project reflects a new vision for civic architecture—one where community identity, environmental quality, and social interaction are given equal weight. Its materials are tactile and enduring, its spaces flexible and welcoming, and its purpose rooted in the collective good. As cities seek to foster more inclusive public life, this project sets a precedent for how architecture can create environments where everyone feels at home.



All the photographs are works of Nate Cook, Jakub Piórkowski
Popular Articles
Popular articles from the community
On the Brooks House by Monsoon Collective – A Contemporary Kerala Home Rooted in Tradition
Kerala home blending tradition and modernity with water-inspired design, brick architecture, courtyard planning, and sustainable rainwater harvesting strategies.
A Contemporary Take on Iranian Residential Architecture
A modern interior design in Mashhad that reinterprets brick, light, and spatial flow to create a warm, contemporary residential architecture.
Flamboyant House by Juliana Camargo + Prumo Projetos
Modern Brazilian house integrating existing tree, pool, and volumes with glass, wood, and transitional spaces blending interior, exterior, and landscape seamlessly.
Solar Steam: A Climate-Responsive Architecture That Redefines the Monument
A climate-responsive memorial architecture that transforms heat, decay, and time into a living system reflecting humanity’s ecological impact.
Similar Reads
You might also enjoy these articles
Bamboo Housing Challenge 2026: Design Affordable, Sustainable Homes Using Bamboo
An international design competition by Bamboo U and IBUKU inviting architects and designers to reimagine affordable housing using bamboo — with the winning design built full-scale in Bali.
Computational Design & Education: Beegraphy Design Awards Introduces 7th Category (Featuring Jiyun's Innovative Approach)
Dive into Beegraphy’s 7th Design Awards category, where computational design meets education to create immersive, interactive learning tools, inspired by Jiyun’s work.
From Parametric Lighting to Urban Furniture: Join the 2nd Workshop in Beegraphy’s Computational Design Series
Dive into Cutting-Edge Design Techniques and Practical Applications with Industry Experts
Introducing Sphere by UNI: Pioneering a New Era in AEC Industry
Unlocking Global Potential with BIM and Agile Management
Explore Architecture Competitions
Discover active competitions in this discipline
The International Standard for Design Portfolios
The Global Benchmark for Architecture Dissertation Awards
The Global Benchmark for Graduation Excellence
Challenge to reimagine the Iron Throne
Comments (0)
Please login or sign up to add comments
No comments yet. Be the first to comment!