HAYATO KOMATSU ARCHITECTS Roots a Grass-Roofed Community Hub in the Mountains of Hiroshima
Oshigome Base in Kure City layers office, residence, and disaster-ready gathering space beneath two interlocking timber roofs.
In the foothills west of Kure City, where old and new houses line the contours beneath Mt. Ege, a construction company owner asked HAYATO KOMATSU ARCHITECTS for something unusual: a building that could serve as a workplace, a home, and a genuine anchor for the surrounding neighborhood. The result, Oshigome Base, completed in 2023, is a compact two-story timber structure that treats its roof as the primary design instrument. Two overlapping roof planes, one planted with grass, the other angled to reject southern sun and funnel river breezes, organize every room beneath them while stitching the building into a landscape that runs from the Honjo Suigenchi reservoir to the east all the way to the mountains behind.
What makes the project worth studying is not the grass roof alone, which is increasingly common, but the way the entire section is calibrated to produce a semi-public ground floor without sacrificing domestic privacy above. The multipurpose room on the first floor opens directly onto a garden separated by plantings rather than walls, functioning as a meeting place, event venue, and disaster prevention center for the area. It is an act of civic generosity embedded inside a private commission, recalling the way gardens of traditional Japanese homes once doubled as neighborhood commons.
Two Roofs, One Environmental Logic



The lower grass-roofed plane extends outward like a topographic shelf, continuing the green gradient from the reservoir through the site and toward the mountain range. It is not decorative ground cover; it reduces heat load on the rooms directly below and reads, from the street, as an extension of the hillside itself. Above it, the main roof pitches to block direct southern sun while catching prevailing winds that travel down the Niko River valley toward Kure Bay. Together the two planes generate deep eaves that protect the lower floor without mechanical shading.
The overlap between them creates a layered section visible in the building's corner elevations, where the cantilevered glazed upper volume floats above the planted surface. The composition is legible and honest: you can stand on the street and understand exactly how the building breathes.
Timber Structure and Material Restraint



Inside, exposed timber rafters and joists do the heavy visual lifting. The structural engineer, Satoshi Horie of Satoshi Horie Architecture, kept the frame legible throughout: roof beams span overhead without cladding, and the mezzanine bridge reads as a continuation of the structural grid rather than an applied element. Concrete walls at the ground level provide thermal mass and a certain civic weight to the entry hall, while the timber above keeps things warm and residential.
Material choices are restrained to a palette of concrete, wood, black steel, and glass. Nothing competes. The interiors feel calm precisely because the architecture resists adding anything that the structure does not already provide.
The Ground Floor as Civic Infrastructure


Sliding doors on the ground floor dissolve the boundary between the multipurpose room and a gravel courtyard planted with birch trees. The room is sized and equipped to host community meetings, local activity groups, and emergency coordination. In a mountainous area prone to natural hazards, embedding a disaster prevention function inside a private building is a quietly radical decision. It ensures the space will be maintained and occupied, not left locked between emergencies.
Plantings rather than fences modulate the threshold between the garden and the street, inviting visual connection while providing enough separation to make the domestic program viable. Landscape architect Neat Garden worked the planting plan to adjust sight lines precisely, so that privacy and openness coexist on the same parcel.
Living Above the Canopy



The upper floor is private territory. Bedrooms and a dining nook sit behind floor-to-ceiling glazing that frames the rolling green hills of Kure's interior. Black-framed windows and a timber beam ceiling give the rooms a measured domesticity, and corner glazing ensures that the distant mountains are always in view. The cantilevered upper volume, visible from the street as a hovering box, gains its real meaning from inside: it lifts the residents above the planted roof and positions them within the broader landscape of reservoir, river, and mountain.
A mezzanine workspace bridges the gap between the public ground floor and the private bedroom level, catching diffused light through full-height glass. It is the kind of space that makes working from a mountain town feel like a reasonable life decision.
Garden as Long-Term Catalyst


The garden is designed to grow into its role. Young trees and perennial plantings are sparse now, but the intention is that the landscape will mature into a shared green space where neighbors can gather, tend plants, and extend the communal spirit of the multipurpose room outdoors. It is an optimistic bet: that architecture can set the conditions, but community only emerges through time and use.
Raising plantings from ground level and allowing them to climb toward the grass roof creates a continuous green gradient that blurs the line between garden, building, and hillside. When the birch trees reach maturity, the gravel courtyard will feel less like a forecourt and more like a clearing in a small woodland. The building, at that point, will have disappeared into its site in the best possible way.
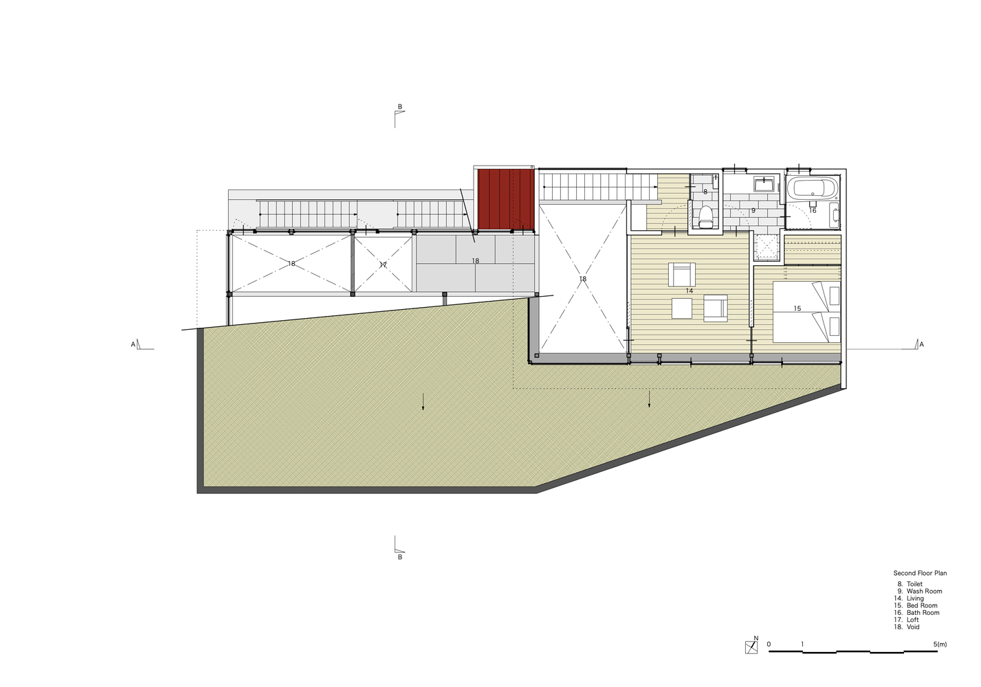
Plans and Drawings





The site plan reveals three rectangular volumes arranged around courtyard voids, with perimeter planting softening every edge. On the ground floor, the multipurpose room claims the most generous footprint, opening directly to the landscaped front garden. The upper floor plan pulls back to bedrooms and a terrace, leaving the rooftop of the lower volume as planted surface. Two section drawings are the most revealing documents in the set: one shows the split-level interior volumes stacked beneath the sloped roof with structural framing fully exposed, while the other clarifies the spatial dialogue between the taller glazed volume and the lower grass-roofed pavilion. The building's total floor area is a modest 140 square meters on a 478-square-meter site, yet the sections demonstrate that the perceived volume far exceeds the measured one.
Why This Project Matters
Oshigome Base is a small building that carries a large idea: that private commissions in rural and semi-rural Japan can and should do civic work. By integrating a disaster prevention center, a community meeting room, and a garden designed for shared use into a 140-square-meter house and office, Hayato Komatsu demonstrates that generosity of program does not require a public budget or a monumental footprint. It requires a willing client, a site strategy that negotiates between openness and privacy, and a structural logic that makes the whole thing buildable.
The environmental strategy is equally instructive. Rather than bolting on sustainability features, the two overlapping roofs handle solar gain, ventilation, heat reduction, and green continuity as consequences of their geometry. The architecture does the work, not the equipment. In a profession increasingly tempted by performance metrics divorced from spatial quality, Oshigome Base is a reminder that climate response and community engagement can emerge from the same section drawing.
Oshigome Base by HAYATO KOMATSU ARCHITECTS, Kure City, Hiroshima Prefecture, Japan. 140.61 m² total floor area, 478.25 m² site area. Completed 2023. Structural engineer: Satoshi Horie Architecture. Landscape: Neat Garden. Photographs by Toshiyuki Yano.
About the Studio
Share Your Own Work on uni.xyz
If projects like this are the kind of work you want to make, uni.xyz is a place to publish your own, find collaborators, and enter design competitions.
Popular Articles
Popular articles from the community
A Park Building That Wants to Be a Landscape
Omrania's Operations & Maintenance Building at King Salman Park dissolves industrial program into Riyadh's largest green infrastructure.
Filtering Space: A Gradual Spatial Experience
From urban intensity to spatial calm.
20 Most Popular Commercial Architecture Projects of 2025
From sustainable market concepts to heritage factories, the commercial buildings and proposals that drew the most attention on uni.xyz this year.
MAKER architecten Rewire a 1972 Brutalist Dormitory on the VUB Campus as a Living Lab
A modular renovation strategy in Belgium breathes new life into Willy Van Der Meeren's modernist student housing without erasing its concrete bones.
Similar Reads
You might also enjoy these articles
Filtering Space: A Gradual Spatial Experience
From urban intensity to spatial calm.
The Ken Roberts Memorial Delineation Competition (Krob)
As the most senior architectural drawing competition currently in operation anywhere in the world, it draws hundreds of entries each year, awarding the very best submissions in a series of medium-based categories.
Waterfront Redevelopment and Urban Revitalization in Mumbai: Forging a New Dawn for Darukhana
A transformative waterfront redevelopment project reimagining Darukhana’s shipbreaking heritage into an inclusive urban future.
OUT-OF-MAP: A Call for Postcards on Feminist Narratives of Public Space
Rhizoma Design and Research Lab invites artists, designers, architects, researchers, and students to reflect on how feminist perspectives can reshape public space. Selected works will be exhibited in Barcelona, October 2026. Submissions open until 15 April 2026.
Explore Architecture Competitions
Discover active competitions in this discipline
The International Standard for Design Portfolios
The Global Benchmark for Architecture Dissertation Awards
The Global Benchmark for Graduation Excellence
Challenge to reimagine the Iron Throne
Comments (0)
Please login or sign up to add comments
No comments yet. Be the first to comment!