Kanisavaran Architectural Group Carves a Layered Café from a Narrow Street Corner in Iran
J Cafe transforms a shuttered storefront into a luminous, multi-level space defined by brick screens, glass block walls, and custom furniture.
The problem with most café renovations is that they treat architecture as backdrop. A coat of paint, some Edison bulbs, a reclaimed wood counter, and the job is done. J Cafe, designed by Kanisavaran Architectural Group, takes a fundamentally different approach: it treats the café as a genuine architectural project, one where spatial sequence, material transitions, and vertical connectivity matter as much as the espresso machine. Situated on a narrow corner lot in Iran, the project replaces a shuttered, opaque storefront with a transparent, multi-level interior that invites the street inside and pulls visitors upward through a carefully choreographed series of rooms.
What makes J Cafe worth studying is not any single gesture but the accumulation of disciplined decisions within tight constraints. The building is narrow and deep, wedged against a curved street edge. Kanisavaran responds by stacking programs vertically, layering translucent and opaque surfaces to modulate light and privacy, and designing nearly every piece of furniture in-house. The result is a project that reads as a small building rather than an interior fit-out, a distinction that elevates it above its typology.
Opening the Storefront



The before-and-after comparison tells the story immediately. Where a row of metal shutters once sealed the building from the street, floor-to-ceiling glass panels now expose the full depth of the ground floor. Ribbed brick columns frame the glazing without competing with it, establishing a rhythm that gives the facade a civic scale despite its modest width. A planter at the threshold softens the transition from sidewalk to interior, while the buff-colored brick ties the new intervention to the material language of the surrounding neighborhood.
The decision to open the facade so completely is a bold one for a café on a public street. It turns the interior into a vitrine, making the life of the space visible to passersby and drawing foot traffic inward. At the same time, the brick columns provide just enough visual separation to preserve a sense of enclosure for seated patrons.
The Facade After Dark



At dusk, J Cafe becomes a lantern. The illuminated interior shelving and warm tones of the display walls glow through the glass, transforming the building into an anchor for the street corner. The narrow entrance facade, visible in the twilight street view, uses recessed doorways flanked by textured brick to create depth and shadow even at a small scale. A walking figure silhouetted against the glass entrance captures the building's intended relationship with the city: permeable, inviting, alive.
Vertical Sequence and the Double-Height Lobby



The interior logic hinges on a double-height lobby that serves as the project's spatial hinge. White columns and a contrasting black-and-white floor establish a clean, open ground plane. From here, a cantilevered white staircase with a glass balustrade pulls visitors up to the mezzanine level. The staircase floats against a wall of diffused light, turning vertical circulation into a moment of pause rather than mere utility.
Floor-to-ceiling glazing along one edge of the upper level opens views to greenery outside, reinforcing the sense that the building is porous in all directions. The white tile flooring reads as continuous across levels, creating visual unity between the ground floor, staircase landing, and mezzanine.
Material Contrasts: Glass Block, Green Glass, and Grid Walls



Kanisavaran treats material not as decoration but as a tool for controlling light and privacy across the building's depth. A gridded display shelving wall in the double-height room doubles as a luminous screen, filtering daylight through its modular openings. Beside it, a glass block wall separates the main room from the upper mezzanine while maintaining visual connection, a classic move executed with precision here.
The backlit grid walls in gold and green tones introduce warmth into an otherwise restrained palette. The green upper kitchen level, visible from the lobby below, announces itself as a distinct zone through color alone. These material shifts are not arbitrary; they correspond to programmatic changes, turning the building's section into a readable diagram of use.
The Green Lounge and Intimate Seating



The lounge with backlit green glass paneling is the project's moodiest room. Dark wood flooring and a black ceiling compress the space overhead, while the translucent green wall radiates an ambient glow that gives the room a twilight quality at any hour. Illuminated display niches punctuate the wall, offering curated moments within the larger surface.
Elsewhere, floating timber benches suspended from cables hover against a white vertical slat wall. These are not off-the-shelf pieces. The suspension system keeps the floor clear and introduces a lightness that offsets the density of the green lounge. The contrast between the two seating environments, one dark and enveloping, the other bright and weightless, gives patrons genuinely different spatial experiences within a single building.
Threshold and Circulation



The entrance threshold is handled with care. White tiled flooring extends from inside to out, blurring the boundary between street and interior. Glass walls on both sides of the covered walkway make the approach feel like walking through a vitrine. Planted white boxes along one corridor edge introduce greenery at a pedestrian scale, softening what could otherwise be an austere corridor.
Figures appear in nearly every photograph, a sign that the architects understand their building as a space for bodies in motion. The corridors are not dead zones; they are framed views, moments where light shifts and materials change underfoot.
The Narrow Entrance


The narrow entrance facade, visible in the evening photograph, reveals the challenge of the site. The building's street frontage is tight, and Kanisavaran uses a recessed doorway flanked by textured brick walls to create a sense of depth and compression before the interior opens up. The double-height lobby beyond, with its timber benches, glass block tables, and mezzanine opening above, releases the spatial pressure built up at the threshold. It is a classic architectural move, compress then expand, executed with conviction.
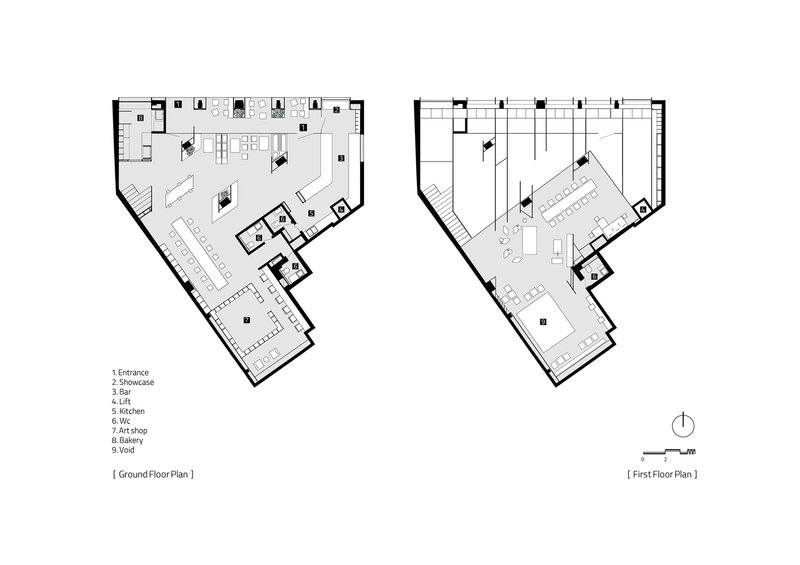
Plans and Drawings







The drawings reveal how tightly the design is organized. The site plan shows the building's position at a street intersection, its footprint angled to follow the curved road edge. Ground and first floor plans illustrate a clear zoning of entrance, showcase area, and living spaces arranged within an irregular geometry. The elevation drawing confirms the three-story volume: a transparent ground floor colonnade topped by vertical louvers that provide shading and privacy to the upper levels.
The exploded axonometric sequence is particularly instructive. It traces the design process from initial massing through spatial subdivision to final form, showing how the architects carved programmatic zones for kitchen, bar, bakery, artshop, and outdoor seating from a single compact volume. A separate axonometric isolates the custom furniture pieces, confirming that tables, chairs, and shelving were all designed specifically for the project. This level of integration, from urban context down to a chair leg, is rare in café architecture.
Why This Project Matters
J Cafe matters because it refuses the easy path. Where most commercial interior renovations accept the existing shell and decorate inward, Kanisavaran Architectural Group rethinks the building from the street edge to the furniture hardware. The result is a café that functions as architecture in the full sense: a building that shapes light, organizes movement, modulates privacy, and engages the city. The vertical stacking of programs on a narrow site, the discipline of material transitions, and the commitment to custom-designed furniture all point to a practice that takes small projects as seriously as large ones.
For the broader discipline, J Cafe is a reminder that typological ambition does not require typological scale. A café on a street corner, done with conviction and intelligence, can produce architecture as spatially rich as a museum. The lesson is not about budget or program but about intent: treating every commission as an opportunity to make a real building.
J Cafe by Kanisavaran Architectural Group, Iran. Photography by Mohammad Hassan Ettefagh.
About the Studio
Share Your Own Work on uni.xyz
If projects like this are the kind of work you want to make, uni.xyz is a place to publish your own, find collaborators, and enter design competitions.
Popular Articles
Popular articles from the community
LABarq Builds an Entire House in Querétaro from a Single Custom Concrete Block
Casa Capuchinas uses one sand-colored block as structure, finish, and sunscreen across 477 square meters of suburban Mexico.
MAVA Design Turns a Column-Riddled Shell into a Serene Hair Extension Salon in Kyiv
Inside a former motorcycle factory campus, a 110 square metre beauty atelier treats structural obstacles as spatial anchors.
Atelier LAI Scatters a Timber Resort Across a Terraced Anhui Valley
Nanshan Junning Resort uses wood joinery and topographic sensitivity to settle 6,700 square meters into a ten-meter slope near Hefei.
Prokop Hartl Turns a 1930s Prague Corner Apartment into a Lesson in Structural Honesty
A 115 m² renovation on the Vltava River celebrates exposed concrete, restored parquet, and a mirrored column as its centerpiece.
Similar Reads
You might also enjoy these articles
Olio Towers: A Mid-Rise for Performers That Fuses Housing, Rehearsal, and Stage
Located blocks from Houston's Theater District, this modular tower stacks living units around a central performance atrium.
Oasis: Modular Green Housing Carved into Dhaka's Urban Fabric
A shortlisted Plugin Housing entry reclaims unauthorized settlements in Dhaka with stepped concrete volumes, green roofs, and ventilation-driven design.
Black Hole: A Floating Megastructure for the Post-Physical Era
Emiliano Mazzarotto envisions a spherical, self-scaling arena where e-sports, digital hotels, and holographic stadiums replace traditional public space.
Compact & Sustainable Living in Piraeus: A Four-Level Family Home Built Around Light and Air
A narrow townhouse in one of Greece's densest port cities uses a central atrium and passive strategies to house three generations under one roof.
Explore Architecture Competitions
Discover active competitions in this discipline
The International Standard for Design Portfolios
The Global Benchmark for Architecture Dissertation Awards
The Global Benchmark for Graduation Excellence
Challenge to reimagine the Iron Throne
Comments (0)
Please login or sign up to add comments
No comments yet. Be the first to comment!