Contemporary School Architecture: Verde School by Ricardo Gusmão Arquitetos and Guido Otero Arquitetura
Verde School is a contemporary educational building that blends urban integration, material expression, and climate-responsive design in Brazil.
A Coastal Campus Blending Urban Context and Educational Innovation
Verde School, located along Brazil’s Canal 6 just steps from the beach, is a compelling example of contemporary school architecture. Designed by Ricardo Gusmão Arquitetos and Guido Otero Arquitetura, the project skillfully mediates between contrasting urban scales—high-rise buildings facing the sea and low-rise residential homes inland. Completed in 2023, the 4,500-square-meter educational facility does more than provide learning spaces; it builds a bridge between the built environment, the landscape, and the local community.



This unique context demanded an architectural solution that was both responsive and forward-thinking. The resulting structure is a school designed not just to house education, but to inspire it—through light, material honesty, spatial transparency, and fluidity.



Site Strategy and Urban Integration
The placement of Verde School within an urban gap lent the project a strong conceptual framework. It occupies a transitional zone—between ocean-facing towers and ground-level houses—inviting a design that negotiates different architectural scales. The building establishes a meaningful relationship with both the canal and the sea, opening itself to surrounding views while contributing a new civic presence to the block.


At street level, the school feels accessible and open, fostering a sense of inclusivity. The design acknowledges the social dimension of educational spaces, encouraging interaction between students, educators, and the wider community.



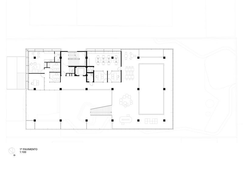
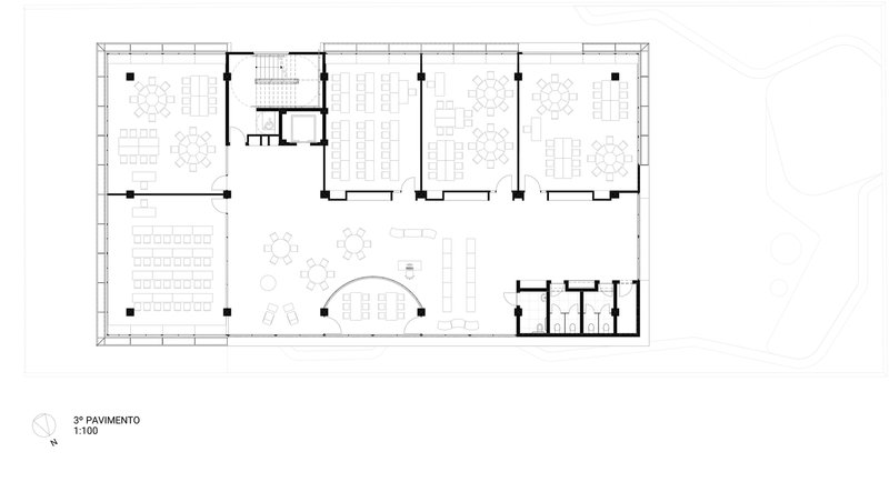
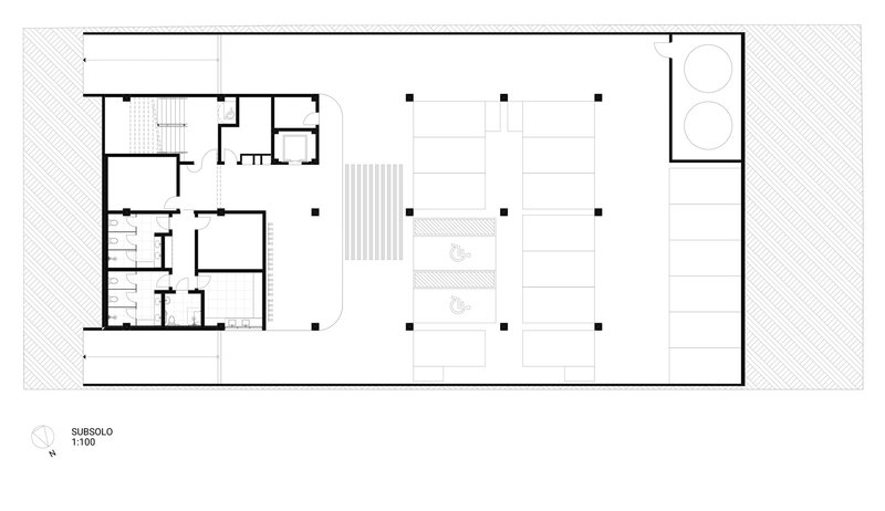
Spatial Organization and Vertical Efficiency
Organized across four levels, the building maximizes its compact footprint through vertical distribution. The ground floor revolves around a central courtyard—covered and open to the air—which acts as the main arrival and recreation area. With a double-height ceiling, this space is a dynamic passage that links the front and back of the site, creating strong longitudinal movement through the campus.


Adjacent to this central courtyard are communal programs such as the cafeteria and recreational areas. The first floor houses administrative spaces, while the second and third floors are dedicated to classrooms, laboratories, and art rooms. These upper floors are connected by a large, open support area that encourages socialization and informal learning.



Crowning the school is a fully open rooftop terrace. Designed as a flexible urban plaza, it provides panoramic views and can host a wide range of outdoor activities, extending learning beyond enclosed spaces and into the open sky.


Materiality with a Didactic Dimension
A standout feature of Verde School’s design is its commitment to material expression. Precast concrete was chosen as the primary construction method to streamline the building process and enhance structural clarity. The walls are made of soil-cement bricks paired with aluminum frames—materials left exposed as part of a conscious pedagogical decision.




This raw and honest material palette gives the school a didactic character. The exposed systems and unfinished textures teach students about construction, sustainability, and architectural logic. These choices also simplify long-term maintenance, proving practical as well as educational.




Climate Responsiveness and Solar Shading
Verde School integrates smart passive design strategies to adapt to its coastal climate. Two types of solar shading systems enhance thermal comfort. The ground floor features perforated metal sheets that mark the communal zones while allowing air and light to pass through. The upper floors are protected by horizontal metal brise-soleils paired with planters, combining shading with greenery to cool the façade and connect the interior to nature.

These shading devices not only serve environmental purposes but also enrich the architectural identity of the school. They introduce texture, rhythm, and softness to the elevations, balancing the raw concrete with layers of detail and light modulation.



A Living Laboratory for Learning
More than a collection of classrooms, Verde School is conceived as a dynamic learning environment. Every corner, surface, and passageway is designed to engage students and staff in new ways of seeing, moving, and interacting. Its openness to the city and landscape reflects an educational philosophy rooted in transparency, flexibility, and connection.




As a piece of contemporary school architecture, it demonstrates how educational buildings can go beyond functionality to become instruments of engagement, sustainability, and urban integration. Verde School is not just a place to learn—it’s a place that teaches through its very form.





Popular Articles
Popular articles from the community
Inverted Architecture Installation by Studio Link-Arc: Exploring the Intersection of Architecture and Living Organisms
Inverted Architecture Installation by Studio Link-Arc blends mycelium, sustainability, inverted design, ecological cycles, and urban adaptive architecture in Shenzhen.
An Miên Lumière Cafe by xưởng xép, Ho Chi Minh City, Vietnam
An industrial-inspired café where layered steel and warm light create a dynamic, immersive environment shaped by reflection, depth, and perception.
Flamboyant House by Juliana Camargo + Prumo Projetos
Modern Brazilian house integrating existing tree, pool, and volumes with glass, wood, and transitional spaces blending interior, exterior, and landscape seamlessly.
The Ken Roberts Memorial Delineation Competition (Krob)
As the most senior architectural drawing competition currently in operation anywhere in the world, it draws hundreds of entries each year, awarding the very best submissions in a series of medium-based categories.
Similar Reads
You might also enjoy these articles
Bamboo Housing Challenge 2026: Design Affordable, Sustainable Homes Using Bamboo
An international design competition by Bamboo U and IBUKU inviting architects and designers to reimagine affordable housing using bamboo — with the winning design built full-scale in Bali.
Computational Design & Education: Beegraphy Design Awards Introduces 7th Category (Featuring Jiyun's Innovative Approach)
Dive into Beegraphy’s 7th Design Awards category, where computational design meets education to create immersive, interactive learning tools, inspired by Jiyun’s work.
From Parametric Lighting to Urban Furniture: Join the 2nd Workshop in Beegraphy’s Computational Design Series
Dive into Cutting-Edge Design Techniques and Practical Applications with Industry Experts
Introducing Sphere by UNI: Pioneering a New Era in AEC Industry
Unlocking Global Potential with BIM and Agile Management
Explore Architecture Competitions
Discover active competitions in this discipline
The International Standard for Design Portfolios
The Global Benchmark for Architecture Dissertation Awards
The Global Benchmark for Graduation Excellence
Challenge to reimagine the Iron Throne
Comments (0)
Please login or sign up to add comments
No comments yet. Be the first to comment!