Contemporary Triplex Design in Brazil: The Triplex Vila Romana by Pietro Terlizzi Arquitetura
A detailed look at the Triplex Vila Romana by Pietro Terlizzi Arquitetura, blending modern design, art, and functionality.
The Triplex Vila Romana is an innovative project by Pietro Terlizzi Arquitetura, located in Vila Romana, Brazil. This 250m² apartment exemplifies modern design principles and integrates cultural influences, art, and personalized elements throughout its three floors. The result is a unique home that blends sleek contemporary architecture with thoughtful nods to the clients' preferences and regional culture.





The Integration of Modern Design Features
One of the most striking elements of the Triplex Vila Romana is its open-plan, integrated spaces. The design emphasizes fluidity between the dining room and kitchen, where a cobogó wall allows natural light to permeate the entire area. The clients’ dream kitchen, bathed in shades of pink, manages to maintain a sophisticated tone by incorporating complementary materials such as graphite-colored countertops and intricate Portuguese tiles.





Artistic References and Personalization
Throughout the apartment, artistic elements play a significant role in its design narrative. For instance, a mural by Athos Bulcão in the Social Hall references Brasília, the hometown of the residents, infusing the space with local history. In the dining room, a custom-designed organic table ensures smooth circulation, while the bedrooms feature art by Dani Shirozono, enhancing the visual experience with elements that resonate with the clients.






Functionality Meets Aesthetic Appeal
The functionality of the apartment is as well-designed as its aesthetic features. A spiral staircase, enhanced by a muxarabi woodwork box, leads from one floor to the next, adding a sense of intrigue to the space. The second floor, with its expansive glass wall overlooking the pool, brings natural light into the living areas, creating a vibrant and airy atmosphere. The use of integrated spaces ensures that each floor feels interconnected and spacious.






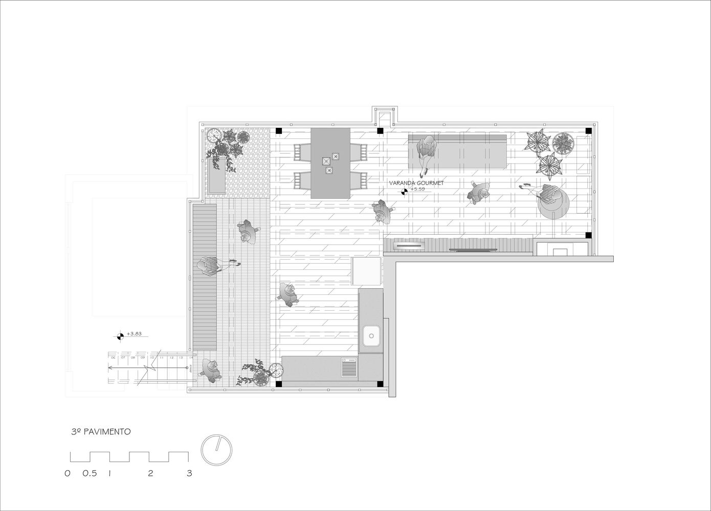
Rooftop and Outdoor Living Spaces
The rooftop of the Triplex Vila Romana is an extension of the home, offering a versatile space for leisure and entertainment. The glass-edge swimming pool and vertical garden walls contribute to a feeling of serenity amidst the bustling cityscape of São Paulo. The retractable roof of the rooftop area further enhances its flexibility, making it suitable for outdoor movie nights or intimate gatherings around the gas fireplace.









The Triplex Vila Romana is a testament to how contemporary architecture can merge with personal design preferences to create a home that is not only visually striking but also highly functional. By integrating elements of Brazilian culture and the clients’ passions, the project exemplifies the best of modern design, artistic expression, and practical living.



All Photographs are work of Guilherme Pucci
Popular Articles
Popular articles from the community
Free Architecture Competitions You Can Enter Right Now
No entry fees, real prizes. Here are the best free architecture competitions open for submissions in 2026.
Split House: A Compact Urban Home Blending Privacy, Light, and Flexible Living in Japan
Compact Japanese home featuring DOMA space, flexible café potential, passive lighting, privacy zoning, and sustainable urban living design.
Solar Steam: A Climate-Responsive Architecture That Redefines the Monument
A climate-responsive memorial architecture that transforms heat, decay, and time into a living system reflecting humanity’s ecological impact.
Atelier Macri Concept Store Interior Design by CASE-REAL
Atelier Macri store features a "ko" counter, walnut wood details, cork displays, blending retail, gallery, and seamless customer experiences.
Similar Reads
You might also enjoy these articles
The Ken Roberts Memorial Delineation Competition (Krob)
As the most senior architectural drawing competition currently in operation anywhere in the world, it draws hundreds of entries each year, awarding the very best submissions in a series of medium-based categories.
Waterfront Redevelopment and Urban Revitalization in Mumbai: Forging a New Dawn for Darukhana
A transformative waterfront redevelopment project reimagining Darukhana’s shipbreaking heritage into an inclusive urban future.
OUT-OF-MAP: A Call for Postcards on Feminist Narratives of Public Space
Rhizoma Design and Research Lab invites artists, designers, architects, researchers, and students to reflect on how feminist perspectives can reshape public space. Selected works will be exhibited in Barcelona, October 2026. Submissions open until 15 April 2026.
Documentation Work on Buddhist Wooden Temple
Architectural syncretism and cultural hybridity: A comparative study of the Buddhist temples in Chattogram Hill tracks
Explore Architecture Competitions
Discover active competitions in this discipline
The International Standard for Design Portfolios
The Global Benchmark for Architecture Dissertation Awards
The Global Benchmark for Graduation Excellence
Challenge to reimagine the Iron Throne
Comments (0)
Please login or sign up to add comments
No comments yet. Be the first to comment!