Creative Chaos Unleashed at Follyfield's Art Haven!
How did Follyfield's Art Haven become the ultimate destination for artistic expression?

Follyfield, a traditional home located in a Conservation Area near Peterborough, has undergone a stunning revival by Studio McW. The restoration was commissioned by a young family who relocated from London in 2019, seeking a modern, cosmopolitan home with a connection to the local community.
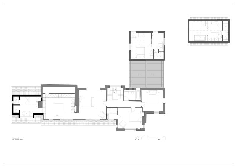
Studio McW's approach to Follyfield was to blend contemporary architecture with the hamlet's rural vernacular, resulting in three gabled extensions in varying scales that respond to the proportions of the existing property. The largest extension, built from clay bricks to complement the existing stone of the property, features a zinc-clad gabled kitchen and living space that connects it to the main house. The third addition is a new garage built from reclaimed stone and pale timber.
The new floor plan of Follyfield is focused around the heart of the home - a new 30 square metre extension that houses an open plan kitchen, living and dining area. The area features a large concrete kitchen island, black cabinetry, herringbone oak parquet flooring, and a vaulted ceiling of exposed rafters overhead. Full-height matte black timber doors conceal a utility room and staircase up to a new guest suite which sits atop the new extension.
Connection is a key idea explored through the architecture of Follyfield, with the extension redefining the floor plan of the house as an L-shape, improving the spatial flow and connection to the garden. The entry sequence has also been developed to maintain the original foyer as the formal front door, while a new side door and boot room provide easy, everyday access from the garage and driveway.
The gardens of Follyfield, designed by Claire Greener Landscapes, were also given a complete overhaul to complement the new extensions. The expansive site mainly consisted of a border planting along the perimeter and sprawling lawns, which Studio McW and Claire Greener transformed into an intimate London terrace garden with a new brick patio and water feature. An outdoor entertaining space flows directly into the kitchen through vast sliding glass doors, offering long views through the grounds to balance the family's need for space while adding energy and movement to the entire property.
Follyfield exemplifies Studio McW's sensitivity to natural materials, with the design blending contemporary elements seamlessly with the existing property and the surrounding rural landscape. The restoration has created a modern, functional home for a young family, while still celebrating the home's traditional roots and local ties.
In a bid to modernize regional homes across the United Kingdom, Studio McW has completed the first phase of its Follyfield project. The project's design features slim format clay bricks in a soft sandstone colour that blend subtly with the existing masonry. The architects also added flush thresholds with chamfered wall detailing to direct views and add minimalist delight to the facade of the new wing.
Inside the building, Studio McW collaborated closely with Rebecca Wakefield of Studio Fortnum to balance the architectural and decorative ambitions of the clients' brief. The result is a beautifully designed interior that complements the exterior of the building.
The second phase of the Follyfield project, due to be completed in 2023, will see Studio McW reorganize the second story of the main house. This will involve adding two children's bedrooms and an extension to the western elevation of the house. The extension will accommodate an extended main bedroom suite on the first floor and a formal dining area on the ground floor for entertaining large groups.
Follyfield is a testament to Studio McW's signature approach to homes that enhance their clients' lives. It is also the first regional project completed by the young firm, highlighting its flexibility and capability to undertake projects across traditional and modern architecture at scale.
In conclusion, Studio McW's Follyfield project serves as an elegant precedent for the modernization of regional homes across the United Kingdom. With its expertise in architecture and design, the firm is set to revolutionize the way we perceive houses and homes in the future.





















Architects: Studio McW
Area: 90 m²
Year: 2021
Photographs: Lorenzo Zandri, Mariell Lind Hansen
Manufacturers: Cantifix, Crittall, Design Plus, Havwoods, Petersen Tegl, Puccini Kitchens, The Rooflight Company
Popular Articles
Popular articles from the community
Inverted Architecture Installation by Studio Link-Arc: Exploring the Intersection of Architecture and Living Organisms
Inverted Architecture Installation by Studio Link-Arc blends mycelium, sustainability, inverted design, ecological cycles, and urban adaptive architecture in Shenzhen.
Atelier Macri Concept Store Interior Design by CASE-REAL
Atelier Macri store features a "ko" counter, walnut wood details, cork displays, blending retail, gallery, and seamless customer experiences.
Louis Malle Cinema: A Limestone Cultural Landmark Revitalizing Community Life in Prayssac
Limestone cinema extension with public forecourt, blending heritage and modern design to create flexible cultural spaces and strengthen community interaction.
The Ken Roberts Memorial Delineation Competition (Krob)
As the most senior architectural drawing competition currently in operation anywhere in the world, it draws hundreds of entries each year, awarding the very best submissions in a series of medium-based categories.
Similar Reads
You might also enjoy these articles
SOM LAND Hotel by RooMoo: A Sustainable Retreat Rooted in Nature and Local Craft
Sustainable boutique hotel in Shanghai blending adaptive reuse, natural materials, vernacular craftsmanship, and slow living within a serene countryside landscape.
Zhuxi Wonderland: Reimagining Traditional Chinese Gardens by Doarchi Architects
Zhuxi Wonderland by Doarchi Architects reinterprets traditional Yangzhou gardens, integrating courtyards, pavilions, and tea houses in modern cultural design.
Doble Soga House: A Contemporary Brick Residence Rooted in Landscape in Quito, Ecuador
Brick house in Quito integrating nature, flexible living spaces, exposed materials, and rooftop terrace, creating warm contemporary architecture for modern family life.
Al Gharra Mosque in Medina Redefining Contemporary Islamic Architecture
Minimalist Medina mosque using concrete, light, and landscape to reinterpret Islamic worship spaces through symbolic spiritual transitions and contemporary architecture.
Explore Architecture Competitions
Discover active competitions in this discipline
The International Standard for Design Portfolios
The Global Benchmark for Architecture Dissertation Awards
The Global Benchmark for Graduation Excellence
Challenge to reimagine the Iron Throne
Comments (0)
Please login or sign up to add comments
No comments yet. Be the first to comment!