Discover the Shocking Truth Behind Casa Cattiva with Industria38's Michelangelo Pivetta!
Is Casa Cattiva the Most Infamous Building in Industria38? Michelangelo Pivetta Shares His Inside Knowledge

Michelangelo Pivetta, an Italian architect known for his innovative designs, has recently unveiled his latest project - Casa Cattiva. The house is located in the urban dissemination of the Veneto suburbs and stands out from the vast pulverization of the Veneto's city with its unique character.
Pivetta's design for Casa Cattiva challenges the sad leveling of buildings that has been rampant since the 1960s. The architect describes the area as a professional jungle for disinterested operators, where homogenous features dominate and projects are based on an equivocally interpreted modernity.
In contrast, Pivetta's Casa Cattiva is a hieratic container that presents rare breaches that measure distances and relationships between inside and outside. The volumetric instrument is imperturbable, absolute, and configured by studying space and its figures.
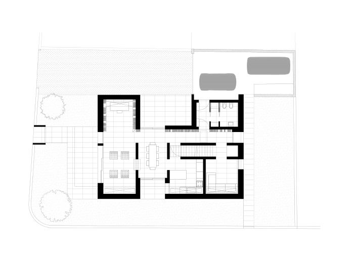
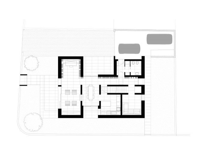
The building's basement is the principal element, and it relates solidly with the earth, fragmented into three different volumes. The basement draws the hardness and physicality of the stone from the earth, adorning itself with its independent formal identity expressed by an enigmatic black color on the outside or worked concrete inside.
The upper floor is a solid, indifferent, and opposite to the whole, resting on the underlying masonry. The parallelepiped with a square section does not glide but rests on the base, touching it like a menhir.
At the top, a secret garden recessed from view is made of a paved stone, a lawn, and a cedar tree. The garden expands towards infinity and provides a meditative space for the occupants.
Casa Cattiva is more than just a house, fortress, or an ark. It is a search for a form of representation of architecture or an affirmation of its immanent vocation to become a solitary piece of a new possible rival landscape.
Michelangelo Pivetta's Casa Cattiva is a testament to his innovative design thinking and his ability to challenge the prevailing norms in the Veneto suburbs.







































Popular Articles
Popular articles from the community
Solar Steam: A Climate-Responsive Architecture That Redefines the Monument
A climate-responsive memorial architecture that transforms heat, decay, and time into a living system reflecting humanity’s ecological impact.
Flamboyant House by Juliana Camargo + Prumo Projetos
Modern Brazilian house integrating existing tree, pool, and volumes with glass, wood, and transitional spaces blending interior, exterior, and landscape seamlessly.
An Miên Lumière Cafe by xưởng xép, Ho Chi Minh City, Vietnam
An industrial-inspired café where layered steel and warm light create a dynamic, immersive environment shaped by reflection, depth, and perception.
On the Brooks House by Monsoon Collective – A Contemporary Kerala Home Rooted in Tradition
Kerala home blending tradition and modernity with water-inspired design, brick architecture, courtyard planning, and sustainable rainwater harvesting strategies.
Similar Reads
You might also enjoy these articles
Zhuxi Wonderland: Reimagining Traditional Chinese Gardens by Doarchi Architects
Zhuxi Wonderland by Doarchi Architects reinterprets traditional Yangzhou gardens, integrating courtyards, pavilions, and tea houses in modern cultural design.
Doble Soga House: A Contemporary Brick Residence Rooted in Landscape in Quito, Ecuador
Brick house in Quito integrating nature, flexible living spaces, exposed materials, and rooftop terrace, creating warm contemporary architecture for modern family life.
Al Gharra Mosque in Medina Redefining Contemporary Islamic Architecture
Minimalist Medina mosque using concrete, light, and landscape to reinterpret Islamic worship spaces through symbolic spiritual transitions and contemporary architecture.
Viczonecode Villa by DDconcept – Tropical Family Living in Ho Chi Minh City
Tropical family villa in Ho Chi Minh City featuring courtyards, skylights, natural ventilation, elevated flooring, and seamless indoor–outdoor living surrounded by greenery.
Explore Architecture Competitions
Discover active competitions in this discipline
The International Standard for Design Portfolios
The Global Benchmark for Architecture Dissertation Awards
The Global Benchmark for Graduation Excellence
Challenge to reimagine the Iron Throne
Comments (0)
Please login or sign up to add comments
No comments yet. Be the first to comment!