Dynamic Office Design: Wet Beast Office by Studioninedots
Wet Beast Office revolutionizes workspace design with interactive elements, fostering creativity and community in Amsterdam-West.
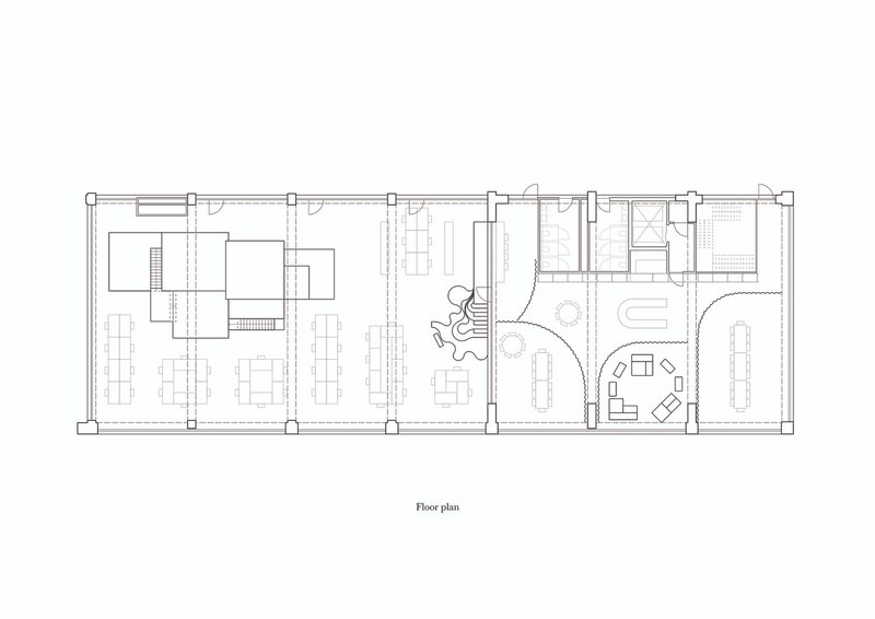
In the heart of Amsterdam-West, within the innovative Westbeat building, lies the Wet Beast Office, a testament to dynamic office design by Studioninedots. This 750 m² workspace transforms traditional office concepts into a landscape of creativity, interaction, and social engagement through the introduction of three mystical objects.


Design Philosophy
A Workplace of Experimentation
The Wet Beast Office embodies a new workplace concept where experimentation, interaction, and spontaneity are central. Designed to stimulate creativity and foster a sense of community, the office features three distinct spatial elements that encourage diverse uses and interpretations, breaking away from the conventional work environment.

Integration with Westbeat's Architecture
Situated on the ground level of the Westbeat complex, the office leverages the building's unique concrete arch constructions to create exciting spaces for a variety of purposes. This architectural integration ensures that the office is not only a place of work but also a vibrant part of the building's social sphere.

Key Features
The Three Mystical Objects
- The Beast: An Escher-like playground that offers a space for meetings, events, and relaxation, characterized by its stairways and passages that invite free interpretation.
- Jungle: A connecting staircase that doubles as a podium for presentations or a relaxation spot, named for its organic shapes and integrated planting.
- Town Hall: Comprising timber seating elements and light curtains, it serves as an intimate space for gatherings, either secluded by curtains or open to the surrounding office.



Impact on Workplace Design
Stimulating Creativity and Community
Wet Beast Office challenges the norms of office design by creating a space that is as versatile as it is engaging. By providing areas that can adapt to various activities and needs, the office not only enhances productivity but also promotes well-being and collaboration among its users.
A Model for Future Workplaces
This project represents a significant shift towards dynamic and flexible office environments that prioritize user experience and interaction. Wet Beast Office is a model for future workplace designs, illustrating how spaces can be crafted to inspire, connect, and evolve with the people who use them.



The Wet Beast Office by Studioninedots stands as a pioneering example of dynamic office design, offering a fresh perspective on how workspaces can be conceived to enhance creativity, community, and adaptability. Through its innovative use of space and design elements, it sets a new benchmark for offices that not only serve functional needs but also contribute to the broader architectural and social fabric of their surroundings.




All Photographs are the work of Maarten Willemstein
Popular Articles
Popular articles from the community
The Ken Roberts Memorial Delineation Competition (Krob)
As the most senior architectural drawing competition currently in operation anywhere in the world, it draws hundreds of entries each year, awarding the very best submissions in a series of medium-based categories.
An Miên Lumière Cafe by xưởng xép, Ho Chi Minh City, Vietnam
An industrial-inspired café where layered steel and warm light create a dynamic, immersive environment shaped by reflection, depth, and perception.
A Contemporary Take on Iranian Residential Architecture
A modern interior design in Mashhad that reinterprets brick, light, and spatial flow to create a warm, contemporary residential architecture.
Louis Malle Cinema: A Limestone Cultural Landmark Revitalizing Community Life in Prayssac
Limestone cinema extension with public forecourt, blending heritage and modern design to create flexible cultural spaces and strengthen community interaction.
Similar Reads
You might also enjoy these articles
The Ken Roberts Memorial Delineation Competition (Krob)
As the most senior architectural drawing competition currently in operation anywhere in the world, it draws hundreds of entries each year, awarding the very best submissions in a series of medium-based categories.
Waterfront Redevelopment and Urban Revitalization in Mumbai: Forging a New Dawn for Darukhana
A transformative waterfront redevelopment project reimagining Darukhana’s shipbreaking heritage into an inclusive urban future.
OUT-OF-MAP: A Call for Postcards on Feminist Narratives of Public Space
Rhizoma Design and Research Lab invites artists, designers, architects, researchers, and students to reflect on how feminist perspectives can reshape public space. Selected works will be exhibited in Barcelona, October 2026. Submissions open until 15 April 2026.
Documentation Work on Buddhist Wooden Temple
Architectural syncretism and cultural hybridity: A comparative study of the Buddhist temples in Chattogram Hill tracks
Explore Architecture Competitions
Discover active competitions in this discipline
The International Standard for Design Portfolios
The Global Benchmark for Architecture Dissertation Awards
The Global Benchmark for Graduation Excellence
Challenge to reimagine the Iron Throne
Comments (0)
Please login or sign up to add comments
No comments yet. Be the first to comment!