Estonian Pavilion 2025: A Bold Statement on Architecture and Energy-Efficient Renovation
The Estonian Pavilion 2025 critiques insulation-led renovations, urging energy-efficient architecture that embraces spatial, social, and cultural depth.
Let Me Warm You: Rethinking Renovation Through Spatial and Social Dialogue
At the 19th International Architecture Exhibition of La Biennale di Venezia 2025, the Estonian Pavilion takes a radical, thought-provoking stance on one of the most urgent architectural topics of our time: architecture and energy-efficient renovation. Titled Let Me Warm You, the pavilion is curated by architects Keiti Lige, Elina Liiva, and Helena Männa, and supported by Estonia’s Ministry of Culture. Set within a Venetian palazzetto along the Riva dei Sette Martiri, the installation boldly asks: Are insulation-led renovations a meaningful architectural act or a bureaucratic necessity to meet energy directives?




Confronting European Renovation Policies Through Architectural Expression
The pavilion’s core intervention is deceptively simple yet visually and conceptually powerful. The architects clad the historic façade of a Venetian building with insulation panels—the same materials used in Estonia’s mass housing renovations. This gesture challenges the viewer to reconcile the ornate backdrop of Venice with the stark utilitarianism of climate policy-driven upgrades.



This deliberate clash emphasizes how in Estonia, and across much of Europe, Soviet-era housing stock is being transformed en masse into more energy-efficient dwellings, often with little architectural oversight. In Estonia alone, the government has pledged to bring all apartment buildings constructed before 2000 up to at least energy class C by 2050. The sheer scale of this ambition raises important questions: are we truly elevating the quality of life, or just patching up old systems with technical fixes?




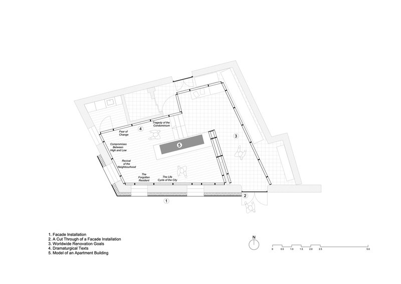
Architecture as a Social and Spatial Dialogue
On the ground floor of the building, a more intimate layer of the project unfolds. A room wrapped in plastic film becomes a theatrical exhibition space, drawing attention to the invisible social negotiations that underlie every renovation. In countries like Estonia, where collective ownership structures dominate, renovation decisions are heavily influenced by residents' personal finances, anxieties, and compromises.



The centerpiece of this space is a model of a Soviet apartment block, dramatized through exaggerated architectural features and scripted dialogues. These scenes portray the tension between technical solutions and emotional realities—how fear of displacement, nostalgia, or apathy can all shape architectural outcomes. It becomes clear that energy efficiency, while essential, is only one layer in a complex web of human-centered renovation.




Collective Intelligence and the Role of the Architect
In harmony with the overall theme of the Biennale—"Intelligens. Naturale. Artificiale. Collettiva." curated by Carlo Ratti—the Estonian Pavilion examines what happens when architectural thinking is sidelined. Renovation projects are frequently resident-led or economically driven, often without meaningful design input. The result is an architectural landscape shaped not by vision but by urgency.



Commissioner Johanna Jõekalda, advisor on architecture and design at Estonia's Ministry of Culture, emphasizes that insulation must not become a stand-in for genuine spatial renewal. The pavilion makes the case that architects need to reclaim their role in shaping collective housing environments—not just to meet energy benchmarks, but to ensure people live in spatially generous, emotionally resonant, and culturally sensitive homes.







A Provocation for Europe’s Climate Transition
As Europe races toward climate neutrality, Let Me Warm You warns against over-simplified solutions. Insulation is a vital tool in the architectural response to climate change, but it must be wielded with care, nuance, and a deep understanding of lived experience. Through its Venice intervention, the Estonian Pavilion becomes more than an exhibit—it is a manifesto for responsible, people-first renovation in a changing world.





All Photographs are works of Joosep Kivimäe
Popular Articles
Popular articles from the community
boq architekti Fits a Gabled Family House onto a Tiny Moravian Hillside Plot with No Room for a Garden
A 115 square meter home in South Moravia trades a garden for a rooftop terrace and a fully glazed facade facing the village below.
Biophilic Architecture and Regenerative Stadium Design: Biophilia Lagos by Rachel George
A regenerative stadium in Lagos transforms landfill into a living ecosystem through biophilic architecture, waste reuse, and environmental healing.
20 Most Popular Furniture Design Projects of 2025
Modular street systems, parametric benches, and insect hotels: the furniture design projects that captivated architects on uni.xyz in 2025.
BICA Arquitectos Buries a Coastal Home in a Man-Made Dune on Portugal's Tróia Peninsula
A 300-square-meter house of timber, sand mortar, and travertine dissolves into the dune landscape it helped regenerate on the Alentejo coast.
Similar Reads
You might also enjoy these articles
Bamboo Housing Challenge 2026: Design Affordable, Sustainable Homes Using Bamboo
An international design competition by Bamboo U and IBUKU inviting architects and designers to reimagine affordable housing using bamboo — with the winning design built full-scale in Bali.
Computational Design & Education: Beegraphy Design Awards Introduces 7th Category (Featuring Jiyun's Innovative Approach)
Dive into Beegraphy’s 7th Design Awards category, where computational design meets education to create immersive, interactive learning tools, inspired by Jiyun’s work.
From Parametric Lighting to Urban Furniture: Join the 2nd Workshop in Beegraphy’s Computational Design Series
Dive into Cutting-Edge Design Techniques and Practical Applications with Industry Experts
Introducing Sphere by UNI: Pioneering a New Era in AEC Industry
Unlocking Global Potential with BIM and Agile Management
Explore Architecture Competitions
Discover active competitions in this discipline
The International Standard for Design Portfolios
The Global Benchmark for Architecture Dissertation Awards
The Global Benchmark for Graduation Excellence
Challenge to reimagine the Iron Throne
Comments (0)
Please login or sign up to add comments
No comments yet. Be the first to comment!