Exploring Modern Architectural Design at J.M.C. House by Atelier d'Arquitectura Lopes da Costa
This article explores the J.M.C. House’s modern architectural design, focusing on space utilization, integration with nature, and innovative layout.
J.M.C. House, designed by Atelier d'Arquitectura Lopes da Costa, stands as a paragon of modern architectural design. Located in Escapães, Portugal, this structure exemplifies how contemporary architecture can respond innovatively to challenging land contours and local environmental conditions.





Design Response to Natural Landscape
Unique Site Challenges
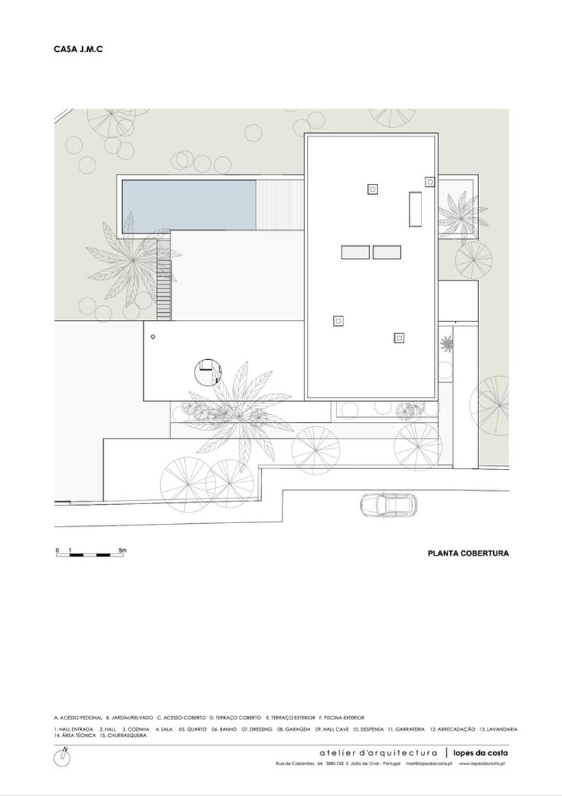
The house is strategically placed on a triangular plot with a significant slope. This geographical feature dictated the home's unique shape and volume, highlighting how modern architectural design seamlessly integrates with natural landscapes.





Efficient Use of Space
By positioning the construction on the highest level of the east side and opening mainly to the west, the design utilizes natural light optimally while offering expansive views. The building spans three floors, which cascade down the slope, demonstrating effective land use that is both aesthetic and functional.






Architectural Layout and Features
Ground Floor Dynamics
On the ground floor, the layout includes a living room, dining area, kitchen, a bedroom that doubles as an office, and a bathroom. These areas are designed to open towards the west, extending into a terrace with a swimming pool, thus blurring the lines between indoor and outdoor spaces.





Integration with Outdoor Elements
Adjacent to the kitchen, a covered patio includes an outdoor bathroom and a barbecue area, further enhancing the living experience by merging the interior with the exterior.



Connectivity Through Design
Vertical and Horizontal Circulation
A centrally located staircase connects all three floors, creating a fluid movement throughout the house. This feature not only provides practical benefits but also contributes to the open, airy feel of the interior.






Private and Common Spaces
The first floor houses three bedroom suites along a corridor that overlooks the ground floor’s double-height ceiling, offering a sense of spaciousness and interconnectedness among the living spaces.


Basement and Utility Spaces
Functional Areas
The basement is designed with utility in mind, containing a garage, pantry, laundry room, and a multipurpose room. These areas open onto an east-facing patio, providing light and a sense of openness rarely seen in subterranean levels.





Exterior Design and Privacy
Strategic Placement
The rear of the house features a swimming pool that not only complements the western garden but also ensures privacy from the surrounding areas. The careful placement of windows and terraces maximizes solar exposure while maintaining seclusion, showcasing the thoughtful consideration of modern architectural design.








The Essence of Modern Architecture
The J.M.C. House by Atelier d'Arquitectura Lopes da Costa exemplifies modern architectural design through its thoughtful site responsiveness, innovative use of space, and integration of indoor and outdoor environments. This project serves as an inspiration for architects and designers looking to blend functionality with aesthetic appeal in residential architecture.









All photographs are work of Ivo Tavares Studio
Popular Articles
Popular articles from the community
The Ken Roberts Memorial Delineation Competition (Krob)
As the most senior architectural drawing competition currently in operation anywhere in the world, it draws hundreds of entries each year, awarding the very best submissions in a series of medium-based categories.
Atelier Macri Concept Store Interior Design by CASE-REAL
Atelier Macri store features a "ko" counter, walnut wood details, cork displays, blending retail, gallery, and seamless customer experiences.
A Contemporary Take on Iranian Residential Architecture
A modern interior design in Mashhad that reinterprets brick, light, and spatial flow to create a warm, contemporary residential architecture.
Solar Steam: A Climate-Responsive Architecture That Redefines the Monument
A climate-responsive memorial architecture that transforms heat, decay, and time into a living system reflecting humanity’s ecological impact.
Similar Reads
You might also enjoy these articles
Bamboo Housing Challenge 2026: Design Affordable, Sustainable Homes Using Bamboo
An international design competition by Bamboo U and IBUKU inviting architects and designers to reimagine affordable housing using bamboo — with the winning design built full-scale in Bali.
Computational Design & Education: Beegraphy Design Awards Introduces 7th Category (Featuring Jiyun's Innovative Approach)
Dive into Beegraphy’s 7th Design Awards category, where computational design meets education to create immersive, interactive learning tools, inspired by Jiyun’s work.
From Parametric Lighting to Urban Furniture: Join the 2nd Workshop in Beegraphy’s Computational Design Series
Dive into Cutting-Edge Design Techniques and Practical Applications with Industry Experts
Introducing Sphere by UNI: Pioneering a New Era in AEC Industry
Unlocking Global Potential with BIM and Agile Management
Explore Architecture Competitions
Discover active competitions in this discipline
The International Standard for Design Portfolios
The Global Benchmark for Architecture Dissertation Awards
The Global Benchmark for Graduation Excellence
Challenge to reimagine the Iron Throne
Comments (0)
Please login or sign up to add comments
No comments yet. Be the first to comment!