FLOS Amsterdam Showroom: A Harmonious Fusion of Light and Space
FLOS Amsterdam Showroom blends light, space, and materiality, creating a multifunctional interior with steel elements and dynamic lighting design.
A Visionary Approach to Lighting Design
Since its founding in 1962, FLOS has been a global leader in innovative lighting solutions, seamlessly blending craftsmanship, technology, and artistic vision. The brand’s latest venture—the FLOS Amsterdam Showroom—epitomizes this philosophy. Designed by ARQUITECTURA-G in collaboration with Sam Chermayeff Office, the showroom redefines the concept of interior lighting by transforming surfaces into dynamic, light-responsive elements.

A Striking Location in an Industrial Setting
Situated outside Amsterdam’s bustling city center, the showroom occupies a third-floor space overlooking a vast water expanse. This unexpected juxtaposition—an ethereal, refined interior within an industrial environment—adds to the intrigue of the design. Visitors are welcomed into an open-plan showroom where light, structure, and materiality converge in a poetic dialogue.

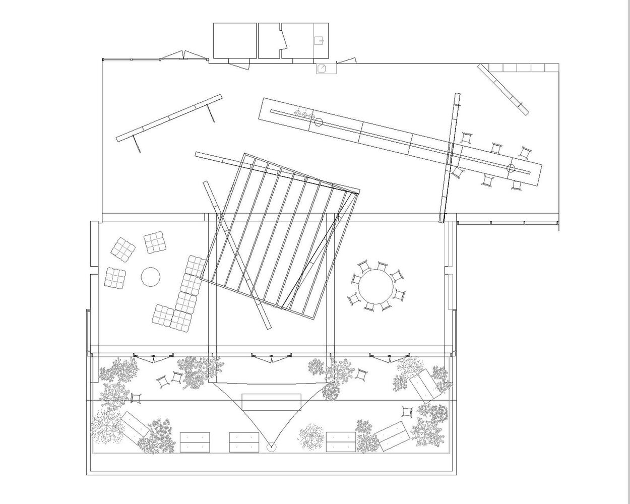
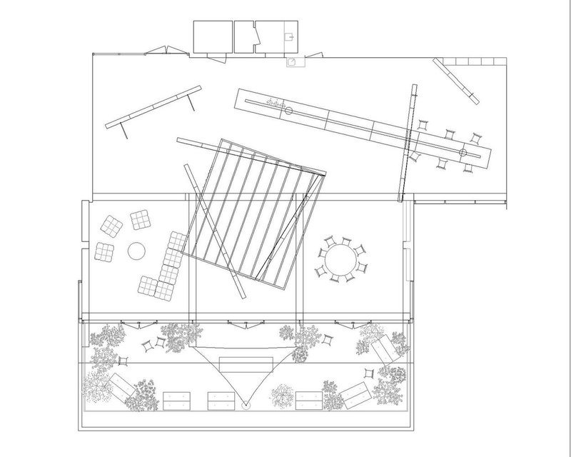
A Multifunctional and Immersive Space
Far more than a traditional showroom, the space embodies a hybrid function, merging domestic and professional environments. The layout fosters an organic flow, featuring carefully delineated zones that serve as a workspace, meeting area, kitchen, and living room. A striking eleven-meter table, doubling as a cooktop and communal workstation, anchors the interior, encouraging interaction and collaboration.

Architectural Innovation: The Steel Envelope
The showroom’s defining feature is its minimalist yet highly technical steel interior, composed of 6mm-thick welded steel plates. This material choice results in a delicate balance—both structurally solid and visually weightless. The steel subtly bends under its own weight, leaning against the raw concrete of the existing structure. This interplay of materials creates a unique spatial experience, where light and reflection enhance the sense of depth and movement.

Light as the Protagonist
The entire showroom is conceived as a canvas for FLOS lighting solutions, with surfaces meticulously designed to capture, reflect, and manipulate light. The satin-white steel backdrop amplifies the visual impact of each luminaire, fostering an evolving interplay between artificial illumination and natural daylight. The space’s fluidity allows for flexible arrangements of FLOS products, ensuring a constantly evolving display that highlights the brand’s commitment to innovation.

A Testament to Contemporary Lighting Design
The FLOS Amsterdam Showroom stands as a testament to contemporary architectural ingenuity and lighting design. By seamlessly integrating form, function, and materiality, ARQUITECTURA-G and Sam Chermayeff Office have created a space that is both aesthetic and experiential. This project underscores how lighting can transform not just interiors but also the way we perceive and interact with space.


All photographs are works of Maxime Delvaux
Popular Articles
Popular articles from the community
Fifth NRE Jazz Club – De Bever Architecten: Eindhoven’s Revitalized Cultural Hub
Historic gas factory transformed into Fifth NRE Jazz Club blending modern sustainability, jazz culture, dining, and heritage architecture seamlessly.
Solar Steam: A Climate-Responsive Architecture That Redefines the Monument
A climate-responsive memorial architecture that transforms heat, decay, and time into a living system reflecting humanity’s ecological impact.
Gads Hill Early Learning Center by JGMA: Adaptive Reuse Shaping Community-Focused Educational Architecture
Adaptive reuse transforms fragmented structure into vibrant early learning center with playful façade, natural light, and community-focused sustainable design.
The Ken Roberts Memorial Delineation Competition (Krob)
As the most senior architectural drawing competition currently in operation anywhere in the world, it draws hundreds of entries each year, awarding the very best submissions in a series of medium-based categories.
Similar Reads
You might also enjoy these articles
The Ken Roberts Memorial Delineation Competition (Krob)
As the most senior architectural drawing competition currently in operation anywhere in the world, it draws hundreds of entries each year, awarding the very best submissions in a series of medium-based categories.
Waterfront Redevelopment and Urban Revitalization in Mumbai: Forging a New Dawn for Darukhana
A transformative waterfront redevelopment project reimagining Darukhana’s shipbreaking heritage into an inclusive urban future.
OUT-OF-MAP: A Call for Postcards on Feminist Narratives of Public Space
Rhizoma Design and Research Lab invites artists, designers, architects, researchers, and students to reflect on how feminist perspectives can reshape public space. Selected works will be exhibited in Barcelona, October 2026. Submissions open until 15 April 2026.
Documentation Work on Buddhist Wooden Temple
Architectural syncretism and cultural hybridity: A comparative study of the Buddhist temples in Chattogram Hill tracks
Explore Architecture Competitions
Discover active competitions in this discipline
The International Standard for Design Portfolios
The Global Benchmark for Architecture Dissertation Awards
The Global Benchmark for Graduation Excellence
Challenge to reimagine the Iron Throne
Comments (0)
Please login or sign up to add comments
No comments yet. Be the first to comment!