GAK House: A Green Roof Luxury House by Bernardes Arquitetura in Porto Feliz
A secluded Brazilian residence by Bernardes Arquitetura, GAK House blends a green roof, luxury design, and nature-integrated sustainable living.
Green Roof Luxury House
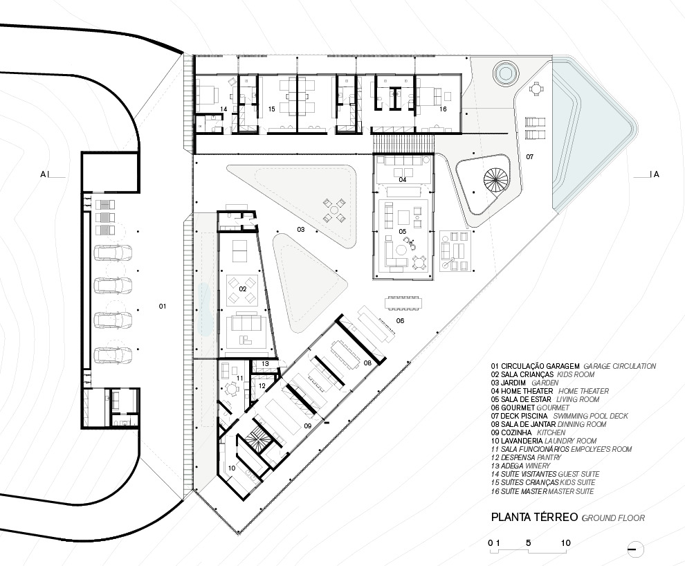
The GAK House, designed by Bernardes Arquitetura, is an architectural masterpiece in Porto Feliz, Brazil, completed in 2023. Spanning 2,988 m², the residence embodies the concept of a green roof luxury house, seamlessly blending modern design with nature. Conceived as a meeting and retreat space for a family, the project prioritizes discretion, landscape integration, and sustainable living, remaining invisible from the street while opening dramatically to its surroundings.
Integration with the Landscape
From its earliest sketches, the GAK House was envisioned as a structure deeply connected to its natural setting. The expansive green roof is a direct extension of the existing topography, visually merging the residence with the surrounding terrain. Below this green expanse, the structure projects like a vast balcony, offering uninterrupted views of the lush Brazilian landscape. The layout is organized into interconnected pavilions positioned around an internal garden—forming the heart of the home and fostering a sense of openness and connection to nature.


Spatial Design and Functionality
The residence’s living and leisure areas are surrounded by movable glass panels, ensuring complete visual and spatial integration with the central garden. This transparency promotes fluid transitions between interior and exterior spaces, enhancing the shared living experience. The private bedroom wing is subtly separated from the garden by a vertical wooden screen, providing privacy without sacrificing views. Balconies in this wing extend toward the external landscape, balancing seclusion with openness.



Sustainable Structural Solutions
Supporting the large green roof required a robust mixed structure of concrete and steel. This roof not only conceals the house from street view but also contributes to environmental performance. Vegetation atop the roof creates a microclimate that reduces cooling needs and minimizes energy waste. Cross ventilation is achieved through strategically placed openings, while sliding glass panels enable complete integration with the outdoors. Natural light floods the interiors, striking a balance between panoramic views and thermal comfort. Additionally, solar panels installed on the property power the home’s electrical systems, underscoring the project’s commitment to sustainable living.



Material Palette and Interior Warmth
In contrast to the boldness of exposed concrete, the interiors feature warm, organic elements. Wooden floors, ceilings, and custom-designed furniture infuse the spaces with natural charm and coziness. Warm-toned fabrics and rugs further enhance the inviting atmosphere. Many interior pieces were specifically crafted for the GAK House by Bernardes Arquitetura, complemented by works from renowned Brazilian designers such as Carlos Motta, Sérgio Rodrigues, Jean Gillon, and Joaquim Tenreiro. This blend of bespoke and iconic design pieces adds cultural richness and a distinctly Brazilian character to the home.



A Model of Green Roof Luxury Living
The GAK House exemplifies how a green roof luxury house can combine modern architecture, environmental responsibility, and comfort. It maintains a low profile from the street while offering expansive openness to nature, creating a harmonious living environment that is both private and connected. Through its thoughtful spatial organization, structural innovation, and sustainable features, it stands as a benchmark for contemporary residential architecture in Brazil.




All the photographs are works of Fernando Guerra | FG+SG