Garden Studio Architecture in London: KIM Oflage Studio by Delve Architects
A compact garden studio in London offering a colorful, multifunctional space for work, rest, and family life by Delve Architects.
A Multifunctional Garden Retreat That Blends Nature, Color, and Creative Living
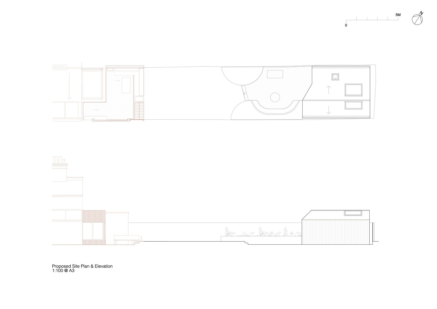
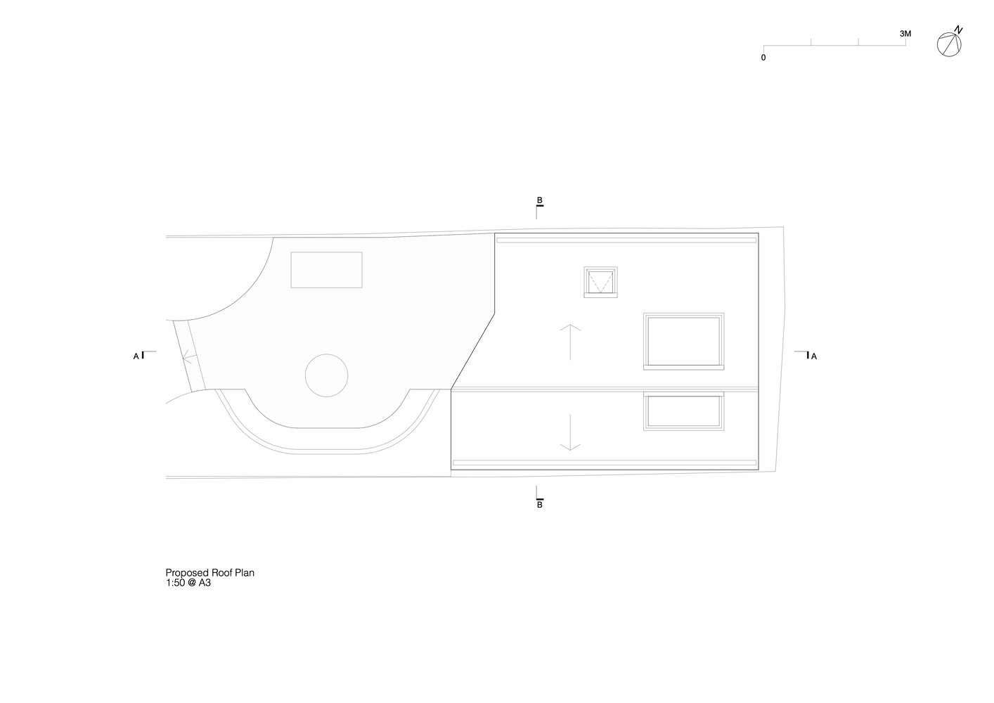
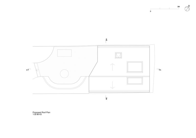
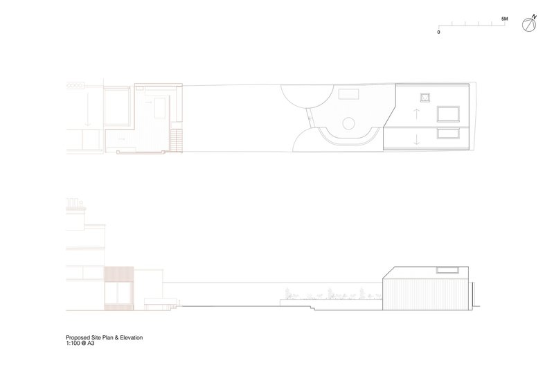
In the heart of South London, Delve Architects has created an inspiring example of garden studio architecture with their project “KIM Oflage Studio.” Designed for a growing family needing extra space without relocating, this compact yet flexible 25-square-meter studio showcases how thoughtful design can unlock the potential of overlooked garden corners.


Positioned at the rear of a Victorian terrace in Nunhead, the studio was born from a collaboration between the architects and returning clients Kit and Imogen, who had previously worked with Delve on a timber-clad extension to their home in 2018. As their space requirements evolved, the decision to remain in place led them to reimagine the underused end of their garden as a vibrant, multi-use retreat.


Designing for Life, Work, and Play
The KIM Oflage Studio responds to a diverse set of needs—guest accommodation, home office, yoga space, hobby room, and storage—without compromising on comfort or aesthetics. The design mirrors the previous rear extension in form while introducing green glazed tiles on the facade, allowing the studio to camouflage itself within the surrounding mature planting. This blend of playfulness and discretion gave birth to the project’s name, “KIM-oflage.”



Internally, the studio is divided into zones using subtle shifts in material and color. A sleeping area, workspace, kitchenette, and a casual seating zone are all accommodated in the compact footprint. Wide doors open directly onto a new patio, establishing a strong connection between the interior and the lush outdoor environment.



Creative Planning in a Constrained Site
Despite a narrow garden and strict planning rules, Delve Architects maximized the usable space under permitted development guidelines. The design includes a pitched roof to reduce overshadowing and maintain good relations with neighbors. The structure is carefully shaped to allow natural light to flood the interior, especially in the evening when the setting sun reflects off a pink lime wash finish in the seating zone.


These thoughtful touches do more than provide light—they create atmosphere. The interior’s soft material palette and colorful accents give the small space a sense of openness and character far beyond its modest scale.

Seamless Integration with Garden and Home
One of the project’s most remarkable aspects is its ability to harmonize with both the garden and the existing architecture of the main house. The green tiling allows the studio to feel like a natural extension of the outdoor environment, while its form subtly echoes the original rear addition by Delve, creating visual continuity.


Functional needs were also carefully considered. Garden storage is seamlessly integrated via a hidden flush door, ensuring utility doesn’t disrupt the studio’s aesthetic clarity. This dual-purpose approach underscores the project’s commitment to practicality and elegance.


A Model for Contemporary Garden Studio Architecture
KIM Oflage Studio is a compelling representation of garden studio architecture done right. It demonstrates how small, adaptive spaces can meet modern family needs while enhancing daily life. Delve Architects, working closely with their clients, pushed design boundaries and planning regulations to create a vibrant space that is as personal as it is practical.



More than just an outbuilding, this studio becomes a sanctuary—offering space for creativity, rest, and connection to the outdoors. In today’s evolving domestic landscape, where flexibility and wellness are paramount, this project sets a high standard for what garden architecture can achieve.


All Photographs are works of Fred Howarth