Guizhou Media Vocational and Technical School Library by West-line Studio: A Monumental Work of Modern Library Architecture in China
A monumental red-sand library in Guizhou merges tradition and innovation, redefining modern library architecture for China’s academic future.
Rooted in History, Reimagined for the Future
Nestled in Qingzhen, an emerging educational district west of Guiyang in China’s Guizhou Province, the new Library & Information Center at the Guizhou Media Vocational and Technical School is a bold reinterpretation of modern library architecture. Designed by West-line Studio, this five-story building transcends its utilitarian function to become a cultural and spiritual landmark, drawing from the site’s topography, material heritage, and educational legacy. Its monumental yet humane design references the region's religious architecture while anchoring itself firmly in contemporary design language.




A South-North Journey of Openness and Enclosure
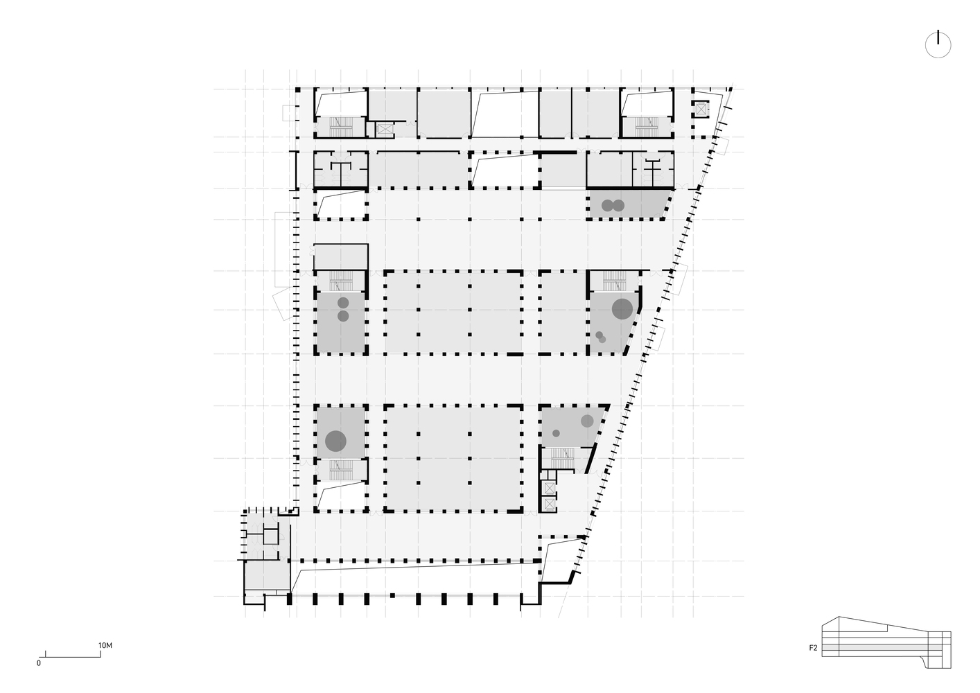
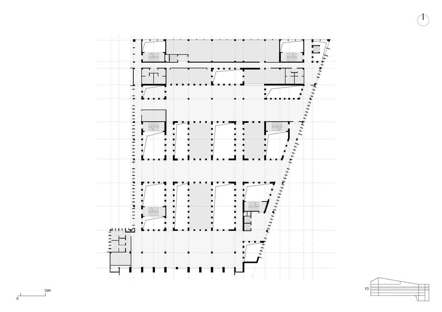
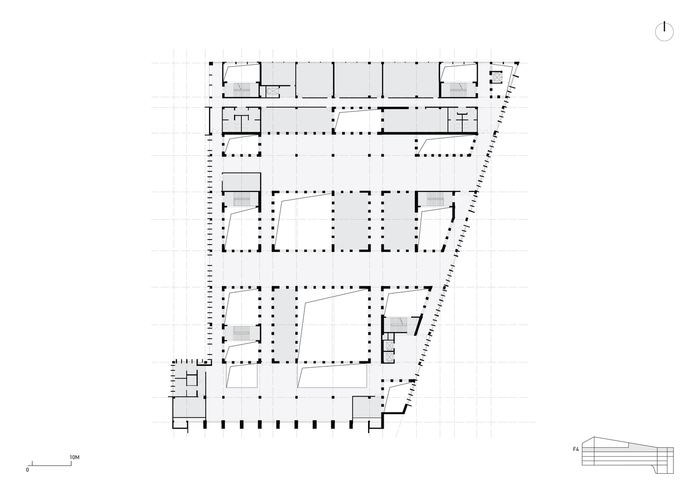
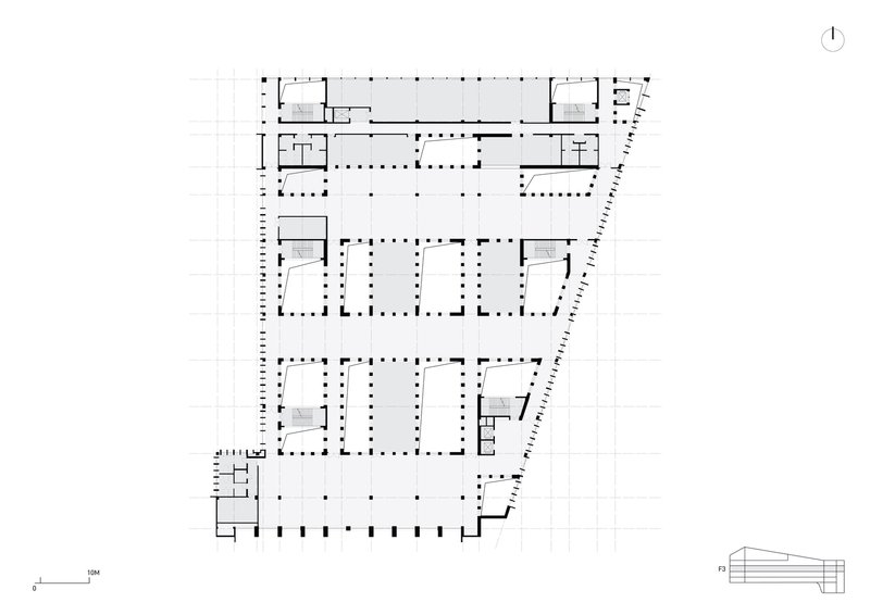
The library spans 18,876 m² and is designed along a south-north axis that follows the site’s natural slope. This linear arrangement organizes the program into two primary volumes: the southern volume houses the student library, acting as a visual threshold from the open campus; the northern volume encloses courtyards and hosts academic studios and administrative offices. The architectural narrative moves from openness to enclosure, echoing a journey through space and knowledge.



This progression is both spatial and symbolic—mirroring the intellectual path of students as they transition from public life to concentrated study. It is also a careful manipulation of landform, transforming the slope into an experiential design strategy.




A Tectonic Expression of Place
The façade is clad in a unique synthetic material infused with red sand—locally sourced and evocative of the iron-rich weathered rocks found on Guizhou's hillsides. This warm, earthen hue connects the library to its geological context, grounding the structure while giving it a sculptural solidity. The material choice is both cost-effective and expressive, merging practicality with a sense of permanence and identity.



Rising from the land like a red cliff carved by time, rain, and wind, the building positions itself not just as architecture, but as an extension of the landscape—a quiet assertion of modern library architecture as rooted yet visionary.



Interior as Cathedral: Light, Geometry, and Atmosphere
While the exterior exudes grounded mass, the interiors open into a luminous, contemplative world. Here, light and space define the architectural experience. A matrix grid system, pierced by layered arches and vertical voids, shapes a sequence of airy volumes that blend monumentality with intimacy. These arched openings form rhythmic sightlines, often intersecting or enclosing interior spaces to create an ever-shifting perception of depth.



Perforated courtyards—an interpretation of the traditional “courtyard within courtyard” typology found in Guizhou mountain villages—bring natural light and ventilation deep into the building. This strategy not only echoes classical Chinese academies but elevates the building's performance through passive environmental control.




Sculpted Light and Media Heritage
Suspended skylights and light wells, descending from above at varied heights, create a soft theatrical glow across the reading areas and communal spaces. These sculptural elements diffuse daylight, enhancing concentration while lending the library a near-sacred ambience. By casting light at calculated angles, they introduce a dramatic tension into the architecture—an appropriate gesture for a campus focused on film and broadcasting education.



The resulting interior reads like a modern cathedral of knowledge, where light orchestrates mood and underscores the building’s cultural mission.



Architectural Continuity with Cultural Depth
More than a library, the building is a cultural artifact that merges traditional spatial thinking with contemporary design. West-line Studio’s sensitivity to regional history—particularly Qingzhen’s legacy of church-run schools—translates into a meditative, almost spiritual spatial sequence. At the same time, its structural clarity and expressive detailing make it a leading example of modern library architecture in Asia.



Through its grounded materials, layered geometries, and luminous interiors, the Guizhou Media School Library becomes a symbol of educational progress that remains deeply tied to its place, people, and past.


Popular Articles
Popular articles from the community
Split House: A Compact Urban Home Blending Privacy, Light, and Flexible Living in Japan
Compact Japanese home featuring DOMA space, flexible café potential, passive lighting, privacy zoning, and sustainable urban living design.
TGK Nirasaki Plant: A Smart Factory Blending Technology, Landscape, and Wellness
Smart factory in Japan blending IoT manufacturing, scenic trail design, natural ventilation, and landscape integration to enhance user experience and sustainability.
20 Most Popular Commercial Architecture Projects of 2025
From sustainable market concepts to heritage factories, the commercial buildings and proposals that drew the most attention on uni.xyz this year.
Alton Cliff House: A Harmonious Retreat by f2a Architecture in Lake Country, Canada
Alton Cliff House blends corten steel, prefabrication, and sustainable design, creating a luxurious, energy-efficient retreat perched on Canadian cliffs.
Similar Reads
You might also enjoy these articles
Bamboo Housing Challenge 2026: Design Affordable, Sustainable Homes Using Bamboo
An international design competition by Bamboo U and IBUKU inviting architects and designers to reimagine affordable housing using bamboo — with the winning design built full-scale in Bali.
Computational Design & Education: Beegraphy Design Awards Introduces 7th Category (Featuring Jiyun's Innovative Approach)
Dive into Beegraphy’s 7th Design Awards category, where computational design meets education to create immersive, interactive learning tools, inspired by Jiyun’s work.
From Parametric Lighting to Urban Furniture: Join the 2nd Workshop in Beegraphy’s Computational Design Series
Dive into Cutting-Edge Design Techniques and Practical Applications with Industry Experts
Explore Architecture Competitions
Discover active competitions in this discipline
The International Standard for Design Portfolios
The Global Benchmark for Architecture Dissertation Awards
The Global Benchmark for Graduation Excellence
Challenge to reimagine the Iron Throne
Comments (0)
Please login or sign up to add comments
No comments yet. Be the first to comment!