Haimen Agricultural Exhibition Hall is a one-stop shop for all your agricultural needs
See all the latest and greatest in agricultural technology!
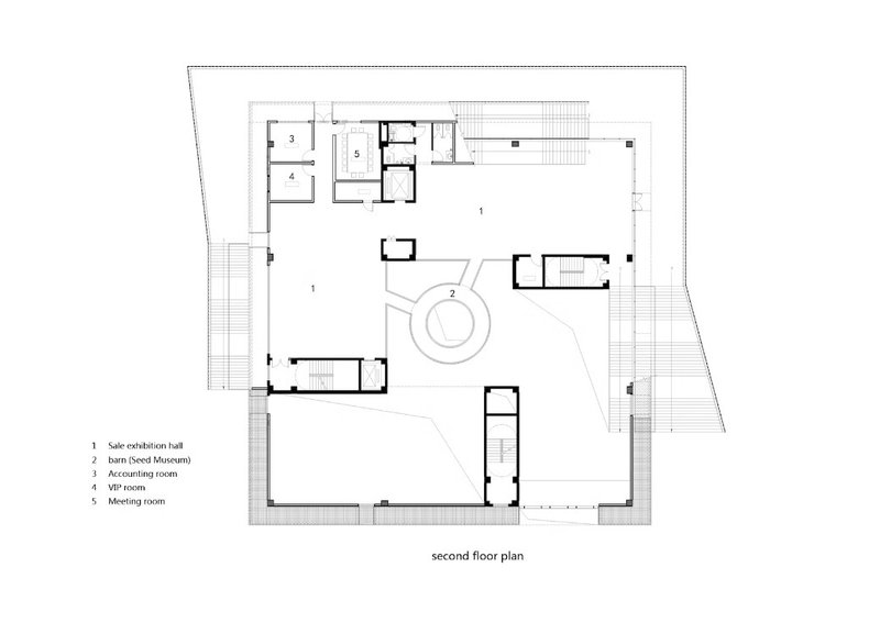
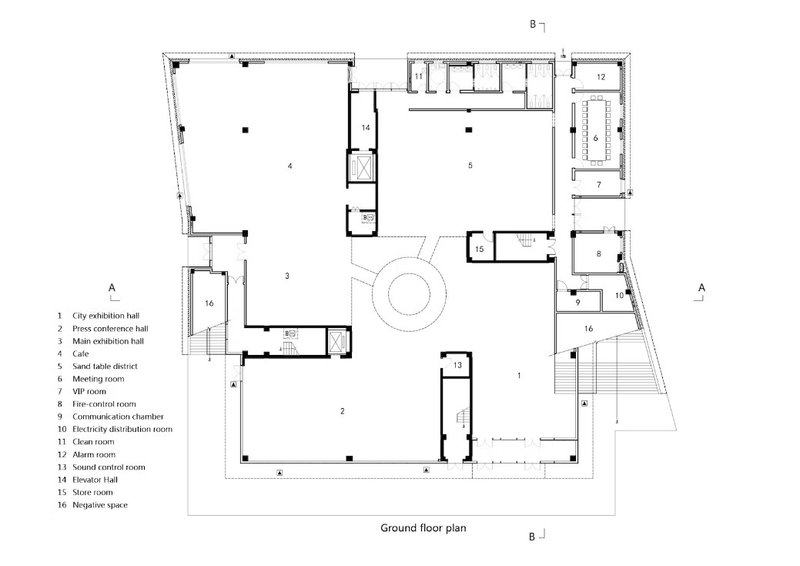
The architectural design of the agricultural exhibition hall is inspired by the barns of traditional Chinese agriculture. Its square shape with a central round silo echoes the legalist philosophy of "full granaries and orderly conduct", as well as the new era's emphasis on spiritual civilization.
The barn's footprint is maximized to create a skylight in the centre, providing natural ventilation and lighting.


The circular silo is a unique space with natural lighting and ventilation. As a seed Museum, it provides a place to display and communicate; The rotating open stairs connect the various functions in the vertical direction of the building. The visitors step up, just like stepping on a seed journey, and their desire for viewing and exploration is constantly stimulated.


The mortise and tenon structure of the silo dispels the divinity of the space with the colour and touch of old wood, making the barn warm and amiable.


The two sets of indoor and outdoor stairs provide a parallel viewing moving line that overlooks the pastoral scenery, the surrounding buildings, and the internal activities of the agricultural exhibition hall. The outer skin is made of UHPC material, which is low in porosity and has a warmth similar to jade. This material highlights the shape and lines of the building.


Haimen Agricultural Exhibition Hall Gallery










From a distance, it looks like it has sharp edges and corners, but upon closer inspection, you'll notice it's actually quite soft and fuzzy. The faint sense of permeability blurs the line between the building and its surroundings, creating a visual contrast with the glass curtain wall. This contrast vividly illustrates the relationship between enclosure and connection, closure and permeability.
References (1)
Popular Articles
Popular articles from the community
H&P Architects Stack a Vertical River of Brick and Greenery in Hanoi
A perforated terracotta tower in Dong Anh channels water, light, and air through eight staggered levels of domestic life.
20 Most Popular Furniture Design Projects of 2025
Modular street systems, parametric benches, and insect hotels: the furniture design projects that captivated architects on uni.xyz in 2025.
Studio Gram Unfurls a Concrete Curve Through an Adelaide Queen Anne Villa
In Rose Park, a billowing concrete threshold stitches a century-old house to a sun-chasing pavilion organized around an existing pool.
Paco Oria Estudio Rebuilds a 1949 Valencian Town House Around Timber, Terracotta, and a New Interior Patio
In Godella, Spain, a semi-detached house from the postwar era is stripped to its party walls and rebuilt with wood and ceramics.
Similar Reads
You might also enjoy these articles
Rede Arquitetos Builds an Open-Air School in Fortaleza That Doubles as a Neighborhood Living Room
Educar II SESC-CE folds sports, dance, and community gathering into a courtyard campus wrapped in mesh and tropical color.
NZ10 Apartment by auba studio: Adaptive Reuse in Palma de Mallorca
Adaptive reuse apartment transforms bakery into light-filled home with patios, privacy layers, and wood interiors enhancing urban living experience.
TGK Nirasaki Plant: A Smart Factory Blending Technology, Landscape, and Wellness
Smart factory in Japan blending IoT manufacturing, scenic trail design, natural ventilation, and landscape integration to enhance user experience and sustainability.
House in Macieira by Nelson Resende Arquitecto: A Sensitive Transformation Rooted in Context and Materiality
Adaptive reuse house blending wood, glass, and landscape, transforming traditional Portuguese architecture into a warm, open, contemporary living environment.
Explore Architecture Competitions
Discover active competitions in this discipline
The International Standard for Design Portfolios
The Global Benchmark for Architecture Dissertation Awards
The Global Benchmark for Graduation Excellence
Challenge to design an urban locus of culture and heritage
Comments (0)
Please login or sign up to add comments
No comments yet. Be the first to comment!