Handelszentrum 16: A Case Study in Adaptive Reuse in Architecture by smartvoll
Discover Handelszentrum 16, a pioneering adaptive reuse project by smartvoll that transforms old warehouses into a vibrant commercial hub in Austria.
Adaptive reuse in architecture involves repurposing buildings for viable new uses and modern functions without destroying their inherent cultural or historical value. Handelszentrum 16, located in Bergheim, Austria, exemplifies this approach by transforming a series of old industrial warehouses into a thriving commercial hub.





Historical Context and Project Overview
Background of the Building
Originally constructed in the 1970s for the mail order company Universal Versand, the Handelszentrum 16 building expanded over the decades in response to business growth. As the digital age transformed shopping behaviour, these physical spaces became obsolete. Smartvoll Architekten, alongside their client Marco Sillaber, faced the challenge of reimagining these spaces while preserving the original structures.





Project Vision and Execution
The vision for Handelszentrum 16 was clear: convert the outdated industrial space into a vibrant commercial area without demolishing the existing structures. This approach not only preserved significant amounts of building materials but also maintained the historical essence of the site.





Design Strategy and Architectural Solutions
Maximizing Space and Light
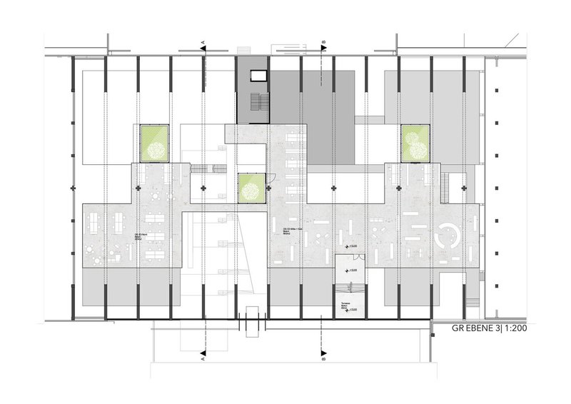
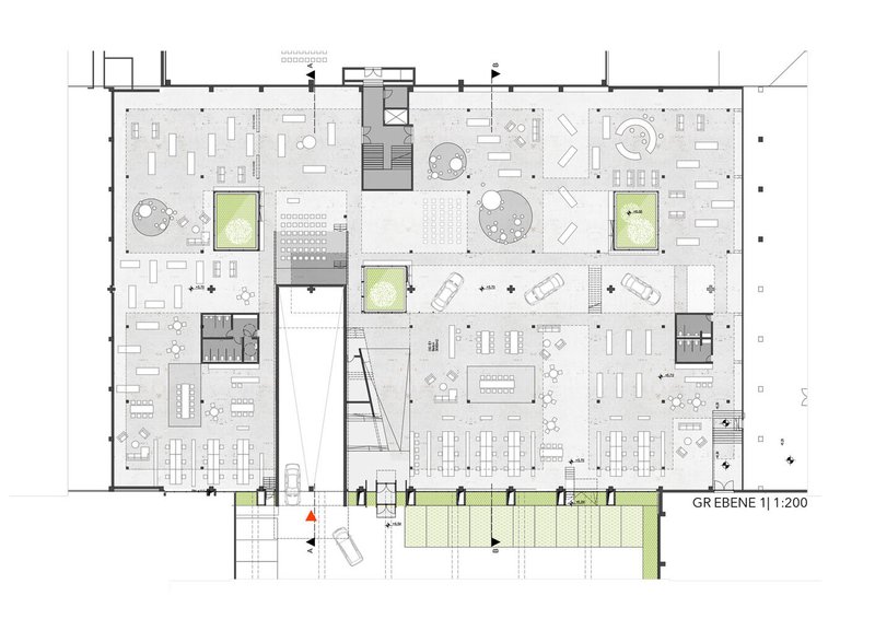
One of the primary architectural challenges was the building’s deep hall and small façade areas, which initially created a dark and unwelcoming interior. Smartvoll’s solution was to introduce large atriums cutting through the existing roof to bring natural light deep into the structure, creating an inviting and dynamic space for businesses and visitors.






Innovative Use of Existing Structures
Instead of constructing traditional floors, the space inside Handelszentrum 16 was filled with platforms, allowing for flexible use and vertical communication among occupants. This setup provided equal access to the new atriums, enhancing the communal feel of the work environment.





Sustainable Practices and Community Impact
Environmental Considerations
The adaptive reuse of Handelszentrum 16 significantly reduced the potential environmental impact that would have resulted from demolishing the old warehouses and constructing new buildings. By retaining the original concrete structures, the project avoided unnecessary CO2 emissions associated with transporting and recycling old materials and constructing new ones.








Economic and Social Benefits
Transforming these old industrial halls into a modern commercial center has revitalized the area, attracting businesses and boosting local economy. This not only brought new life to Bergheim but also set a sustainable example for similar projects globally.



The Future of Adaptive Reuse
Handelszentrum 16 by smartvoll is more than just a renovation; it’s a forward-thinking approach to modern architecture that respects the past while looking to the future. This project demonstrates the vast potential of adaptive reuse in architecture, providing valuable lessons in sustainability, community engagement, and architectural innovation.



All the photographs are work of Dimitar Gamizov
Popular Articles
Popular articles from the community
MAVA Design Turns a Column-Riddled Shell into a Serene Hair Extension Salon in Kyiv
Inside a former motorcycle factory campus, a 110 square metre beauty atelier treats structural obstacles as spatial anchors.
Sam Crawford Architects Anchors a Sports Pavilion in 10,000 Years of Indigenous History
A V-shaped brick and steel pavilion in southwest Sydney translates ancient clay ovens and gathering traditions into civic architecture.
20 Most Popular Furniture Design Projects of 2025
Modular street systems, parametric benches, and insect hotels: the furniture design projects that captivated architects on uni.xyz in 2025.
Pedevilla Architects Disguise a Five-Story School as a Tyrolean Farmhouse in Kössen
A dark-clad education center in rural Austria borrows the robust calm of Alpine vernacular to anchor a village's northern edge.
Similar Reads
You might also enjoy these articles
Olio Towers: A Mid-Rise for Performers That Fuses Housing, Rehearsal, and Stage
Located blocks from Houston's Theater District, this modular tower stacks living units around a central performance atrium.
Oasis: Modular Green Housing Carved into Dhaka's Urban Fabric
A shortlisted Plugin Housing entry reclaims unauthorized settlements in Dhaka with stepped concrete volumes, green roofs, and ventilation-driven design.
Black Hole: A Floating Megastructure for the Post-Physical Era
Emiliano Mazzarotto envisions a spherical, self-scaling arena where e-sports, digital hotels, and holographic stadiums replace traditional public space.
Compact & Sustainable Living in Piraeus: A Four-Level Family Home Built Around Light and Air
A narrow townhouse in one of Greece's densest port cities uses a central atrium and passive strategies to house three generations under one roof.
Explore Architecture Competitions
Discover active competitions in this discipline
The International Standard for Design Portfolios
The Global Benchmark for Architecture Dissertation Awards
The Global Benchmark for Graduation Excellence
Challenge to reimagine the Iron Throne
Comments (0)
Please login or sign up to add comments
No comments yet. Be the first to comment!