Heroes Residence Island: A Landmark in Amsterdam by Arons & Gelauff Architecten
Heroes Residence Island features stepped terrace towers in Amsterdam, blending urban vibrancy and waterfront tranquility through sustainable design.
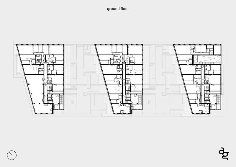
Heroes Residence Island, designed by Arons & Gelauff architecten, is an architectural marvel located on Amsterdam's newly developed Zeeburgereiland. The project features three standalone towers characterized by stepped terraces, expansive balconies, and a design approach that celebrates the surrounding environment. With its bold design and commitment to sustainability, Heroes Residence Island creates a harmonious balance between urban vibrancy and natural serenity.



Design Concept and Urban Context
The towers are situated in a unique location on Zeeburgereiland, nestled between the dynamic Urban Sports Zone and the tranquil IJ Lake waterfront. The architects capitalized on this duality by designing structures that engage with both the lively activity of the sports park and the serene beauty of the northern horizon. The towers increase in height as they approach the waterfront, with stepped terraces providing residents with panoramic views of the lake, the pastoral Waterland, and the vibrant sports zone.
The south-facing façades embrace the energy of the sports park, while the west-facing façades are angled to optimize exposure to the afternoon and evening sunlight. This careful orientation ensures that each resident can enjoy a choice of scenic views and ample natural light throughout the day.




Architectural Features and Materials
The towers’ façades are clad in light-colored brick, with aluminum window frames adorned with copper, bronze, or zinc accents. These metallic finishes create unique identities for each tower while drawing an elegant parallel to the gold, silver, and bronze of sporting accolades. Glass balustrades on each terrace enhance the sense of openness, allowing uninterrupted views of the surroundings.
Sustainability plays a key role in the design. Each balcony incorporates planters that add greenery to the structure and buffer water through an overflow spout system. This innovative approach ensures that the terraces not only serve as private outdoor spaces but also contribute to the ecological balance of the site.




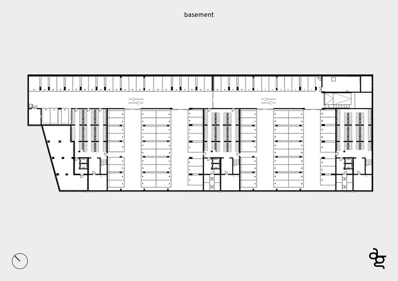
BIM Integration and Construction Excellence
The project’s seamless execution was made possible through the integration of Building Information Modeling (BIM). Close collaboration between the architects, developers, and contractors facilitated efficient coordination between design and construction, ensuring that every detail aligned with the project’s vision. BIM also allowed for meticulous planning of the stepped terraces, structural load distribution, and innovative drainage systems, resulting in a technically advanced and aesthetically striking development.





Aesthetic and Functional Balance
Heroes Residence Island exemplifies a thoughtful balance between aesthetic appeal and functionality. The stepped terraces, expansive balconies, and sustainable design elements create a living environment that enhances the quality of life for residents. Each tower is designed to integrate harmoniously with its surroundings, offering spaces that encourage connection with both the community and nature.









Heroes Residence Island is a standout project that demonstrates the potential of architecture to blend urban and natural elements seamlessly. The combination of stepped terraces, innovative water management, and stunning material finishes makes it a landmark that redefines residential living in Amsterdam. By prioritizing sustainability and visual harmony, Arons & Gelauff architecten have created a development that is both timeless and forward-thinking.



All Photographs are work of Luuk Kramer, Sebastian van Damme
Popular Articles
Popular articles from the community
Split House: A Compact Urban Home Blending Privacy, Light, and Flexible Living in Japan
Compact Japanese home featuring DOMA space, flexible café potential, passive lighting, privacy zoning, and sustainable urban living design.
Alton Cliff House: A Harmonious Retreat by f2a Architecture in Lake Country, Canada
Alton Cliff House blends corten steel, prefabrication, and sustainable design, creating a luxurious, energy-efficient retreat perched on Canadian cliffs.
Gads Hill Early Learning Center by JGMA: Adaptive Reuse Shaping Community-Focused Educational Architecture
Adaptive reuse transforms fragmented structure into vibrant early learning center with playful façade, natural light, and community-focused sustainable design.
Similar Reads
You might also enjoy these articles
Bamboo Housing Challenge 2026: Design Affordable, Sustainable Homes Using Bamboo
An international design competition by Bamboo U and IBUKU inviting architects and designers to reimagine affordable housing using bamboo — with the winning design built full-scale in Bali.
Computational Design & Education: Beegraphy Design Awards Introduces 7th Category (Featuring Jiyun's Innovative Approach)
Dive into Beegraphy’s 7th Design Awards category, where computational design meets education to create immersive, interactive learning tools, inspired by Jiyun’s work.
From Parametric Lighting to Urban Furniture: Join the 2nd Workshop in Beegraphy’s Computational Design Series
Dive into Cutting-Edge Design Techniques and Practical Applications with Industry Experts
Explore Architecture Competitions
Discover active competitions in this discipline
The International Standard for Design Portfolios
The Global Benchmark for Architecture Dissertation Awards
The Global Benchmark for Graduation Excellence
Challenge to reimagine the Iron Throne
Comments (0)
Please login or sign up to add comments
No comments yet. Be the first to comment!