Hidden Villa: A Luxury Hidden Villa in the Netherlands Blending Architecture and Nature
Hidden Villa by i29 architects is a luxury hidden villa in the Netherlands, seamlessly blending contemporary design, natural surroundings, and spatial fluidity.
A Secluded Architectural Masterpiece
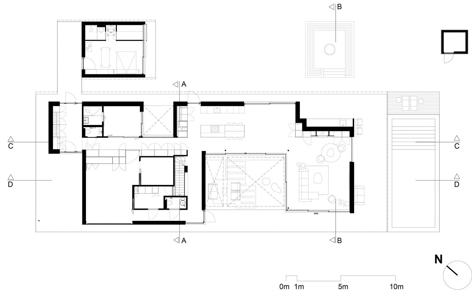
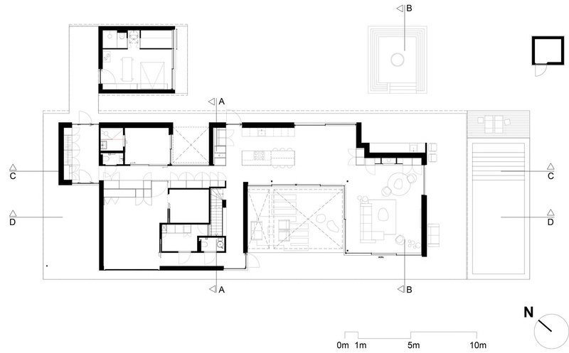
Hidden Villa by i29 architects is an architectural retreat that seamlessly blends with its natural surroundings, offering an unparalleled living experience. Nestled in a park-like residential area along the Dutch coast, this luxury hidden villa in the Netherlands is a contemporary interpretation of refined elegance. The residence is designed with a strong emphasis on privacy, integrating monumental trees, lush gardens, and carefully framed sightlines to create a harmonious relationship between built form and nature.





A Villa Immersed in Greenery
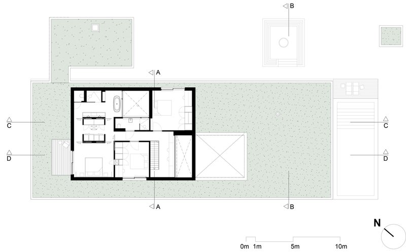
The residence is entirely surrounded by a landscaped garden, ensuring seclusion and tranquility. From the moment one enters, the design reveals a layered spatial experience, where long sightlines and diverse outdoor spaces unfold. The garden, carefully curated to enhance the villa’s setting, plays an integral role in shaping the spatial narrative, offering multiple vantage points and intimate zones that interact seamlessly with the architecture.





A Fluid Connection Between Indoors and Outdoors
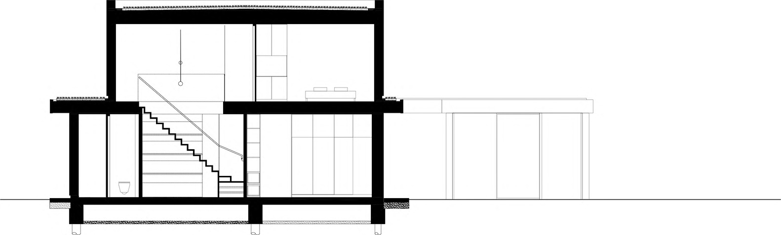
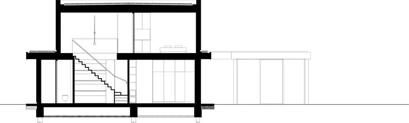
The villa’s design fosters an immersive indoor-outdoor relationship, where the distinction between built and natural environments is deliberately softened. Expansive glass façades, double-height patios filled with greenery, and open-air walkways create a sense of transparency and spatial fluidity. The architectural layout is structured to maximize natural light while offering uninterrupted views of the landscape. Large canopies extend from the structure, offering shade and regulating sunlight exposure, preventing overheating despite the extensive glazing.





Material Palette: A Refined Architectural Expression
A sophisticated blend of materials defines the exterior and interior, enhancing the villa’s luxurious character. The façades feature a combination of oil-treated ash wood and light Kolumba bricks, creating a warm yet contemporary aesthetic. Flooring and ceilings extend seamlessly between indoor and outdoor spaces, with white concrete floors wrapping around the residence and forming the foundation of the canopies. Minimalist aluminum framing and large glass panes amplify the connection between the villa and its natural surroundings.





Craftsmanship in Interior Design
The villa’s interior embodies a refined sense of craftsmanship, where custom-made furniture and built-in cabinetry integrate seamlessly into the architectural design. Dark-oiled oak panels, continuous white concrete flooring, and natural stone kitchen elements enhance the sense of luxury. Bathrooms feature carefully curated tile selections, while lighting systems are tailored to complement each space, offering adaptable ambiance settings through KNX-controlled automation.







An Outdoor Living Experience
Beyond its architectural brilliance, the villa extends its living experience into the landscape. The surrounding garden hosts a swimming pool, fire pit, outdoor kitchen, and sheltered terraces, offering numerous spaces for relaxation and entertainment. The greenery weaves through the villa’s patios, reinforcing the fluid dialogue between architecture and landscape. Carefully curated plantings and raw natural elements contribute to a sensory experience that elevates the connection between built space and nature.






A New Standard for Luxury Living
Hidden Villa by i29 architects is a testament to contemporary residential design that seamlessly merges architecture, nature, and luxury. This luxury hidden villa in the Netherlands exemplifies a modern yet timeless approach to design, where privacy, material honesty, and spatial fluidity define a new paradigm for high-end living. By embracing a holistic vision, the project stands as an architectural sanctuary that redefines the relationship between structure and environment.






All Photographs are works of Tim Van de Velde