Historic Building Renovation Ideas: Transforming Kafeterija into a Modern Coffee Shop
This article showcases the transformation of Kafeterija, a Serbian coffee shop, highlighting innovative historic building renovation ideas by Kidz Studio.
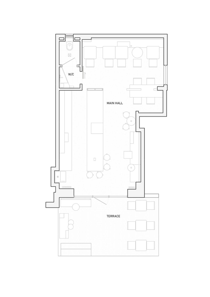
Renovating a historic building presents a unique opportunity to breathe new life into old structures, combining traditional aesthetics with modern design solutions. A prime example of this innovative approach is the recent transformation of Kafeterija, a renowned Serbian coffee shop chain, located in Beograd, Serbia. This project, executed by Kidz Studio, showcases how historic building renovation ideas can be implemented to create a space that respects tradition while embracing contemporary design.


The Vision Behind the Transformation
The collaboration between Kidz Studio and Kafeterija was driven by the desire to create an ideal guest space that reflected the coffee shop's philosophy of creativity and craftsmanship. The project kicked off in July 2023, with the studio focusing on capturing the essence of Kafeterija's spirit, one where each product is unique and the interiors highlight natural materials and skilled craftsmanship.


Embracing the Building's Heritage
The chosen location for the new Kafeterija outlet was a historic building known for its brick walls and stained glass windows. The first step in the renovation process was to whitewash the walls and open up the space, laying a foundation for the coffee shop's key elements like the bar counter and seating for visitors. This approach preserved the building's original charm while providing a blank canvas for modern interventions.



Innovative Use of Materials
One of the standout features of the renovation is the use of materials. The counter and benches, assembled using a patchwork technique from various types of wood found during the construction process, showcase the project's commitment to sustainability and creativity. Additionally, the lighting solution, crafted from scaffolding and metal pipe clamps, not only adds a unique design element but also cleverly conceals electrical cables, blending functionality with aesthetics.




Preserving Architectural Details
Throughout the renovation, efforts were made to discover and restore elements of the building's original architecture. This included the restoration of a wooden door and a facade stained glass window, ensuring that the history of the building was not lost in the transformation. The result is a space that honors its past while providing a contemporary experience for its visitors.




A Modern Take on Historic Renovation
The renovation of Kafeterija by Kidz Studio is a testament to the power of historic building renovation ideas. It demonstrates how spaces can evolve to meet modern needs while preserving and celebrating their historical significance. This project serves as an inspiration for architects, designers, and property owners looking to embark on their own renovation journeys, proving that with creativity and respect for the past, historic buildings can be transformed into vibrant, contemporary spaces.


All photographs are work of Ilya Ivanov
Popular Articles
Popular articles from the community
On the Brooks House by Monsoon Collective – A Contemporary Kerala Home Rooted in Tradition
Kerala home blending tradition and modernity with water-inspired design, brick architecture, courtyard planning, and sustainable rainwater harvesting strategies.
Louis Malle Cinema: A Limestone Cultural Landmark Revitalizing Community Life in Prayssac
Limestone cinema extension with public forecourt, blending heritage and modern design to create flexible cultural spaces and strengthen community interaction.
Atelier Macri Concept Store Interior Design by CASE-REAL
Atelier Macri store features a "ko" counter, walnut wood details, cork displays, blending retail, gallery, and seamless customer experiences.
Inverted Architecture Installation by Studio Link-Arc: Exploring the Intersection of Architecture and Living Organisms
Inverted Architecture Installation by Studio Link-Arc blends mycelium, sustainability, inverted design, ecological cycles, and urban adaptive architecture in Shenzhen.
Similar Reads
You might also enjoy these articles
Bamboo Housing Challenge 2026: Design Affordable, Sustainable Homes Using Bamboo
An international design competition by Bamboo U and IBUKU inviting architects and designers to reimagine affordable housing using bamboo — with the winning design built full-scale in Bali.
Computational Design & Education: Beegraphy Design Awards Introduces 7th Category (Featuring Jiyun's Innovative Approach)
Dive into Beegraphy’s 7th Design Awards category, where computational design meets education to create immersive, interactive learning tools, inspired by Jiyun’s work.
From Parametric Lighting to Urban Furniture: Join the 2nd Workshop in Beegraphy’s Computational Design Series
Dive into Cutting-Edge Design Techniques and Practical Applications with Industry Experts
Introducing Sphere by UNI: Pioneering a New Era in AEC Industry
Unlocking Global Potential with BIM and Agile Management
Explore Architecture Competitions
Discover active competitions in this discipline
The International Standard for Design Portfolios
The Global Benchmark for Architecture Dissertation Awards
The Global Benchmark for Graduation Excellence
Challenge to reimagine the Iron Throne
Comments (0)
Please login or sign up to add comments
No comments yet. Be the first to comment!